ACTIVE PROPERTIES: www.activepropertiesbg.com
Представяме едностаен апартамент в нов жилищен комплекс, разположен в столичния квартал 'Малинова долина' един от най-бързо развиващите се райони в София. Комплексът се състои от три самостоятелни сгради със внимание към детайла, така че да съчетае съвременна архитектура, функционални жилища и високо ниво на комфорт.
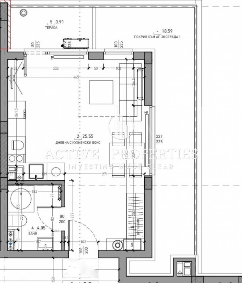
Апартаментът е разположен в Сграда 1, на 4-ти етаж и има обща площ 49.02 кв.м, чиста площ - 41.06 кв.м. Жилището се състои от антре, баня/тоалетна, дневна с кухня и тераса. Към имота има прилежащо покривно пространство от 18.59 кв.м.
Продава се в степен на завършеност по БДС.
*Офертната цена е по Схема на плащане - 1 (50%/30%/10%/10%).
Характеристики на Етап 1:
Етап 1 е в процес на реализация с планирано завършване през март 2028 г.
132 функционални жилища едностайни, двустайни и тристайни апартаменти;
134 подземни паркоместа и гаражи;
Зелени площи и зони за отдих, детски площадки, безопасна и приятна семейна среда.
Стартирал е и Етап 2 от комплекса, от още три сгради. Двата етапа ще оформят съвременен жилищен ансамбъл в сърцето на 'Малинова долина'.
Качествено строителство:
Стоманобетонна конструкция;
Покриви с XPS топлоизолация;
PVC дограма, троен стъклопакет със стъкло 'четири сезона';
Отопление на ток чрез климатици и на газ;
Светла височина на жилищните помещения - 2.60 м;
Тухлени зидарии 25 см.
Локация и предимства:
Тих и зелен район, в подножието на Витоша;
Непосредствена близост до бул. Симеоновско шосе и Околовръстен път;
До НСА, Студентски град, супермаркети, спортни центрове и заведения;
Развиваща се инфраструктура и инвестиционен потенциал.
Гъвкави схеми на плащане - избор според бюджета и етапа на строителството:
Схема 1:
50% при предварителен договор;
30% при Акт 14;
10% при Акт 15;
10% при Акт 16.
Схема 2:
30% при предварителен договор;
30% при Акт 14;
30% при Акт 15;
10% при Акт 16.
Схема 3:
30% при предварителен договор;
70% при Акт 16.
Защо да изберете този проект:
Съвременна архитектура и комфортни жилищни разпределения;
Сигурна и зелена среда за живеене;
Отлична инвестиция в бързо развиващ се район на София;
Баланс между градски удобства и близост до природата.
Агенцията извършва всички необходими юридически и технически проверки на имота, организира всички етапи на сделката до нейното финализиране с нотариално прехвърляне на имота. Агенцията съдейства за отпускане на банков кредит при възможно най-добри условия за клиента.
За повече информация и при желание за оглед, не се колебайте да се свържете със водещия брокер Бисера Павлова +359877337308
Вход
+ Безплатна обява

![Продава 1-стаен град София , Малинова долина , 68 кв.м | 43739163 - изображение [2] — Imoti.info Продава 1-стаен град София , Малинова долина , 68 кв.м | 43739163 - изображение [2]](http://imotstatic3.focus.bg/imot/photosimotbg/1/209/big/1a176131371172209_Mt.jpg)
![Продава 1-стаен град София , Малинова долина , 68 кв.м | 43739163 - изображение [3] — Imoti.info Продава 1-стаен град София , Малинова долина , 68 кв.м | 43739163 - изображение [3]](http://imotstatic3.focus.bg/imot/photosimotbg/1/209/big/1a176131371172209_YP.jpg)
![Продава 1-стаен град София , Малинова долина , 68 кв.м | 43739163 - изображение [4] — Imoti.info Продава 1-стаен град София , Малинова долина , 68 кв.м | 43739163 - изображение [4]](http://imotstatic3.focus.bg/imot/photosimotbg/1/209/big/1a176131371172209_tk.jpg)
![Продава 1-стаен град София , Малинова долина , 68 кв.м | 43739163 - изображение [5] — Imoti.info Продава 1-стаен град София , Малинова долина , 68 кв.м | 43739163 - изображение [5]](http://imotstatic3.focus.bg/imot/photosimotbg/1/209/big/1a176131371172209_tg.jpg)
![Продава 1-стаен град София , Малинова долина , 68 кв.м | 43739163 - изображение [6] — Imoti.info Продава 1-стаен град София , Малинова долина , 68 кв.м | 43739163 - изображение [6]](http://imotstatic3.focus.bg/imot/photosimotbg/1/209/big/1a176131371172209_e6.jpg)
![Продава 1-стаен град София , Малинова долина , 68 кв.м | 43739163 - изображение [7] — Imoti.info Продава 1-стаен град София , Малинова долина , 68 кв.м | 43739163 - изображение [7]](http://imotstatic3.focus.bg/imot/photosimotbg/1/209/big/1a176131371172209_nE.jpg)
![Продава 1-стаен град София , Малинова долина , 68 кв.м | 43739163 - изображение [8] — Imoti.info Продава 1-стаен град София , Малинова долина , 68 кв.м | 43739163 - изображение [8]](http://imotstatic3.focus.bg/imot/photosimotbg/1/209/big/1a176131371172209_xU.jpg)
![Продава 1-стаен град София , Малинова долина , 68 кв.м | 43739163 - изображение [9] — Imoti.info Продава 1-стаен град София , Малинова долина , 68 кв.м | 43739163 - изображение [9]](http://imotstatic3.focus.bg/imot/photosimotbg/1/209/big/1a176131371172209_RB.jpg)
![Продава 1-стаен град София , Малинова долина , 68 кв.м | 43739163 - изображение [10] — Imoti.info Продава 1-стаен град София , Малинова долина , 68 кв.м | 43739163 - изображение [10]](http://imotstatic3.focus.bg/imot/photosimotbg/1/209/big/1a176131371172209_kD.jpg)
![Продава 1-стаен град София , Малинова долина , 68 кв.м | 43739163 - изображение [11] — Imoti.info Продава 1-стаен град София , Малинова долина , 68 кв.м | 43739163 - изображение [11]](http://imotstatic3.focus.bg/imot/photosimotbg/1/209/big/1a176131371172209_oU.jpg)









