AKT 16!! ПОДОВО ОТОПЛЕНИЕ!! ПЕРФЕКТНА ИНФРАСТРУКТУРА!! ГОЛЯМ ДВОР!! DELTA HILL!!
Предлагаме на Вашето внимание нови къщи в луксозния и реномиран комплекс Delta Hill комфорт, сигурност и природа в близост до София!
Всички имоти са с:
подово отопление
подготвена инсталация за термопомпи въздух-вода
изградена канализация
тухли Wienerberger, мазилка Baumit, керемиди Bramac.
висок клас дограма Salamander
перфектна инфраструктура
Комплексът предлага охрана, зелени площи, спортни и детски площадки, супермаркет и ресторанти.
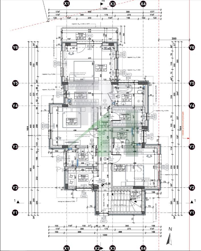
Технически параметри на конкретната къща:
Разгърната застроена площ: 255 кв.м
Парцел: 900 кв.м
Разпределение:
първи етаж: входно антре, дневна с трапезария и кухня, тоалетна, дрешник, техн. пом., склад,
втори етаж: 3бр спални, 3бр. бани с тоалетни, балкон, 2бр. гардеробни, мокро помщение
Двор: озеленен, с възможност за басейн и барбекю зона.
Прилагаме технически чертеж с разпределението на имота.
За да запишете час за оглед ни се обадете сега и цитирайте следния код: 712
Přihlásit se
+ Inzerce zdarma

![Na prodej Dům oblast Pernik , Kladnica , 255 m2 | 15445292 - obraz [2] — Imoti.info Na prodej Dům oblast Pernik , Kladnica , 255 m2 | 15445292 - obraz [2]](http://imotstatic1.focus.bg/imot/photosimotbg/1/255/big/1j176035820515255_4i.jpg)
![Na prodej Dům oblast Pernik , Kladnica , 255 m2 | 15445292 - obraz [3] — Imoti.info Na prodej Dům oblast Pernik , Kladnica , 255 m2 | 15445292 - obraz [3]](http://imotstatic1.focus.bg/imot/photosimotbg/1/255/big/1j176035820515255_fS.jpg)
![Na prodej Dům oblast Pernik , Kladnica , 255 m2 | 15445292 - obraz [4] — Imoti.info Na prodej Dům oblast Pernik , Kladnica , 255 m2 | 15445292 - obraz [4]](http://imotstatic1.focus.bg/imot/photosimotbg/1/255/big/1j176035820515255_OC.jpg)
![Na prodej Dům oblast Pernik , Kladnica , 255 m2 | 15445292 - obraz [5] — Imoti.info Na prodej Dům oblast Pernik , Kladnica , 255 m2 | 15445292 - obraz [5]](http://imotstatic1.focus.bg/imot/photosimotbg/1/255/big/1j176035820515255_7Q.jpg)
![Na prodej Dům oblast Pernik , Kladnica , 255 m2 | 15445292 - obraz [6] — Imoti.info Na prodej Dům oblast Pernik , Kladnica , 255 m2 | 15445292 - obraz [6]](http://imotstatic1.focus.bg/imot/photosimotbg/1/255/big/1j176035820515255_g8.jpg)
![Na prodej Dům oblast Pernik , Kladnica , 255 m2 | 15445292 - obraz [7] — Imoti.info Na prodej Dům oblast Pernik , Kladnica , 255 m2 | 15445292 - obraz [7]](http://imotstatic1.focus.bg/imot/photosimotbg/1/255/big/1j176035820515255_Zb.jpg)
![Na prodej Dům oblast Pernik , Kladnica , 255 m2 | 15445292 - obraz [8] — Imoti.info Na prodej Dům oblast Pernik , Kladnica , 255 m2 | 15445292 - obraz [8]](http://imotstatic1.focus.bg/imot/photosimotbg/1/255/big/1j176035820515255_Ee.jpg)
![Na prodej Dům oblast Pernik , Kladnica , 255 m2 | 15445292 - obraz [9] — Imoti.info Na prodej Dům oblast Pernik , Kladnica , 255 m2 | 15445292 - obraz [9]](http://imotstatic1.focus.bg/imot/photosimotbg/1/255/big/1j176035820515255_AV.jpg)
![Na prodej Dům oblast Pernik , Kladnica , 255 m2 | 15445292 - obraz [10] — Imoti.info Na prodej Dům oblast Pernik , Kladnica , 255 m2 | 15445292 - obraz [10]](http://imotstatic1.focus.bg/imot/photosimotbg/1/255/big/1j176035820515255_VE.jpg)
![Na prodej Dům oblast Pernik , Kladnica , 255 m2 | 15445292 - obraz [11] — Imoti.info Na prodej Dům oblast Pernik , Kladnica , 255 m2 | 15445292 - obraz [11]](http://imotstatic1.focus.bg/imot/photosimotbg/1/255/big/1j176035820515255_dA.jpg)
![Na prodej Dům oblast Pernik , Kladnica , 255 m2 | 15445292 - obraz [12] — Imoti.info Na prodej Dům oblast Pernik , Kladnica , 255 m2 | 15445292 - obraz [12]](http://imotstatic1.focus.bg/imot/photosimotbg/1/255/big/1j176035820515255_Rj.jpg)
![Na prodej Dům oblast Pernik , Kladnica , 255 m2 | 15445292 - obraz [13] — Imoti.info Na prodej Dům oblast Pernik , Kladnica , 255 m2 | 15445292 - obraz [13]](http://imotstatic1.focus.bg/imot/photosimotbg/1/255/big/1j176035820515255_CC.jpg)
![Na prodej Dům oblast Pernik , Kladnica , 255 m2 | 15445292 - obraz [14] — Imoti.info Na prodej Dům oblast Pernik , Kladnica , 255 m2 | 15445292 - obraz [14]](http://imotstatic1.focus.bg/imot/photosimotbg/1/255/big/1j176035820515255_VI.jpg)
![Na prodej Dům oblast Pernik , Kladnica , 255 m2 | 15445292 - obraz [15] — Imoti.info Na prodej Dům oblast Pernik , Kladnica , 255 m2 | 15445292 - obraz [15]](http://imotstatic1.focus.bg/imot/photosimotbg/1/255/big/1j176035820515255_4H.jpg)
![Na prodej Dům oblast Pernik , Kladnica , 255 m2 | 15445292 - obraz [16] — Imoti.info Na prodej Dům oblast Pernik , Kladnica , 255 m2 | 15445292 - obraz [16]](http://imotstatic1.focus.bg/imot/photosimotbg/1/255/big/1j176035820515255_Vx.jpg)
![Na prodej Dům oblast Pernik , Kladnica , 255 m2 | 15445292 - obraz [17] — Imoti.info Na prodej Dům oblast Pernik , Kladnica , 255 m2 | 15445292 - obraz [17]](http://imotstatic1.focus.bg/imot/photosimotbg/1/255/big/1j176035820515255_2j.jpg)









