Na prodej  2 ložnice Sofia , Centar , 110 m2 | 32015541
16 obrázky

Na prodej 2 ložnice в Sofia, Centar, 110 m2

VIP
580 000
1 134 381,4 лв.
DPH se neúčtuje
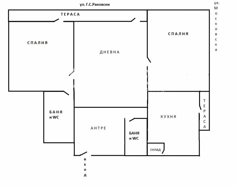
Plocha: 110 m2Patro 6 Typ stavby Cihlový, 1930
Ústřední topení: NEPlyn: NE
Popis nemovitosti:
Представяме ви уникален, тристаен апартамент, разположен на една от най-престижните локации в столицата! Този просторен и светъл имот е в сграда с богата история и невероятна атмосфера. На 110 квадратни метра, на югоизток се разполагат просторна дневна и две уютни спални, тераса. Кухнята е с тераса, с гледка към вътрешния двор.В имота има две бани със санитарен възел, мокро и избено помещение. Апартаментът е в отлично състояние, стилен дизайн и функционално разпределение, което осигурява максимално удобство.










Сгладата се намира в непосредствена близост до храм Александър Невски, Софийски университет, Народно събрание, Президентство, Министерски съвет, Царска градина и множество забележителности, емблематични за столицата, които дават възможност да се насладите на динамичния живот на София!
Седеметажната тухлена сграда е построена през 1930 година. Тя е известна със своето историческо значение и архитектурен стил. Просторният апартамент е разположен на шести етаж, с прекрасна гледка към града. Много добре поддържани общи части, контролиран достъп, асансьор.
Имот на престижна локация, в отлично състояние, стилен дизайн и функционално разпределение, което ви осигурява максимално удобство. Идеален за инвестиция или живеене в сърцето на столицата!

Свържете се с нас за оглед и допълнителна информация.


Обади се сега и цитирай този код 567093
Funkce:
  • Výtah
Na prodej  2 ložnice Sofia , Centar , 110 m2 | 32015541 - obraz [2]
Na prodej  2 ložnice Sofia , Centar , 110 m2 | 32015541 - obraz [3]
Na prodej  2 ložnice Sofia , Centar , 110 m2 | 32015541 - obraz [4]
Na prodej  2 ložnice Sofia , Centar , 110 m2 | 32015541 - obraz [5]Viz dále 12 obrázky
Cena

Cena nemovitosti: 580 000 €

1 134 381,4 лв.

Cena na m2: 5272,727 €

10 312,56 лв. na m2

Přihlaste se k odběru upozornění na změnu ceny
Umístění

Sofia, Centar

Statistika
  • 275pohledy
  • 0šetří
Inzerát byl aktualizován dne 23 srpen 2025
Kontaktovat prodejce
088 21XXX... (ukázat)
Činidlo
//photos.imoti.info/assets/images/brokerspicts/16883805492390601.webp
Klientski centar ADRES Kantora Ljulin
088 21 21 450

ADRES NEDVIŽIMI IMOTI
Sofia pl. Sveta Nedelja No 4, et. 6
Na prodej 2 ložnice в Sofia, Centar, 110 m2
580 000 €
110 m26 Cihlový, 1930