AKT 16!! ПОДОВО ОТОПЛЕНИЕ!! ПЕРФЕКТНА ИНФРАСТРУКТУРА!! ГОЛЯМ ДВОР!! DELTA HILL!!
Предлагаме на Вашето внимание нови къщи в луксозния и реномиран комплекс Delta Hill комфорт, сигурност и природа в близост до София!
Всички имоти са с:
подово отопление
подготвена инсталация за термопомпи въздух-вода
изградена канализация
тухли Wienerberger, мазилка Baumit, керемиди Bramac.
висок клас дограма Salamander
перфектна инфраструктура
Комплексът предлага охрана, зелени площи, спортни и детски площадки, супермаркет и ресторанти.
Технически параметри на конкретната къща:
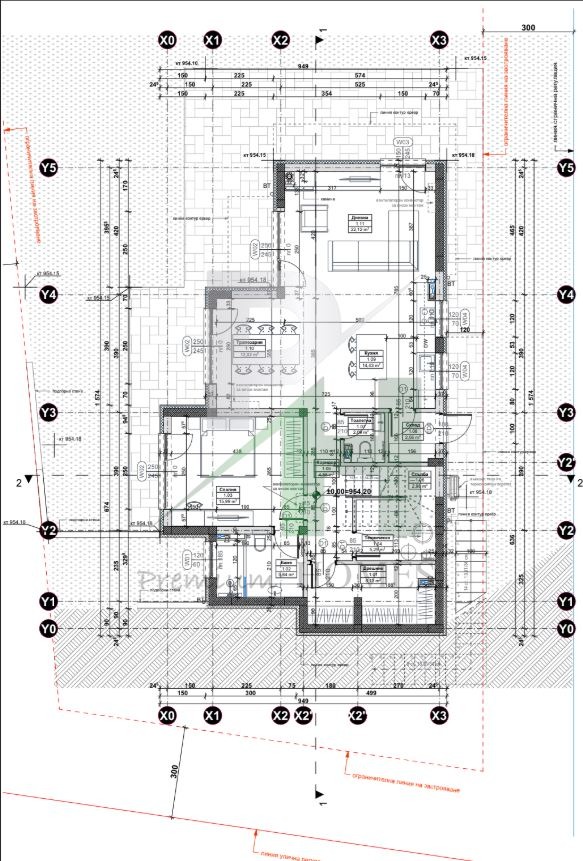
Разгърната застроена площ: 263 кв.м
Парцел: 900 кв.м
Разпределение:
първи етаж: дневна с трапезария и кухня, спалня, баня, тоалетна, дрешник, техн. пом., склад
втори етаж: входно антре, 3бр спални, 2бр. бани с тоалетни, тоалетна, 2бр., балкон. дрешник, перално помщение
Двор: озеленен, с възможност за басейн и барбекю зона.
Прилагаме технически чертеж с разпределението на имота.
За да запишете час за оглед ни се обадете сега и цитирайте следния код: 709
Přihlásit se
+ Inzerce zdarma

![Na prodej Dům oblast Pernik , Kladnica , 263 m2 | 39433852 - obraz [2] — Imoti.info Na prodej Dům oblast Pernik , Kladnica , 263 m2 | 39433852 - obraz [2]](http://imotstatic2.focus.bg/imot/photosimotbg/1/478/big/1j176035787199478_40.jpg)
![Na prodej Dům oblast Pernik , Kladnica , 263 m2 | 39433852 - obraz [3] — Imoti.info Na prodej Dům oblast Pernik , Kladnica , 263 m2 | 39433852 - obraz [3]](http://imotstatic2.focus.bg/imot/photosimotbg/1/478/big/1j176035787199478_bo.jpg)
![Na prodej Dům oblast Pernik , Kladnica , 263 m2 | 39433852 - obraz [4] — Imoti.info Na prodej Dům oblast Pernik , Kladnica , 263 m2 | 39433852 - obraz [4]](http://imotstatic2.focus.bg/imot/photosimotbg/1/478/big/1j176035787199478_zp.jpg)
![Na prodej Dům oblast Pernik , Kladnica , 263 m2 | 39433852 - obraz [5] — Imoti.info Na prodej Dům oblast Pernik , Kladnica , 263 m2 | 39433852 - obraz [5]](http://imotstatic2.focus.bg/imot/photosimotbg/1/478/big/1j176035787199478_hU.jpg)
![Na prodej Dům oblast Pernik , Kladnica , 263 m2 | 39433852 - obraz [6] — Imoti.info Na prodej Dům oblast Pernik , Kladnica , 263 m2 | 39433852 - obraz [6]](http://imotstatic2.focus.bg/imot/photosimotbg/1/478/big/1j176035787199478_Po.jpg)
![Na prodej Dům oblast Pernik , Kladnica , 263 m2 | 39433852 - obraz [7] — Imoti.info Na prodej Dům oblast Pernik , Kladnica , 263 m2 | 39433852 - obraz [7]](http://imotstatic2.focus.bg/imot/photosimotbg/1/478/big/1j176035787199478_ge.jpg)
![Na prodej Dům oblast Pernik , Kladnica , 263 m2 | 39433852 - obraz [8] — Imoti.info Na prodej Dům oblast Pernik , Kladnica , 263 m2 | 39433852 - obraz [8]](http://imotstatic2.focus.bg/imot/photosimotbg/1/478/big/1j176035787199478_Pl.jpg)
![Na prodej Dům oblast Pernik , Kladnica , 263 m2 | 39433852 - obraz [9] — Imoti.info Na prodej Dům oblast Pernik , Kladnica , 263 m2 | 39433852 - obraz [9]](http://imotstatic2.focus.bg/imot/photosimotbg/1/478/big/1j176035787199478_a3.jpg)
![Na prodej Dům oblast Pernik , Kladnica , 263 m2 | 39433852 - obraz [10] — Imoti.info Na prodej Dům oblast Pernik , Kladnica , 263 m2 | 39433852 - obraz [10]](http://imotstatic2.focus.bg/imot/photosimotbg/1/478/big/1j176035787199478_zO.jpg)
![Na prodej Dům oblast Pernik , Kladnica , 263 m2 | 39433852 - obraz [11] — Imoti.info Na prodej Dům oblast Pernik , Kladnica , 263 m2 | 39433852 - obraz [11]](http://imotstatic2.focus.bg/imot/photosimotbg/1/478/big/1j176035787199478_fQ.jpg)
![Na prodej Dům oblast Pernik , Kladnica , 263 m2 | 39433852 - obraz [12] — Imoti.info Na prodej Dům oblast Pernik , Kladnica , 263 m2 | 39433852 - obraz [12]](http://imotstatic2.focus.bg/imot/photosimotbg/1/478/big/1j176035787199478_B1.jpg)
![Na prodej Dům oblast Pernik , Kladnica , 263 m2 | 39433852 - obraz [13] — Imoti.info Na prodej Dům oblast Pernik , Kladnica , 263 m2 | 39433852 - obraz [13]](http://imotstatic2.focus.bg/imot/photosimotbg/1/478/big/1j176035787199478_vQ.jpg)
![Na prodej Dům oblast Pernik , Kladnica , 263 m2 | 39433852 - obraz [14] — Imoti.info Na prodej Dům oblast Pernik , Kladnica , 263 m2 | 39433852 - obraz [14]](http://imotstatic2.focus.bg/imot/photosimotbg/1/478/big/1j176035787199478_oU.jpg)
![Na prodej Dům oblast Pernik , Kladnica , 263 m2 | 39433852 - obraz [15] — Imoti.info Na prodej Dům oblast Pernik , Kladnica , 263 m2 | 39433852 - obraz [15]](http://imotstatic2.focus.bg/imot/photosimotbg/1/478/big/1j176035787199478_ki.jpg)
![Na prodej Dům oblast Pernik , Kladnica , 263 m2 | 39433852 - obraz [16] — Imoti.info Na prodej Dům oblast Pernik , Kladnica , 263 m2 | 39433852 - obraz [16]](http://imotstatic2.focus.bg/imot/photosimotbg/1/478/big/1j176035787199478_4v.jpg)
![Na prodej Dům oblast Pernik , Kladnica , 263 m2 | 39433852 - obraz [17] — Imoti.info Na prodej Dům oblast Pernik , Kladnica , 263 m2 | 39433852 - obraz [17]](http://imotstatic2.focus.bg/imot/photosimotbg/1/478/big/1j176035787199478_mr.jpg)









