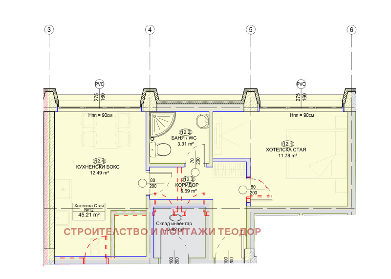
Представяме Ви новорекоструираща се сграда 'Коронел', от смесен тип , жилищна и бизнес част.Етап на строителство-пред Акт 15. Разпределението на обектите е решено както показваме в архитектурния проект.
Сградата се намира в един от най-предпочитаните райони за живеене в град Русе ,кв. Здравец-Изток.
В близост може да намерите всичко необходимо за комфортен начин на живот на съвременния човек, детски градини и училища, аптеки, бензиностанции,медицински центрове,спортни обекти и хипермаркети . Добрата локация на сградата предоставя както бързи комуникации, така и спокоен и зелен район.
Проектът е съобразен с изискванията на най-съвременните стандарти и иновативни технологии за енергийна ефективност, което осигурява на обитателите минимални разходи на енергия. Предвидено е изграждане на резервоари за дъждовна и кондензна вода, която ще се използва за напояване на озеленяването на сградата . Зелените площи са по индивидуален ландшафтен проект.
Жилищните площи са отлично проектирани ,с оптимално съотношение между простор, светлина и удобство, а общите части са луксозни ,като ще са вложени последните технологии и материали в строителството. Разполага с 9 двустайни,14 тристайни и 4 четиристайни апартамента с различно разположение и квадратури. Жилищата след въвеждане на сградата в експлоатация се предават на собствениците по БДС ,но по желание на клиента нашият строител може да извърши всички довършителни работи ,а дизайнера на компанията може да ви предложи индивидуален дизайн и обзавеждане .
Сградата предлага собствен двор с паркоместа и контрол на достъпа, важно за сигурността и удобството на живущите. Всички жилища ще предлагат тераси с естествени вертикални градини или лоджии .
Общите части ще придобият луксозни и просторни асансьори , Контролиран достъп ,чип система на всички входни точки, монтирано окабеляване за видеонаблюдение и домофонна система с вградени камери. Ще бъде подсигурена достъпна среда.
Вентилируема фасада от каширана каменно-минерална вата с пародифузна и ветрозащитна мембрана ,ESP изолации ,ефектно външно фасадно осветление и нова луксозна PVC дограма .
За да улесним процеса на придобиване на имот, предлагаме съдействие за ипотечен кредит и атрактивна схема на плащане със съотношение 50%/40%/10%. Това ви дава възможност да си осигурите своя нов дом без излишни финансови натоварвания.
Не пропускайте възможността да станете част от това ексклузивно жилищно пространство, където качеството на живот е с висок приоритет, отговаряйки и на най-изисканите критерии!
ЗА СТРОИТЕЛЯ :'Строителство и монтажи Теодор Стоев ЕООД' и 'STOEV BAU' със собственик Теодор Стоев са изпитани във времето строителни компании с над петнадесет годишен опит ,както в Германия ,така и в България ,одобрена с немски и европейски сертификати за качество .През 2022 година българската компания,, Строителство и монтажи Теодор Стоев започва работа по реконструкцията и промяната предназначение от хотел в жилищна и търговска сграда на хотел 'Балкан' в град Габрово ,който беше завършен през 2023.От януари до юли работи по реконструкцията и преустройството на хотел 'Хил' в град София в ДКЦ 'Черни връх' и хоспис 'Медхоум' ,от август 2023 до януари 2024 извършва изграждане на ново крило в медицинска очна клиника 'Ресбиомед' град София .Също така през 2023 участва в обществени поръчки към БДЖ за изграждане влакови спирки и започва реконструкцията и преустройството на хотел 'Янтра' град Габрово .
Директни Продажби от инвеститор , без такси и комисионни чрез нашия партньор фирма 'Ерфолг Дом' и други брокерски агенции.
'Ерфолг Дом'
Лице за контакти: Кремена Стоева
Телефон : 0883 772 770
Имейл: [email protected]
www.coronel.bg
Цени от 699 /м2 без ДДС
2-,3- и 4-стайни апартаменти
* Избор на етаж и изложение
Офиси
Складове
Магазини
Заведения
Лекарски кабинети или Праксиси
Салони за красота
Паркоместа
Přihlásit se
+ Inzerce zdarma

![Na prodej 1 ložnice Ruse , Zdravec Iztok , 57 m2 | 49257036 - obraz [2] — Imoti.info Na prodej 1 ložnice Ruse , Zdravec Iztok , 57 m2 | 49257036 - obraz [2]](http://imotstatic1.focus.bg/imot/photosimotbg/1/369/big/1b172725538332369_Pb.jpg)
![Na prodej 1 ložnice Ruse , Zdravec Iztok , 57 m2 | 49257036 - obraz [3] — Imoti.info Na prodej 1 ložnice Ruse , Zdravec Iztok , 57 m2 | 49257036 - obraz [3]](http://imotstatic1.focus.bg/imot/photosimotbg/1/369/big/1b172725538332369_RG.jpg)
![Na prodej 1 ložnice Ruse , Zdravec Iztok , 57 m2 | 49257036 - obraz [4] — Imoti.info Na prodej 1 ložnice Ruse , Zdravec Iztok , 57 m2 | 49257036 - obraz [4]](http://imotstatic1.focus.bg/imot/photosimotbg/1/369/big/1b172725538332369_tU.jpg)
![Na prodej 1 ložnice Ruse , Zdravec Iztok , 57 m2 | 49257036 - obraz [5] — Imoti.info Na prodej 1 ložnice Ruse , Zdravec Iztok , 57 m2 | 49257036 - obraz [5]](http://imotstatic1.focus.bg/imot/photosimotbg/1/369/big/1b172725538332369_rX.jpg)









