Na prodej  2 ložnice Burgas , Bratja Miladinovi , 104 m2 | 56628401
4 obrázky

Na prodej 2 ložnice в Burgas, Bratja Miladinovi, 104 m2

161 448 Viz na mapě
315 764,84 лв.
DPH je v ceně
Plocha: 104 m2Patro 2 Typ stavby Cihlový, 2028
Ústřední topení: -Plyn: -
Popis nemovitosti:
ДИРЕКТНО ОТ СТРОИТЕЛЯ-НОВ ОБЕКТ НА ТРАПЕЗИЦА.
Разгледайте нашата страница https://tochevbg.com/.
Многофункционална смесена сграда-с жилищна част и търговски обекти, ситуирана на централния булевард Одрин на градския транспорт в ж.к. БРАТЯ МИЛАДИНОВИ , до ЕЛКАБЕЛ, срещу бензиностанцията на ЛУКОЙЛ, близо до магазин БИЛЛА и Лидъл, Юск.
В непосредствена близост до спирки на градски транспорт, близо до училища, детски градини, учреждения, болници-удобен и комуникативен район.
Тя ще бъде изградена с двустайни, тристайни, многостайни апартаменти и ателиета, с два асансьора, търговски площи-офиси и магазини, паркоместав подземен гараж на две нива- с рампа и платформа.. Издават се на тапа.
Квадратурите на имотите са между 52,83 кв.м и 308.09 кв.м.
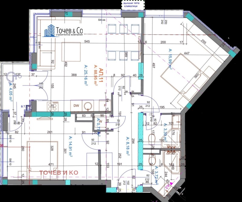
АПАРТАМЕНТ 11-на втори жилищен етаж, запад.
Начало на строежа в края на 2025г, срок 36 месеца от строително ниво и линия.
Стандартна схема на плащане-променя се според степента/етапа на строителство:
1. На предварителен договор -10% от стойността на имота
2. На строително ниво и линия -30% от стойността на имота
3. на долна плоча на етажа на имота-30% от стойността на имота
4. на Акт 14-20% от стойността на имота
5. на Акт 15-5% от стойността на имота
6. на Акт 16-5% от стойността на имота
Funkce:
  • Výtah
  • Tepelná izolace
Na prodej  2 ložnice Burgas , Bratja Miladinovi , 104 m2 | 56628401 - obraz [2]
Na prodej  2 ložnice Burgas , Bratja Miladinovi , 104 m2 | 56628401 - obraz [3]
Na prodej  2 ložnice Burgas , Bratja Miladinovi , 104 m2 | 56628401 - obraz [4]
Cena

Cena nemovitosti: 161 448 €

315 764,84 лв.

Cena na m2: 1552,385 €

3 036,2 лв. na m2

Přihlaste se k odběru upozornění na změnu ceny
Umístění

Burgas, Bratja Miladinovi

mapZobrazit na mapě
Statistika
  • 36pohledy
  • 0šetří
Inzerát byl zveřejněn dne 14 říjen 2025
Kontaktovat prodejce
089XXX... (ukázat)

TOČEV I KO
Burgas gr. Burgas ,ž.k.Meden rudnik ,blok 138
Na prodej 2 ložnice в Burgas, Bratja Miladinovi, 104 m2
161 448 €
104 m22 Cihlový, 2028
call20899144080