Na prodej  Dům oblast Sofia , Aldomirovci , 262 m2 | 76350742
17 obrázky

Na prodej Dům в oblast Sofia, Aldomirovci, 262 m2

TOP
379 000
741 259,57 лв.
DPH je v ceně
Plocha: 262 m2(970 m2)Patro Přízemí Typ stavby Cihlový, 2025
Ústřední topení: -Plyn: -
Popis nemovitosti:
БИЛДИНГ БОКС има удоволствието да Ви представи самостоятелна двуетажна къща за продажба.
Намира се на 20 минути от София, между гр. Сливница и с. Алдомировци.
Разположена е на уединено и спокойно място, обгърната от орехова и борова гора в района.

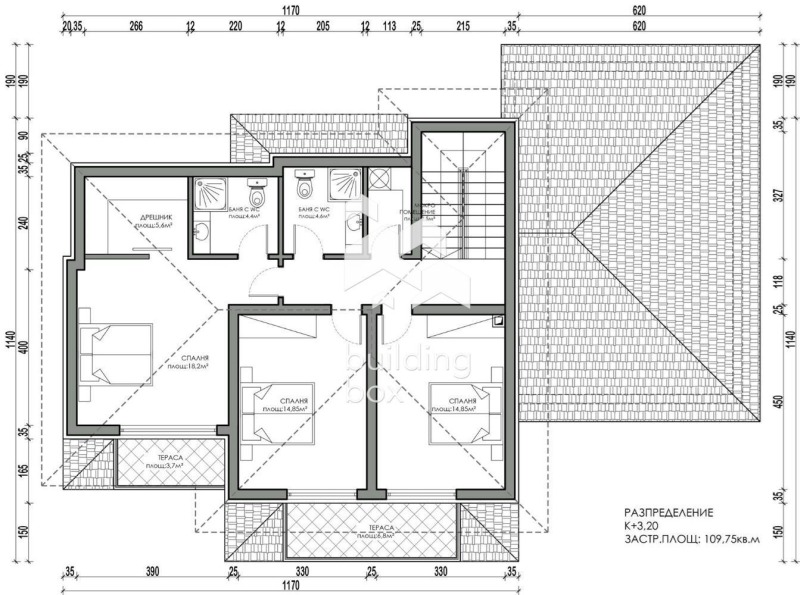
Къща със самостоятелен двор от 970 кв.м и с площ от 262 кв.м.

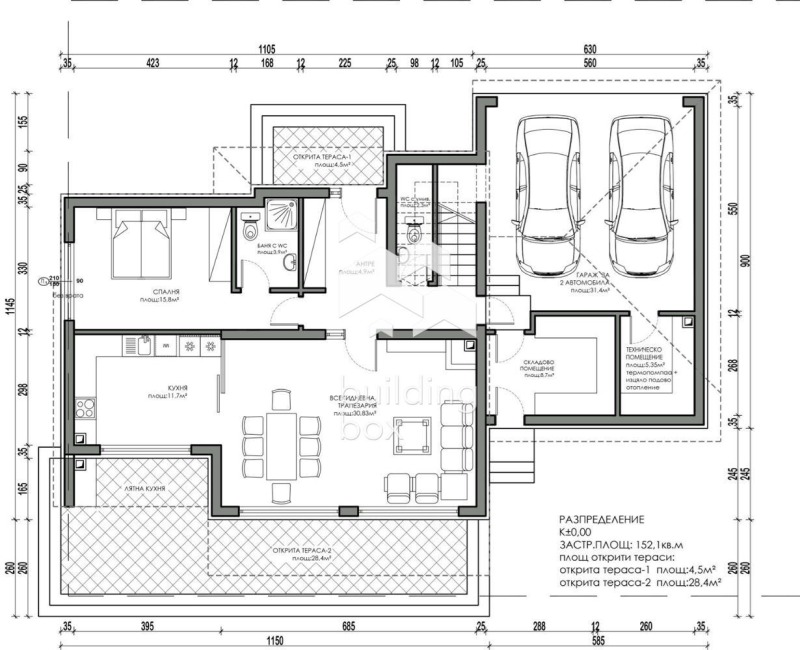
Първо ниво: Антре, просторна всекидневна с кухня и трапезария, спалня със самостоятелна баня и отделна тоалетна за гости.
Второ ниво: Три спални, едната от която е със собствена баня с тоалетна и дрешник, два балкона, мокро помещение и втора баня с тоалетна.

* БОНУС * - Подпокривен етаж от 90кв.м , който не влиза в квадратурата на къщата, с високи тавани и възможност да се обособи по много различни начини.

Изложение: Юг и изток

ПАРКИРАНЕ: Двоен гараж с две сервизни помещения, мазе и топла връзка към къщата.
Има възможност за паркиране на още два автомобила пред гаража. Помислено е за удобството на цялото семейство.

Къщата е с Акт 16 от май месец 2025г. и се предава на шпакловка и замаска, готова да я довършиш по твой стил.

ОТОПЛЕНИЕ: Вариант 1 - има изградено подово отопление предвидено на термопомпа.
Вариант 2 - изводи за пелети за локално отопление

Има изградена ел и ВиК инсталация, самостоятелна пречиствателна станция и хидрофорна система с резервоар.

В просторния двор можеш да създадеш зелена градина, детска площадка или уютно място за събирания. Тишина, простор и гледка без край.
Домът не е готов, докато ти не му вдъхнеш живот. Започни своята история тук!

Билдинг Бокс предоставя безплатна консултация и кредитно съдействие при финансиране на избрания от Вас имот.
Оферта 25860
Na prodej  Dům oblast Sofia , Aldomirovci , 262 m2 | 76350742 - obraz [2]
Na prodej  Dům oblast Sofia , Aldomirovci , 262 m2 | 76350742 - obraz [3]
Na prodej  Dům oblast Sofia , Aldomirovci , 262 m2 | 76350742 - obraz [4]
Na prodej  Dům oblast Sofia , Aldomirovci , 262 m2 | 76350742 - obraz [5]Viz dále 13 obrázky
Cena

Cena nemovitosti: 379 000 €

741 259,57 лв.

Cena na m2: 1446,565 €

2 829,24 лв. na m2

Přihlaste se k odběru upozornění na změnu ceny
Umístění

oblast Sofia, Aldomirovci

Statistika
  • 3pohledy
  • 0šetří
Inzerát byl zveřejněn dne 8 říjen 2025
Kontaktovat prodejce
087XXX... (ukázat)
Činidlo
//photos.imoti.info/assets/images/brokerspicts/14278123161071879.webp
BILDING BOKS Sofija
0877734412

BILDING BOKS
Sofia Sofija EIK207674103
Na prodej Dům в oblast Sofia, Aldomirovci, 262 m2
379 000 €
262 m2Přízemí Cihlový, 2025
call20877734412