Zu verkaufen  Haus region Sofia , Nowi han , 353 qm | 44517020
16 Bilder

Zu verkaufen Haus в region Sofia, Nowi han, 353 qm

667 170
1 304 871,1 лв.
Die Mehrwertsteuer ist inbegriffen
Fläche: 353 qm(800 qm)Etage Erdgeschoss Bauart Ziegel, 2026
Zentralheizung: Lokale HeizungGas: -
Objektbeschreibung:
'Real Deal' представя на Вашето внимание : ексклузивна оферта РД - 24208

Новостроящи се монолитни къщи с просторни самостоятелни дворове в с. 'Нови хан'. Прекрасна локация сред зеленина, глеки към планите, спокойствие и тишина. На 10-15 минути с кола от София , в бързоразвиващ се район с училище, детска градина, адекватна инфраструктура, транспорт магазини и всичко необходимо.

Имотите представляват 4 големи самостоятелни къщи, всяка с по около 800 кв.м. двор и тупик(подход към гаражите) . Всяка от къщите разполага с огромна всекидневна и лятна кухня, сомостоятелна постройка за барбекю, закрити гаражи и няколко допълнителни паркоместа.

Качествено строителство, с висок клас материали : всяка от къщите разполага с 10 kw фотоволтаична система с батерии, с възможност за увеличаване на капацитета по желание на клиента, термопомпа за отопление и охлаждане, подово на двата етажа, вътрешна камина, собствена пречиствателна станция. Топлоизолацията ще бъде изпълнена с XPS плочи, минерална вата на стени и покрив. 7 камерна дограма на
K?mmerling - антрацит; тухли на Wienerberger; Инвеститорът строи една от къщите за собствено ползване и на обектите няма да се пести от материали.

Последни две къщи налични за покупка !

Гъвкави смеми на плащане както със собствени средства, така и с банков кредит - съобразени с възможностите на клиента.

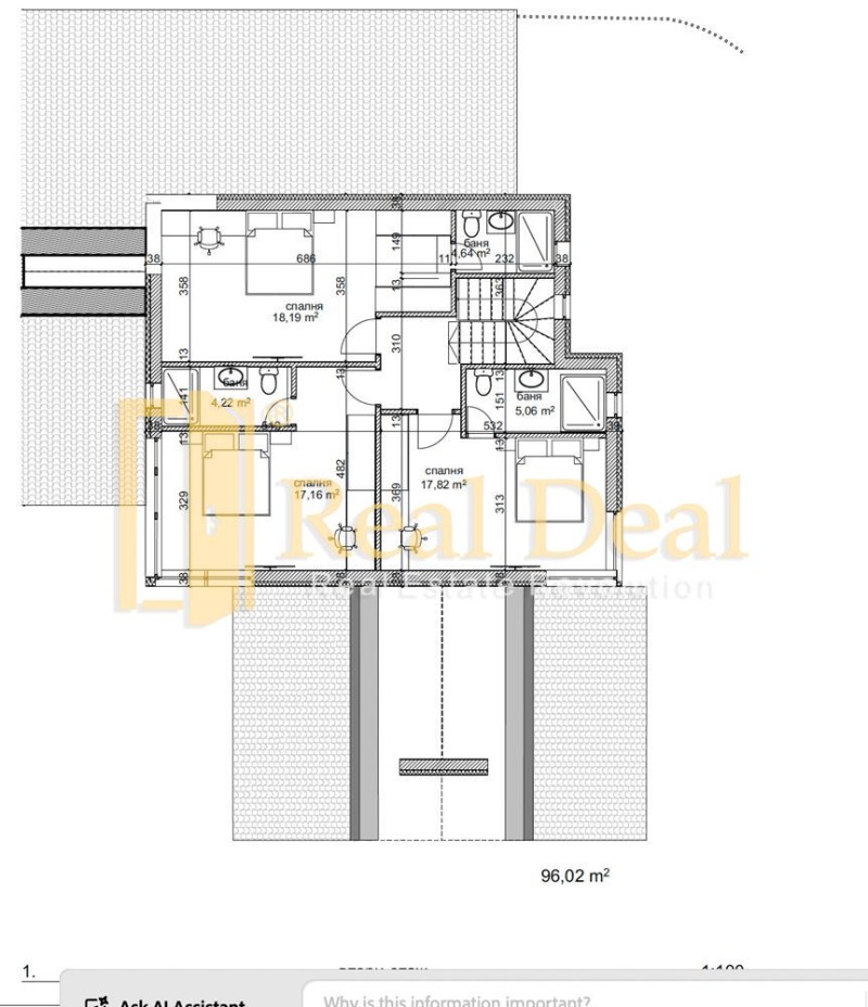
Големи, просторни и светли помещения : за детайлна информация са приложени архитектурите с разпределение и точни квадратури !

Първо ниво : голям затворен гараж с топла връзка, 72 кв.м 'навес за коли' с опция за няколко паркоместа, входно антре, зимник, дрешник , 1 спалня 18 кв.м. със самостоятелна бяна, голяма всекидневна (61 кв.м.) + веранда 22 кв.м. , отделна законна постройка за барбекю/лятна кухня и голям, самостоятелен и равен двор.

Второ ниво : още 3 големи спални по 18 квм.(общо 4 спални), още 3 бани (общо 4 бани)

Квадратури, РЗП, ЗП и двор:

Застроена площ 1 етаж : 134.60 кв.м.
Застроена площ навес за коли : 77.10 кв.м.
Застроена площ - втори етаж 99.65 кв.м.

Общо РЗП 321.37 кв.м.

Застроена площ лятна кухня : 31.29 кв.м.

Общо РЗП + лятна кухня = 352.52 кв.м.

Възможност за промени и преустройства в хода на сторителството спрямо желанията на клиента. Възможност за извършване на качествени довършителните работи от бригата на инвеститора и максимално бързо нанасяне в къщата. Къщите вече са с положени основи и се работи активно. Акт 14 пролетта на 2026, акт 16 пролеттна 2027г.

Възможен коментар на цената след направен оглед и с оставяне на резервационен депозит !

Агенцията работи САМО с актуални обяви!

За повече актуални обяви посетете нашия сайт: www.realdeal.bg

За повече информация и огледи: Божидар Зашев 0889402968
Zu verkaufen  Haus region Sofia , Nowi han , 353 qm | 44517020 - Bild [2]
Zu verkaufen  Haus region Sofia , Nowi han , 353 qm | 44517020 - Bild [3]
Zu verkaufen  Haus region Sofia , Nowi han , 353 qm | 44517020 - Bild [4]
Zu verkaufen  Haus region Sofia , Nowi han , 353 qm | 44517020 - Bild [5]Siehe weiter 12 Bilder
Preis

Immobilienpreis: 667 170 €

1 304 871,1 лв.

Preis An qm: 1890 €

3 696,52 лв. An qm

Abonnieren Sie mich für Benachrichtigungen über Preisänderungen
Standort

region Sofia, Nowi han

Statistiken
  • 24Ansichten
  • 0spart
Die Anzeige wurde am veröffentlicht 2 Oktober 2025
Verkäufer kontaktieren
088XXX... (zeigen)
Agent
//photos.imoti.info/assets/images/brokerspicts/14256462642792353.webp
Boschidar Zaschew
0889 402 968

RIAL DIAL EOOD
Sofia bul. 'Zarigradsko schose' 16, bl.11 wh.A
Zu verkaufen Haus в region Sofia, Nowi han, 353 qm
667 170 €
353 qmErdgeschoss Ziegel, 2026
call20889402968