Zu verkaufen  1 Schlafzimmer Sofia , Moderno predgradie , 56 qm | 44667372
2 Bilder

Zu verkaufen 1 Schlafzimmer в Sofia, Moderno predgradie, 56 qm

94 999
185 801,89 лв.
Die Mehrwertsteuer ist inbegriffen
Fläche: 56 qmEtage Erdgeschoss Bauart Ziegel
Zentralheizung: NEINGas: -
Objektbeschreibung:
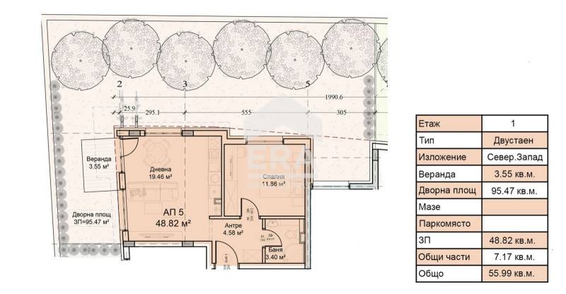
ЕРА Надежда продава един истински уютен и функционален двустаен апартамент в кв. Модерно предградие, разположен в нова сграда с вече издадено разрешение за строеж. Жилището е със застроена площ от 48,82 кв.м. и обща площ 55,99 кв.м., като към него принадлежи и прекрасно дворно пространство от 95,47 кв.м., което създава усещане за къща в града. Апартаментът е с изключително практично разпределение просторна дневна с кухненски бокс от 19,46 кв.м., уютна спалня с площ 11,86 кв.м., баня с тоалетна, антре и веранда от 3,55 кв.м., която плавно свързва вътрешното и външното пространство. Изложението е север-запад, което осигурява естествена светлина през целия ден и комфортна температура през летните месеци. Сградата ще бъде с модерна архитектура и висококачествено изпълнение, а районът предлага отлична инфраструктура и бърз достъп до центъра на София, както и близост до магазини, училища и градски транспорт. Това е идеален избор както за собствен дом, така и за инвестиция с висока възвращаемост, благодарение на комбинацията от практична квадратура, самостоятелно дворно място и отлична локация. Не пропускайте възможността да осигурите бъдещия си дом в една от най-бързоразвиващите се зони на столицата.

Оферта 3304537
Merkmale:
  • Aufzug
Zu verkaufen  1 Schlafzimmer Sofia , Moderno predgradie , 56 qm | 44667372 - Bild [2]
Preis

Immobilienpreis: 94 999 €

185 801,89 лв.

Preis An qm: 1696,411 €

3 317,89 лв. An qm

Abonnieren Sie mich für Benachrichtigungen über Preisänderungen
Standort

Sofia, Moderno predgradie

Statistiken
  • 3Ansichten
  • 0spart
Die Anzeige wurde am veröffentlicht 1 Oktober 2025
Verkäufer kontaktieren
087XXX... (zeigen)
Agent
//photos.imoti.info//assets/user.svg
Antonio Sawow
0877 878 879

ERA NADESCHDA
Sofia sch.k Nadeschda 1, bl. 172, wh. B, parter
Zu verkaufen 1 Schlafzimmer в Sofia, Moderno predgradie, 56 qm
94 999 €
56 qmErdgeschoss Ziegel
call20877878879