Zu verkaufen  2 Schlafzimmer Warna , Wladislaw Warnentschik 1 , 103 qm | 72808042
3 Bilder

Zu verkaufen 2 Schlafzimmer в Warna, Wladislaw Warnentschik 1, 103 qm

153 700
300 611,07 лв.
Es wird keine Mehrwertsteuer erhoben
Fläche: 103 qmEtage 4 Bauart Ziegel, 2026
Zentralheizung: -Gas: -
Objektbeschreibung:
International Real Estates (IRE) представя ексклузивно:
Тристаен апартамент в сграда Фюжън (пред акт14) ж.к. Владиславово

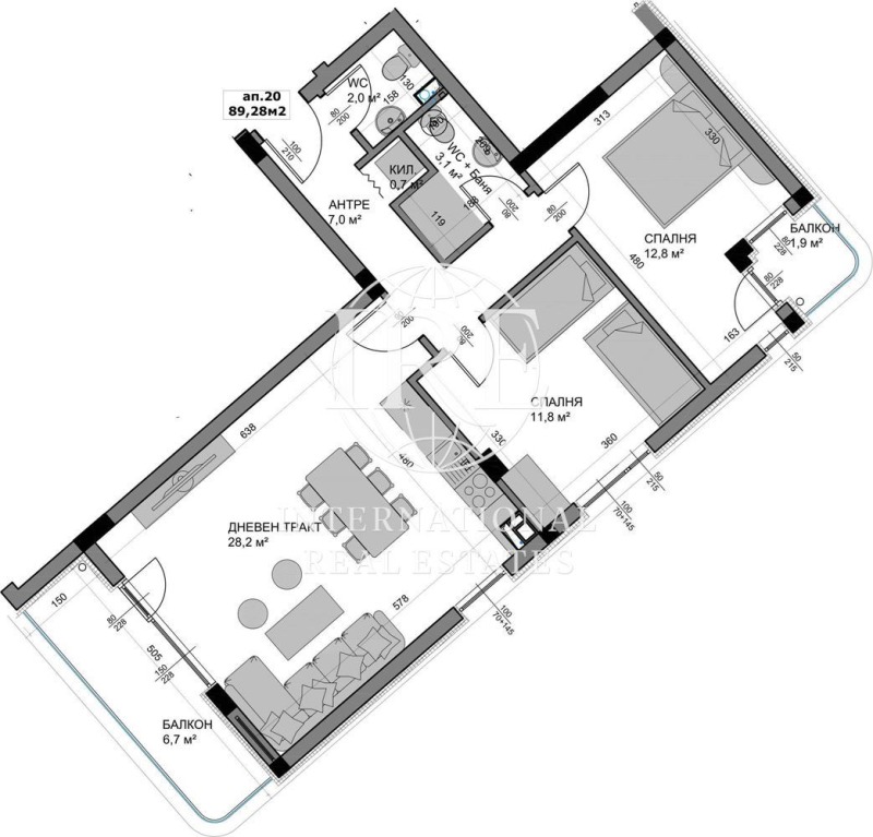
Апартаментът е разположен на 4-ти етаж от бутиковата сграда и предлага югозападно//югоизточно изложение с простор ,светлина и морска и градска панорама. С площ от 102.47 кв.м., имотът е изключително подходящ както за семейно жилище, така и за инвестиция.

Разпределение:
Дневна с кухненска част 28 кв.м.
2 големи спални
Баня с тоалетна
Отделна тоалетна
Килер/перално помещение
2 тераси
Допълнителни предимства:
Апартамента се предлага заедно с подземно паркомясто с площ от 21кв.м. на цена 16 000евро.
Разсрочено плащане , следваща вноска при акт15 (възможност за ипотечен кредит)
Възможност за цялостно завършване на апартамента на преференциални цени

Сграда и локация:
Фюжън 2 е още модерна осеметажна сграда в ж.к. Владислав Варненчик , проектирана с мисъл за елегантността и удобствата на съвременния градски начин на живот. Фасадата привлича погледа с изчистени линии и съвременен дизайн, допълнен от зеленина и облагородени пространства. Обитателите могат да се насладят на добре озеленените площи с пешеходни алеи и детска площадка, които създават приятна и спокойна атмосфера в градски условия.

За повече информация и организиране на оглед, моля свържете се с нас на посочения телефон и цитирайте код на обявата: 0090.

International Real Estate предлага пълно съдействие по целия процес на покупко-продажбата съдействаме при кредитиране, извършваме проверка на имота и работим в партньорство с всички водещи банкови институции в страната.

Ще бъдем до Вас на всяка стъпка по пътя към Вашия нов дом!
Merkmale:
  • Aufzug
  • Mit Parkplatz
  • Zugangskontrolle
Zu verkaufen  2 Schlafzimmer Warna , Wladislaw Warnentschik 1 , 103 qm | 72808042 - Bild [2]
Zu verkaufen  2 Schlafzimmer Warna , Wladislaw Warnentschik 1 , 103 qm | 72808042 - Bild [3]
Preis

Immobilienpreis: 153 700 €

300 611,07 лв.

Preis An qm: 1492,233 €

2 918,55 лв. An qm

Abonnieren Sie mich für Benachrichtigungen über Preisänderungen
Standort

Warna, Wladislaw Warnentschik 1

Statistiken
  • 73Ansichten
  • 0spart
Die Anzeige wurde am veröffentlicht 29 September 2025
Verkäufer kontaktieren
087XXX... (zeigen)
Agent
//photos.imoti.info//assets/user.svg
Wenzislaw Mirtschew
0879234888

INTERNESCHANAL RIAL ESTEJTS OOD
Warna bul.'Jan Hunijadi', 31, et. 2, ofis 1
Zu verkaufen 2 Schlafzimmer в Warna, Wladislaw Warnentschik 1, 103 qm
153 700 €
103 qm4 Ziegel, 2026
call20879234888