Zu verkaufen  2 Schlafzimmer Plowdiw , Zentar , 134 qm | 74214170
4 Bilder

Zu verkaufen 2 Schlafzimmer в Plowdiw, Zentar, 134 qm

132 000
258 169,56 лв.
Die Mehrwertsteuer ist inbegriffen
Fläche: 134 qmEtage 5 Bauart Ziegel, 2026
Zentralheizung: -Gas: -
Objektbeschreibung:
Оферта 68046: ПРОМОЦИОНАЛНА ЦЕНА ДО КРАЯ НА МЕСЕЦА-985 Е/КВ.М.!!!
ЕКСКЛУЗИВНА НОВОПОСТРОЕНА СГРАДА, САМО ОТ АГЕНЦИЯ 'КОНДОР'!
Имаме удоволствието да Ви представим новопостроеният ни обект разположен в Широкия Център.
Локация: Бърз достъп до Центъра, лесен и бърз достъп към изходите на града. Множество комуникации, непосредствена близост до реновирания бул. Марица с площадки и паркова зона по него.
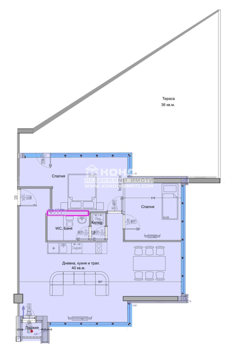
Разположение: Жилището, което Ви предлагаме е с ГОЛЯМА,ЪГЛОВА ЮГОИЗТОЧНА дневна с отделно обособен кът за хранене - 40 кв.м и лоджия, две спални, баня с тоалетна, перално помещение / килер/ и голяма тераса с площ от 36кв.м.
Изпълнение: Стъклена окачена фасада най-висок клас- Алумил с висока енергийна ефективност, повишено ниво на звукоизолация, статичност и функционалност при екстремни природни явления. * Тухли- с високо качество; Асансьори- три броя високоскоростни асансьора, като единия от тях ще бъде товарен.
* Удобен надземен и подземен паркинг с топла връзка.ВИЖТЕ ОЩЕ ИЗГОДНИ ОФЕРТИ НА https://www.kondorimoti.com/ С ЕЖЕДНЕВНА АКТУАЛИЗАЦИЯ!
Zu verkaufen  2 Schlafzimmer Plowdiw , Zentar , 134 qm | 74214170 - Bild [2]
Zu verkaufen  2 Schlafzimmer Plowdiw , Zentar , 134 qm | 74214170 - Bild [3]
Zu verkaufen  2 Schlafzimmer Plowdiw , Zentar , 134 qm | 74214170 - Bild [4]
Preis

Immobilienpreis: 132 000 €

258 169,56 лв.

Preis An qm: 985,075 €

1 926,64 лв. An qm

Abonnieren Sie mich für Benachrichtigungen über Preisänderungen
Standort

Plowdiw, Zentar

Statistiken
  • 50Ansichten
  • 0spart
Die Anzeige wurde am veröffentlicht 15 Oktober 2025
Verkäufer kontaktieren
089XXX... (zeigen)
Agent
//photos.imoti.info//assets/user.svg
Kondor Imoti
0897777032

KONDOR - NEDWISCHIMI IMOTI
Plowdiw ul.Petko D.Petkow 23,et.4 /do TZ Grand/
Zu verkaufen 2 Schlafzimmer в Plowdiw, Zentar, 134 qm
132 000 €
134 qm5 Ziegel, 2026
call20897777032