Προς πώληση  2 υπνοδωμάτια Βεληκο Ταρνοβο , Βυζλυδζα , 108 τ.μ | 68686293
5 εικόνες

Προς πώληση 2 υπνοδωμάτια в Βεληκο Ταρνοβο, Βυζλυδζα, 108 τ.μ

VIP
131 000
256 213,73 лв.
Περιλαμβάνεται ΦΠΑ
Εμβαδόν: 108 τ.μΌροφος 4η Τύπος κατασκευής Τούβλο, 2027
Κεντρική θέρμανση: -Αέριο: -
Περιγραφή ακινήτου:
ДИРЕКТНО ОТ ИНВЕСТИТОРА! БЕЗ КОМИСИОННА!
Краси Кънстръкшън ЕООД предлага апартамент, в новострояща се атрактивна и модерна жилищна сграда на ул. Димитър Благоев , кв.Бузлуджа. Комплексът е с конторлиран достъп с частен паркинг. Имотът е на комуникативно място в близост до парк, магазини и градски транспорт.
Разположението на жилищен комплекс предлага всичко, което поискате за уюта, сигурността и свободното време на цялото Ви семейство. Едно чудесно място за живеене с всички необходими удобства.

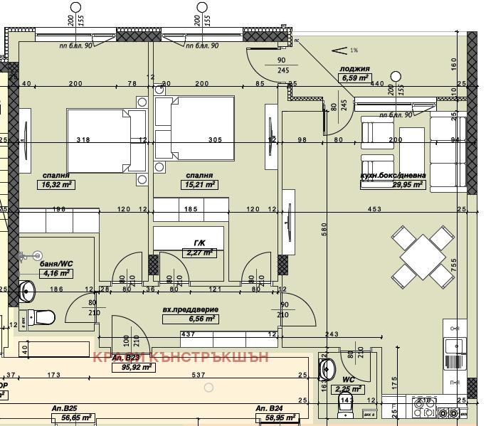
Апартаментът е с комфортно и функционално разпределение на четвърти жилищен етаж с изложение запад. Чистата жилищна площ е 95,92м2 разпределена между дневна с кухненски бокс,две спални коридор,тоалетна, баня с тоалетна, складово помещение и тераса.
Жилището ще бъде издадено с:
- дограма с немски профил SCHUCO 82 мм, троен стъклопакет- 4 мм четири сезона, 4 мм бяло, и 4мм нискоемисийно (К) стъкло;
- входна блиндирана врата с минерална вата;
- вътрешни интериорни врати;
- подови настилки на замазка;
- стени на гипсова мазилка
- висококачествена външната изолация Baumit с много добри топлоизолационни свойства,която ще осигури ефективно отопление през зимните месеци и приятна хладина през лятото.
- Фасадната част, покрита с Baumit e водоотблъскваща и силно паропропусклива
- тухли Wienerberger
- домофонна инсталация
- асансьорна уредба от водещия световен бранд KONE. Избраният модел асансьор е с повишена енергийна ефективност и безшумен.

Жилищната сграда ще бъде изцяло завършена с удостоверение за въвеждане в експлоатация Февриари 2027 година.
Използваните технологии и материали са от най-високо качество от доказан строител
Χαρακτηριστικά:
  • Ανελκυστήρας
  • Με χώρο στάθμευσης
  • Έλεγχος πρόσβασης
Προς πώληση  2 υπνοδωμάτια Βεληκο Ταρνοβο , Βυζλυδζα , 108 τ.μ | 68686293 - εικόνα [2]
Προς πώληση  2 υπνοδωμάτια Βεληκο Ταρνοβο , Βυζλυδζα , 108 τ.μ | 68686293 - εικόνα [3]
Προς πώληση  2 υπνοδωμάτια Βεληκο Ταρνοβο , Βυζλυδζα , 108 τ.μ | 68686293 - εικόνα [4]
Προς πώληση  2 υπνοδωμάτια Βεληκο Ταρνοβο , Βυζλυδζα , 108 τ.μ | 68686293 - εικόνα [5]Δείτε στη συνέχεια 1 εικόνες
Τιμή

Τιμή ακινήτου: 131 000 €

256 213,73 лв.

Τιμή επί τ.μ: 1212,963 €

2 372,35 лв. επί τ.μ

Εγγραφείτε για ειδοποιήσεις αλλαγής τιμής
Τοποθεσία

Βεληκο Ταρνοβο, Βυζλυδζα

Στατιστική
  • 6προβολές
  • 0σώζει
Η αγγελία δημοσιεύτηκε στις 9 Οκτωβρίου 2025
Επικοινωνία με τον πωλητή
088XXX... (προβολή)
ΚΡΑΣΗ ΚΑΝΣΤΡΑΚΤΣΑΝ
Βεληκο Ταρνοβο Υλ.Ανγελ Καραληιτσεβ 12
Προς πώληση 2 υπνοδωμάτια в Βεληκο Ταρνοβο, Βυζλυδζα, 108 τ.μ
131 000 €
108 τ.μΤούβλο, 2027
call20885910510