Представяме Ви новия проект на доказал се строител с дългогодишен опит и стабилна репутация на пазара, разположен в един от най-бързо развиващите се райони -кв. Виница.
Сградата ще се състои от две самостоятелни тела с височина 5 и 6 етажа, проектирани с внимание към всеки детайл. В нея са предвидени разнообразни по големина и тип апартаменти от функционални едностайни до просторни многостайни жилища, отговарящи на нуждите както на млади семейства, така и на хора, търсещи спокойствие и уют.
Всички апартаменти ще се отличават с благоприятно изложение, оптимална осветеност и впечатляваща морска панорама, осигуряваща усещане за простор и хармония.
В сутерена на сградата е предвиден подземен паркинг за максимално удобство и сигурност на живущите. Допълнително, в дворното пространство ще бъдат изградени външни паркоместа и зелени зони, създаващи комфортна и приятна среда за обитаване.
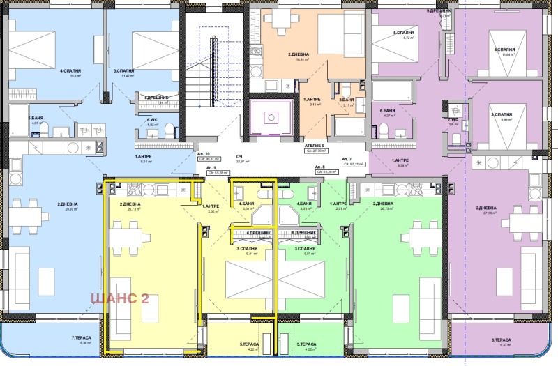
Ап. 9 е разположен във вх.Б, на 3-ти етаж (не е последен) с хубава морска гледка. Застроената му площ е 55 кв.м, обща площ (с общи части) 62 кв.м. Разпределението е: просторна всекидневна с кухненска част 27 кв.м, спалня 10 кв.м, баня с тоалет и входно антре. Двете стаи излизат на обща тераса.
Апартаментът се отличава с удобно вътрешно разпределение, което осугурява комфорт и уют. Големите прозорци в дневната осигуряват естествена светлина и директна гледка към морето.
Проектът съчетава модерна архитектура, висококачествени материали и функционални разпределения, гарантиращи дългосрочна стойност и високо качество на живот.
Σύνδεση
+ Δωρεάν αγγελία

![Προς πώληση 1 υπνοδωμάτιο Βαρνα , Βηνητσα , 62 τ.μ | 81198890 - εικόνα [2] — Imoti.info Προς πώληση 1 υπνοδωμάτιο Βαρνα , Βηνητσα , 62 τ.μ | 81198890 - εικόνα [2]](http://imotstatic4.focus.bg/imot/photosimotbg/1/276/big/1b176243814172276_ZZ.jpg)
![Προς πώληση 1 υπνοδωμάτιο Βαρνα , Βηνητσα , 62 τ.μ | 81198890 - εικόνα [3] — Imoti.info Προς πώληση 1 υπνοδωμάτιο Βαρνα , Βηνητσα , 62 τ.μ | 81198890 - εικόνα [3]](http://imotstatic4.focus.bg/imot/photosimotbg/1/276/big/1b176243814172276_ii.jpg)
![Προς πώληση 1 υπνοδωμάτιο Βαρνα , Βηνητσα , 62 τ.μ | 81198890 - εικόνα [4] — Imoti.info Προς πώληση 1 υπνοδωμάτιο Βαρνα , Βηνητσα , 62 τ.μ | 81198890 - εικόνα [4]](http://imotstatic4.focus.bg/imot/photosimotbg/1/276/big/1b176243814172276_u6.jpg)
![Προς πώληση 1 υπνοδωμάτιο Βαρνα , Βηνητσα , 62 τ.μ | 81198890 - εικόνα [5] — Imoti.info Προς πώληση 1 υπνοδωμάτιο Βαρνα , Βηνητσα , 62 τ.μ | 81198890 - εικόνα [5]](http://imotstatic4.focus.bg/imot/photosimotbg/1/276/big/1b176243814172276_dw.jpg)









