Προς πώληση  2 υπνοδωμάτια Βυργασ , Ζορνητσα , 93 τ.μ | 82121606
8 εικόνες

Προς πώληση 2 υπνοδωμάτια в Βυργασ, Ζορνητσα, 93 τ.μ

258 808 Δείτε στον χάρτη
506 184,45 лв.
Περιλαμβάνεται ΦΠΑ
Εμβαδόν: 93 τ.μΌροφος 5η Τύπος κατασκευής Τούβλο, 2027
Κεντρική θέρμανση: ΟΧΙΑέριο: ΟΧΙ
Περιγραφή ακινήτου:
LUXIMMO FINEST ESTATES: www.luximmo.bg
Предлагаме просторен тристаен апартамент, разположен в съвременна нова сграда, отличаваща се с елегантна визия, високо качество на изпълнение и внимание към детайла. Имотът се намира в един от най-зелените и предпочитани райони на Бургас ж.к. Зорница , който предлага перфектен баланс между спокойствие, модерна инфраструктура и близост до морския бряг. Локацията осигурява бърз достъп до центъра на града, училища, паркове и удобства за активен и комфортен начин на живот.

Етапи:
В процес на строителство от 08.2025 г.
Планирано завършване - след 24 месеца.

Локация и предимства:
Сградата се намира в район с ограничени възможности за ново строителство, което гарантира устойчива стойност във времето.
Местоположението предлага баланс между комуникативност и спокойствие в близост са центърът на града, Морската градина, основни пътни артерии, детска градина, училище, спортна зала, спирки на градския транспорт и разнообразие от магазини и заведения.
На пешеходно разстояние се намират клиника 4Life, поликлиника, детска клиника и здравни лаборатории, което прави района изключително подходящ за семейства и хора, търсещи комфорт и сигурност.

Характеристики на сградата:
Пет жилищни етажа с двустайни и тристайни имоти, завършени по БДС.
Сутерен с гаражи и паркоместа, осигуряващи удобство и безопасност за собствениците.
Модерна архитектура и енергийно ефективни решения, гарантиращи ниски разходи за поддръжка и отопление.
Висококачествени материали и прецизно строителство стандарт, който осигурява дълготрайна стойност и комфорт.

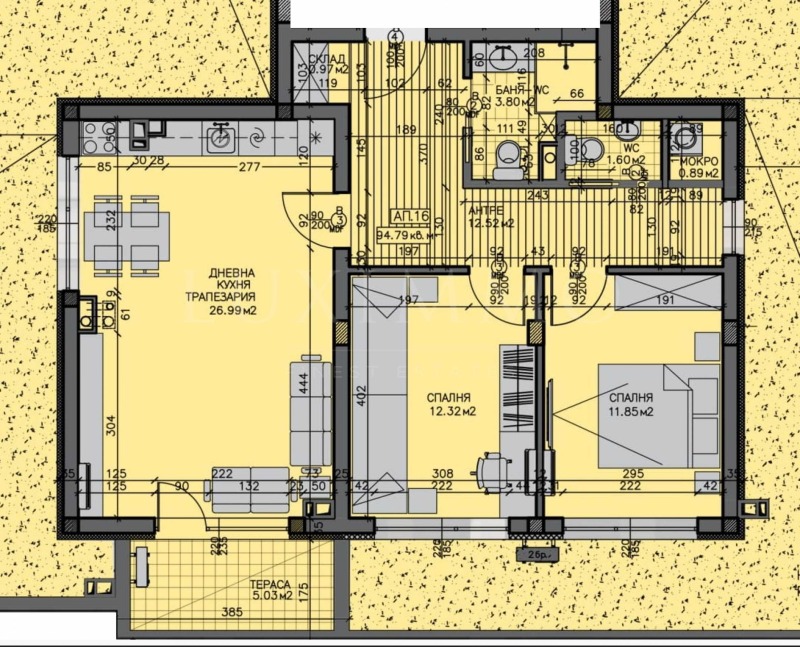
Характеристики на имота

Разположен на пети жилищен етаж;
Обща площ: 93.38 кв.м;
Общи части: 17.74 кв.м;
Изложение: изток;
Разпределение: просторна всекидневна с кухня и трапезария, две спални, баня с тоалетна и тераса;
Имотът разполага с дворно пространство от 212.39 кв.м.

Предимства:
Съвременна архитектура и елегантна ...

За повече информация свържете се с нас и цитирайте референтния номер на имота. Моля, кажете, че сте видeли обявата в този сайт.
Референтен номер: LXH-134939
Тел: 0882 813 613, 056 987 088
Отговорен брокер:Ваня Иванова
Без комисиона от купувача
Χαρακτηριστικά:
  • Ανελκυστήρας
  • Με χώρο στάθμευσης
Προς πώληση  2 υπνοδωμάτια Βυργασ , Ζορνητσα , 93 τ.μ | 82121606 - εικόνα [2]
Προς πώληση  2 υπνοδωμάτια Βυργασ , Ζορνητσα , 93 τ.μ | 82121606 - εικόνα [3]
Προς πώληση  2 υπνοδωμάτια Βυργασ , Ζορνητσα , 93 τ.μ | 82121606 - εικόνα [4]
Προς πώληση  2 υπνοδωμάτια Βυργασ , Ζορνητσα , 93 τ.μ | 82121606 - εικόνα [5]Δείτε στη συνέχεια 4 εικόνες
Τιμή

Τιμή ακινήτου: 258 808 €

506 184,45 лв.

Τιμή επί τ.μ: 2782,882 €

5 442,84 лв. επί τ.μ

Εγγραφείτε για ειδοποιήσεις αλλαγής τιμής
Τοποθεσία

Βυργασ, Ζορνητσα

mapΕμφάνιση στον χάρτη
Στατιστική
  • 23προβολές
  • 0σώζει
Η αγγελία δημοσιεύτηκε στις 7 Οκτωβρίου 2025
Επικοινωνία με τον πωλητή
088XXX... (προβολή)
Μέσο
//photos.imoti.info//assets/user.svg
Βανια Ηβανοβα
0882 813 613

ΛΥΚΣΗΜΜΟ - ΒΥΡΓΑΣ
Βυργασ γρ. Βυργασ, Tαργοβσκη κομπλεκσ 'Κηρηλ η Μετοδηι', υλ. 'Γενεραλ Σκοβελεβ' 10
Προς πώληση 2 υπνοδωμάτια в Βυργασ, Ζορνητσα, 93 τ.μ
258 808 €
93 τ.μΤούβλο, 2027
call20882813613