Προς πώληση  2 υπνοδωμάτια Πλοβδηβ , Καρτσηιακα , 128 τ.μ | 85873825
7 εικόνες

Προς πώληση 2 υπνοδωμάτια в Πλοβδηβ, Καρτσηιακα, 128 τ.μ

242 280
473 858,49 лв.
Περιλαμβάνεται ΦΠΑ
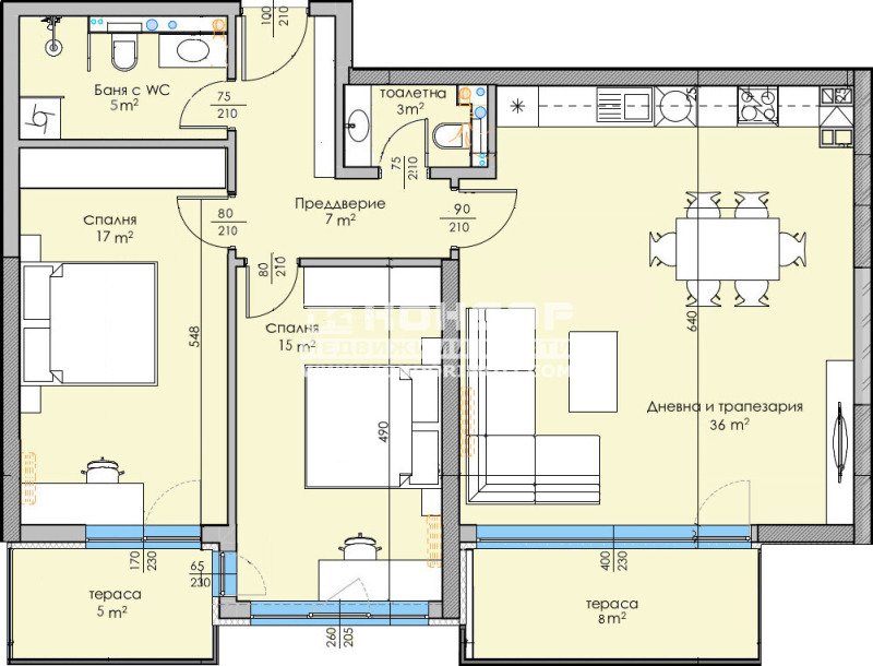
Εμβαδόν: 128 τ.μΌροφος 5η Τύπος κατασκευής Τούβλο, 2025
Κεντρική θέρμανση: -Αέριο: -
Περιγραφή ακινήτου:
Оферта 62738: Предлагаме Ви възможността да закупите функционален 3-стаен апартамент С ИЗЦЯЛО ЮЖНО ИЗЛОЖЕНИЕ в луксозна жилищна сграда с модерна визия, проектиран да създаде максимален комфорт на живущите в него. Основната концепция e премиум строителство, отличаващо се със съвременен архитектурен дизайн и европейска визия. Едно от основните му предимства е страхотната локация, разположен на пешеходна близост до Централна градска част, съчетаващо лукс спокойствие и комфорт. Жилището се състои от просторна дневна - 36кв.м. с трапезария и кухненски бокс, две големи спални: родителска 17кв.м., детска 15кв.м., баня с тоалетна, втора тоалетна, две тераси и коридор. Към апартамента има прилежаща изба. Основната концепция при проектирането е да се постигнат просторни и функционални стаи с цел да се създаде максимален уют на модерното семейство. Изключителна съвременна архитектура и модерна технология на строителство. Визията е иновативна, привличаща внимание с уникалността си. Безопасна и сигурна среда за пребиваващите допълват комфорта на сградата. Всяко жилище разполага с пълно окабеляване за домофон, интернет и кабелна телевизия, общите части са луксозно завършени, а апартаментите са с алуминиева дограма с троен стъклопакет от най-висок клас, както и масивна блиндирана входна врата. За удобство на живущите съществува възможността да закупят подземни и надземни паркоместа. Възможност за закупуване чрез Банков Кредит на изключително изгодни условия за клиенти на Агенцията !

ВИЖТЕ ОЩЕ ИЗГОДНИ ОФЕРТИ НА https://www.kondorimoti.com/ С ЕЖЕДНЕВНА АКТУАЛИЗАЦИЯ!
Προς πώληση  2 υπνοδωμάτια Πλοβδηβ , Καρτσηιακα , 128 τ.μ | 85873825 - εικόνα [2]
Προς πώληση  2 υπνοδωμάτια Πλοβδηβ , Καρτσηιακα , 128 τ.μ | 85873825 - εικόνα [3]
Προς πώληση  2 υπνοδωμάτια Πλοβδηβ , Καρτσηιακα , 128 τ.μ | 85873825 - εικόνα [4]
Προς πώληση  2 υπνοδωμάτια Πλοβδηβ , Καρτσηιακα , 128 τ.μ | 85873825 - εικόνα [5]Δείτε στη συνέχεια 3 εικόνες
Τιμή

Τιμή ακινήτου: 242 280 €

473 858,49 лв.

Τιμή επί τ.μ: 1892,813 €

3 702,02 лв. επί τ.μ

Εγγραφείτε για ειδοποιήσεις αλλαγής τιμής
Τοποθεσία

Πλοβδηβ, Καρτσηιακα

Στατιστική
  • 561προβολές
  • 0σώζει
Η αγγελία έχει ενημερωθεί στις 12 Σεπτεμβρίου 2025
Επικοινωνία με τον πωλητή
089XXX... (προβολή)
Μέσο
//photos.imoti.info//assets/user.svg
Κονδορ Ημοτη
0897777032

ΚΟΝΔΟΡ - ΝΕΔΒΗΖΗΜΗ ΗΜΟΤΗ
Πλοβδηβ υλ.Πετκο Δ.Πετκοβ 23,ετ.4 /δο ΤΤΣ Γρανδ/
Προς πώληση 2 υπνοδωμάτια в Πλοβδηβ, Καρτσηιακα, 128 τ.μ
242 280 €
128 τ.μΤούβλο, 2025
call20897777032