Προς πώληση  σπίτι Βαρνα , μ-τ Γορνα Τρακα , 118 τ.μ | 87117685
6 εικόνες

Προς πώληση σπίτι в Βαρνα, μ-τ Γορνα Τρακα, 118 τ.μ

200 000
391 166 лв.
Δεν χρεώνεται ΦΠΑ
Εμβαδόν: 118 τ.μ(120 τ.μ)Όροφος 3η Τύπος κατασκευής Τούβλο, 2026
Κεντρική θέρμανση: -Αέριο: -
Περιγραφή ακινήτου:
КЪЩА на 3 етажа, м-ст Горна Трака с прилежащ двор с площ от 120кв.м. и 2 бр. паркоместа!
Агенция ВАШ ДОМ предлага на Вашето внимание нова редова къща на три етажа, с РЗП - 118кв.м. и следното разпределение:
Ет.1 със ЗП - 39,52м2, където са разположени дневен тракт с кухня с излаз към веранда, която преминава плавно в градина, санитарен възел;
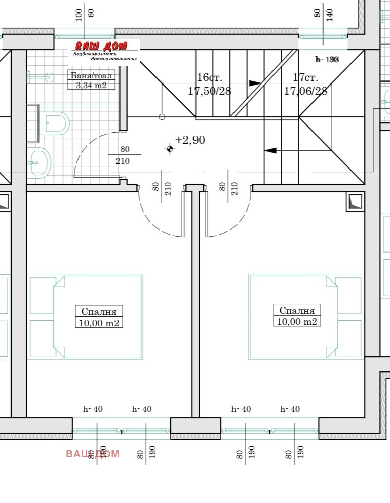
Ет.2 със ЗП - 39,52м2, състоящ се от 2 спални и баня-тоалет;
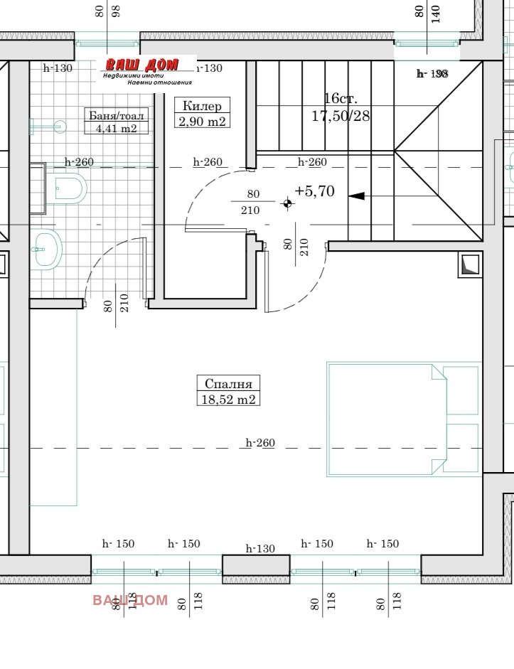
Ет.3 със ЗП - 39,52м2, където е разположена голяма спалня, килер, баня-тоалет. двор с площ от 120 кв.м.
Предвидени са 2 бр. Паркоместа.
Отлична локация с асфалтов достъп, отстои на 2км. от к.к.Константин и Елена и кв.Виница.
Районът се отличава с чист въздух и живописна природа, бърз достъп и близост до спирки на градския транспорт.
Къщите ще бъдат завършени до етап БДС със следните екстри:
- дограма REHAU Synego- 80мм. с троен стъклопакет
- входна врата HORMAN
- система за водно подово отопление
- фасадна топлоизолация 12см. Eps на BAUMIT
- покривна топлоизолация 15см. каменна вата на KNAUF
- подова топлоизолация 8см. на FIBRAN.
- веранда, настилка от гранитни плочи
- паркинг, настилка от бетонни павета Semmelrock
- стени с керамични блокова на Porotherm
- външен извод за поливна система
- покривни прозорци Velux
Възможност за закупуване на друга идентична редова къща с по-голям двор с площ от 230 кв.м. за цена от 220 000EUR.
Стартирало строителство м. Август 2025г.
Краен срок: Декември 2026г.
Възможност за разсрочено плащане по индивидуална схема на купувача.
Χαρακτηριστικά:
  • Με χώρο στάθμευσης
  • Έλεγχος πρόσβασης
Προς πώληση  σπίτι Βαρνα , μ-τ Γορνα Τρακα , 118 τ.μ | 87117685 - εικόνα [2]
Προς πώληση  σπίτι Βαρνα , μ-τ Γορνα Τρακα , 118 τ.μ | 87117685 - εικόνα [3]
Προς πώληση  σπίτι Βαρνα , μ-τ Γορνα Τρακα , 118 τ.μ | 87117685 - εικόνα [4]
Προς πώληση  σπίτι Βαρνα , μ-τ Γορνα Τρακα , 118 τ.μ | 87117685 - εικόνα [5]Δείτε στη συνέχεια 2 εικόνες
Τιμή

Τιμή ακινήτου: 200 000 €

391 166 лв.

Τιμή επί τ.μ: 1694,915 €

3 314,97 лв. επί τ.μ

Εγγραφείτε για ειδοποιήσεις αλλαγής τιμής
Τοποθεσία

Βαρνα, μ-τ Γορνα Τρακα

Στατιστική
  • 26προβολές
  • 0σώζει
Η αγγελία έχει ενημερωθεί στις 12 Οκτωβρίου 2025
Επικοινωνία με τον πωλητή
088XXX... (προβολή)

ΒΑΤΣ ΔΟΜ
Βαρνα υλ.'Σοφρονηι Βρατσανσκη' 8, ετ.1, οφησ 1
Προς πώληση σπίτι в Βαρνα, μ-τ Γορνα Τρακα, 118 τ.μ
200 000 €
118 τ.μΤούβλο, 2026
call20888892425