Προς πώληση  σπίτι Βαρνα , μ-τ Γορνα Τρακα , 118 τ.μ | 92888782
6 εικόνες

Προς πώληση σπίτι в Βαρνα, μ-τ Γορνα Τρακα, 118 τ.μ

220 000
430 282,6 лв.
Περιλαμβάνεται ΦΠΑ
Εμβαδόν: 118 τ.μ(230 τ.μ)Όροφος - Τύπος κατασκευής Τούβλο
Κεντρική θέρμανση: ΟΧΙΑέριο: -
Περιγραφή ακινήτου:
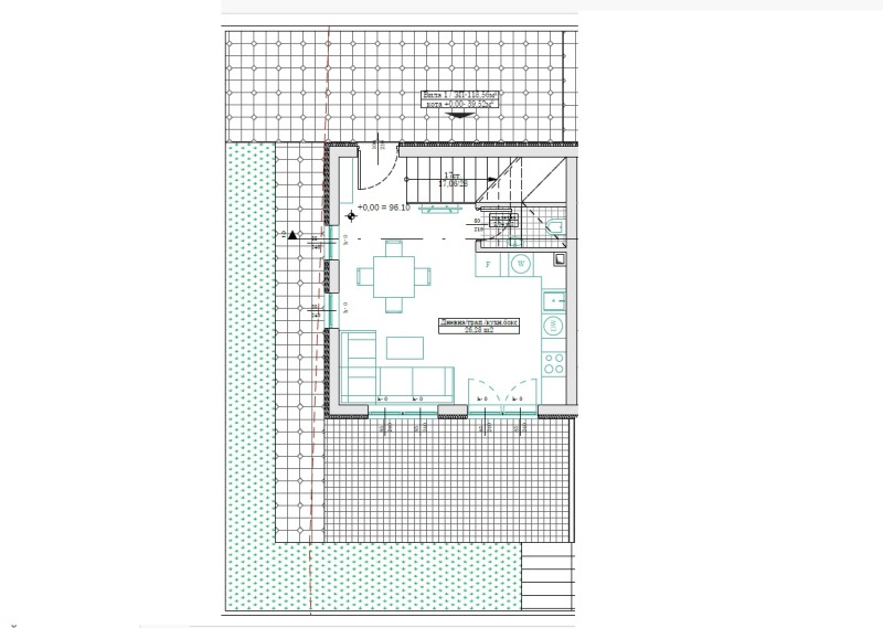
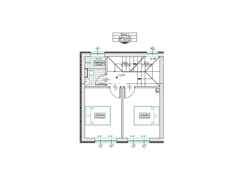
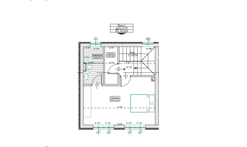
ЕРА Варна Тренд предлага за продажба триетажна, новострояща се, редова къща с двор, в м-т Горна Трака. Къщата е с РЗП 118,56 кв.м и следното разпределение:

Първият етаж със застроена площ 39,52 кв.м се състои от дневна с кухненски бокс (26,28 кв.м) и излаз на веранда (17,83 кв.м), коридор и тоалетна (2,04 кв.м). Вътрешно стълбище води до втория етаж със застроена площ 39,52 кв.м, включващ две спални (по 10 кв.м всяка), коридор и баня с тоалетна (3,34 кв.м). Вътрешно стълбище води до третия етаж със застроена площ 39,52 кв.м, представляващ една голяма спалня (18,52 кв.м) с баня с тоалетна (4,41 кв.м), коридор и килер (2,9 кв.м). Изложението е юг/запад/север.

Къщата се продава необзаведена. Ще бъде завършена до степен БДС:
- дограма REHAU Synego - 80 мм, с троен стъклопакет;
- входна врата HORMAN;
- система за подово отопление;
- фасадна топлоизолация 12 см, Eps на BAUMIT;
- покривна топлоизолация 15 см, каменна вата на KNAUF;
- подова топлоизолация 8 см на FIBRAN;
- веранда, настилка от гранитни плочи;
- паркинг, настилка от бетонни павета Semmelrock;
- стени с керамични блокове на Porotherm;
- външен извод за поливна система;
- покривни прозорци Velux.

Триетажната къща е част от жилищен комплекс от няколко редови къщи, на начален етап на строителство (Разрешение за строеж - август 2025 г.). Ще бъде завършен до края на 2026 г. Към предлаганата къща има самостоятелен двор с площ 230,12 кв.м, с две открити паркоместа. Предвидена е разсрочена схема на плащане: 30% на Предварителен договор, 30% на Акт 14, 30% на Акт 15 и 10% на Акт 16 (Разрешение за ползване).

Оферта 0221234
Προς πώληση  σπίτι Βαρνα , μ-τ Γορνα Τρακα , 118 τ.μ | 92888782 - εικόνα [2]
Προς πώληση  σπίτι Βαρνα , μ-τ Γορνα Τρακα , 118 τ.μ | 92888782 - εικόνα [3]
Προς πώληση  σπίτι Βαρνα , μ-τ Γορνα Τρακα , 118 τ.μ | 92888782 - εικόνα [4]
Προς πώληση  σπίτι Βαρνα , μ-τ Γορνα Τρακα , 118 τ.μ | 92888782 - εικόνα [5]Δείτε στη συνέχεια 2 εικόνες
Τιμή

Τιμή ακινήτου: 220 000 €

430 282,6 лв.

Τιμή επί τ.μ: 1864,407 €

3 646,46 лв. επί τ.μ

Εγγραφείτε για ειδοποιήσεις αλλαγής τιμής
Τοποθεσία

Βαρνα, μ-τ Γορνα Τρακα

Στατιστική
  • 23προβολές
  • 0σώζει
Η αγγελία δημοσιεύτηκε στις 13 Οκτωβρίου 2025
Επικοινωνία με τον πωλητή
089XXX... (προβολή)
Μέσο
//photos.imoti.info/assets/images/brokerspicts/14960686688556383.webp
Δεσησλαβα Αρανγελοβα
0894 625282, 052 625272

ΕΡΑ ΒΑΡΝΑ ΤΡΕΝΔ
Βαρνα υλ. ΤΣαρ 1
Προς πώληση σπίτι в Βαρνα, μ-τ Γορνα Τρακα, 118 τ.μ
220 000 €
118 τ.μ- Τούβλο
call20894625282