ОФЕРТА 85225
СУПЕР ЦЕНА!
БЕЗ КОМИСИОННА! ✨
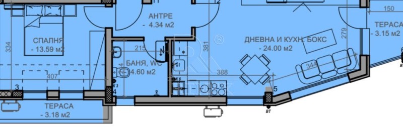
Представяме Ви чудесен имот, подходящ както за лично ползване, така и за инвестиция. Апартаментът е част от модерна сграда с асансьор, предлагаща комфорт и функционалност. Просторните и светли помещения създават уютна атмосфера за Вашето бъдещо жилище. 🏡
Характеристики на имота:
📐 Обща площ: 79,02 кв.м.
🛋️ Стаи: 2
🛏️ Спални: 1
🚿 Баня с тоалетна: 1
🌅 Балкон: 1
🛗 Асансьор в сградата
🏗️ Ново строителство
Имотът е с практично разпределение просторна всекидневна, уютна спалня, тераса с приятна гледка и баня с тоалетна. Подходящ е за млади семейства, двойки или хора, търсещи инвестиция в бързоразвиващ се район.
Acceso
+ Anuncio gratuito

![En venta 1 dormitorio Plovdiv , Komatevo , 79 metros cuadrados | 68480433 - imagen [2] — Imoti.info En venta 1 dormitorio Plovdiv , Komatevo , 79 metros cuadrados | 68480433 - imagen [2]](http://imotstatic4.focus.bg/imot/photosimotbg/1/612/big/1b175947949927612_l.jpg)










