En venta  Estudio Sofia , Sujodol , 51 metros cuadrados | 83648493
8 obrázky

En venta Estudio в Sofia, Sujodol, 51 metros cuadrados

84 750
165 756,59 лв.
El IVA está incluido.
Plocha: 51 metros cuadradosPatro 2do Typ stavby Ladrillo, 2027
Ústřední topení: -Plyn: SÍ
Popis nemovitosti:
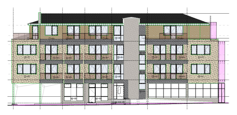
Продавам 1-стаен апартамент в нова бутикова сграда в затворен комплекс в кв. Суходол, ул. Орех 47. Апартаментът е с площ 51 м² с общи части и чиста жилищна площ 44 м², състоящ се от антре, просторна дневна с трапезария и кухненски бокс, зона за сън, която може да се обособи като самостоятелна спалня, баня и WC, и лоджия. Изложението му е югозападно с панорама към Витоша. Довършителни работи на 3 нива по желание на клиента, с възможност за завършване суперлукс до ключ.
Сградата е изградена по най- модерни архитектурни тенденции. Спазени са всички конструктивно - технически стандарти. Сертифицирана е с най-висок клас на енергийна ефективност А+. Използвани са модерни технологии и висококачествени материали:
- 8 камерна дограма Rehau Artevo с ширина на крилото 97 мм и троен стъклопакет 4 сезона с магнезиево покритие. Дограмата разполага с допълнително средно уплътнение;
- Блиндирани входни врати Protecta с тристранно заключване и магнитна бронировка на патрона. Най-висок клас брави и патрони Mottura /Италия/
- Фасадни и преградни стени от керамични блокове Wienerberger Porotherm THERMO N+F с най-високи топлоизолационни и шумоизолационни свойства.
-Шумоизолация между етажите - 10 см пресована каменна вата, която поема всякакъв шум при ниски и високи честоти.
- Фасадно топлоизолационна система Rofix с фасадна каменна вата KNAUF с висока плътност и дебелина 15 см. Коефициент на топлопроводимост λ=0,031 W/m.K (този материал е 40 % по-добър от обикновен стиропор). Притежава свойството паропропускливост - елиминира всякаква възможност за образуване на мухъл. Завършваща силиконова минерална мазилка.
- Гранит по стълбища и общи части
- Гранитни външни плотове по прозорците
- Боядисани стени и тавани в цвят по желание на клиента
- ВиК инсталации от INOX, практически вечни
- Отопление на газ с изградена газова инсталация
- Хидравличен безшумен асансьор
- Монтирани зарядни станции за електроавтомобили
Сградата разполага с различни видове 2-стайни и 3-стайни апартаменти. Предлага се отстъпка според начина на плащане.
Апартаменти:
-североизток, северозапад : 1 850 евро/м²
-югоизток, югозапад : 2 050 евро/м²
Гаражи 20 000 евро
Паркоместа 18 000 евро. Възможност да се закупи допълнително паркомясто.
Мазета 3 000 евро
Комплексът е затворен, с прекрасна панорама към Витоша. Отделен с плътна ограда, разполага с денонощно видеонаблюдение и контрол на достъпа. Дворното място е богато озеленено, с изградени детска площадка и кътчета за отдих с обща площ 2000 м². Много добра локация в близост до метростанция Горна баня. На съседната улица има училище и нова детска градина.
Комплексът съчетава всички условия за спокойствие, комфорт и релакс сред природата.
Възможност да запазите избраното от Вас жилище.
Очаква се разрешение за строеж.
Срок на завършване на сградата с Акт 16: 2027 г.
За допълнителна информация и връзка: 0899199635 - инж. Петрова
Funkce:
  • Elevar
  • Con estacionamiento
  • conexión a Internet
  • Cámaras de seguridad
  • Control de acceso
  • Seguridad
  • Aislamiento térmico
  • Complejo cerrado
  • Crédito fiscal
En venta  Estudio Sofia , Sujodol , 51 metros cuadrados | 83648493 - imagen [2]
En venta  Estudio Sofia , Sujodol , 51 metros cuadrados | 83648493 - imagen [3]
En venta  Estudio Sofia , Sujodol , 51 metros cuadrados | 83648493 - imagen [4]
En venta  Estudio Sofia , Sujodol , 51 metros cuadrados | 83648493 - imagen [5]Viz dále 4 obrázky
Cena

Cena nemovitosti: 84 750 €

165 756,59 лв.

Cena en metros cuadrados: 1661,765 €

3 250,13 лв. en metros cuadrados

Přihlaste se k odběru upozornění na změnu ceny
Umístění

Sofia, Sujodol

Statistika
  • 10pohledy
  • 0šetří
Inzerát byl zveřejněn dne 3 octubre 2025
Kontaktovat prodejce
089XXX... (ukázat)
PRIZMA
Sofia ul. Krakra 19
En venta Estudio в Sofia, Sujodol, 51 metros cuadrados
84 750 €
51 metros cuadrados2do Ladrillo, 2027
call20899199635