Myytävänä  2 makuuhuonetta Varna , m-t Gorna Traka , 94 neliömetriä | 73264432
14 kuvia

Myytävänä 2 makuuhuonetta в Varna, m-t Gorna Traka, 94 neliömetriä

169 000
330 535,27 лв.
ALV sisältyy hintaan
Pinta-ala: 94 neliömetriäKerros 3 Rakennustyyppi Tiili
Keskuslämmitys: EIKaasu: -
Kiinteistön kuvaus:
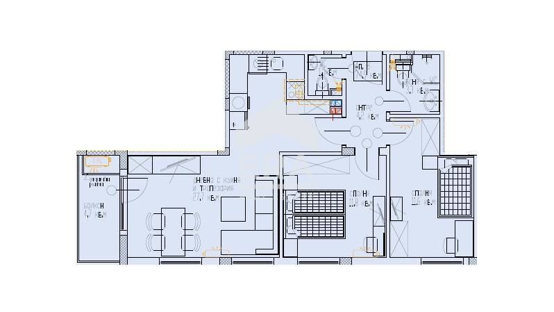
ЕКСКЛУЗИВНО! ЕРА Вива продава тристаен апартамент с морска панорама в новострояща сграда пред Акт 15 в м-ст Траката, гр. Варна. Имотът е с площ от 86.14 кв.м. и се състои се от коридор /4.2 кв.м./, дневна с кухня и трапезария /27.7 кв.м./, две спални /11.8 кв.м. и 11.6 кв.м./, баня с тоалетна, отделна тоалетна и тераса с уникална морска панорама. Жилището се предлага в степен на завършеност по БДС, с поставена PVC дограма и външна блиндирана врата. Изложението е южно. Прилежащо избено помещение с площ от 2.77 кв.м. За повече информация вж. раздел 'План'.

Тухлена сграда пред Акт 15 от затворен тип с контролиран достъп, луксозни общи части, с асансьор и без такса поддръжка. Използваните материали и технологии са съобразени с последните иновации в строителния бранш, гарантирайки устойчивост и енергийна ефективност. Има възможност за закупуване на паркомясто на цена от 16 000 евро.

Тих и спокоен район, на 20 м от автобусна спирка. В близост има денонощен супермаркет. Сградата се намира на 3 км от центъра на града и на 1 км от модерния курорт Св. Св. Константин и Елена.

Оферта 1009641
Ominaisuudet:
  • Hissi
Myytävänä  2 makuuhuonetta Varna , m-t Gorna Traka , 94 neliömetriä | 73264432 - kuva [2]
Myytävänä  2 makuuhuonetta Varna , m-t Gorna Traka , 94 neliömetriä | 73264432 - kuva [3]
Myytävänä  2 makuuhuonetta Varna , m-t Gorna Traka , 94 neliömetriä | 73264432 - kuva [4]
Myytävänä  2 makuuhuonetta Varna , m-t Gorna Traka , 94 neliömetriä | 73264432 - kuva [5]Katso seuraava 10 kuvia
Hinta

Kiinteistön hinta: 169 000 €

330 535,27 лв.

Hinta päällä neliömetriä: 1797,872 €

3 516,33 лв. päällä neliömetriä

Tilaa minulle hintamuutosilmoitukset
Sijainti

Varna, m-t Gorna Traka

Tilastot
  • 16näkymät
  • 0säästää
Mainos julkaistiin 2 lokakuu 2025
Ota yhteyttä myyjään
089XXX... (näytä)

ERA VIVA
Varna kv. Levski, ul. 'Dimitar Ikonomov' 17
Myytävänä 2 makuuhuonetta в Varna, m-t Gorna Traka, 94 neliömetriä
169 000 €
94 neliömetriä3 Tiili