БЕЗ КОМИСИОНА!
Тристаен апартамент в модерна жилищна сграда на отлична локация в ж.к. Банишора . Сградата се състои от сутерен и седем надземни етажа, включващи общо шест самостоятелни обекта.
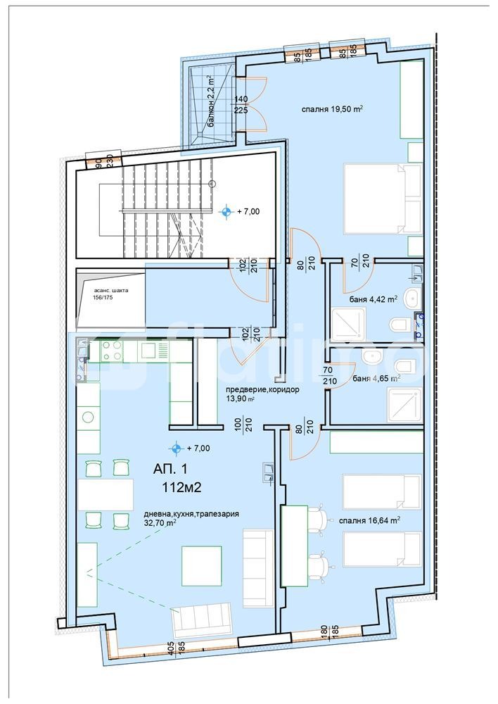
Апартаментът е разположен на пети етаж и предлага прекрасно южно изложение.
Обща площ: 135.29 кв.м (застроена площ 112 кв.м + общи части 23,29 кв.м)
Разпределение: Две спални, просторна дневна с кухненски тракт (около 33 кв.м), два санитарни възела
Допълнителни помещения: Прилежащо мазе (6.78 кв.м)
Паркиране: Възможност за закупуване на паркомясто на цени започващи от 19 000.
Строителството е започнало през октомври 2024 г. и ще бъде завършено до края на 2026 г. Сградата ще разполага с луксозни общи части и представително фоайе. Фасадата ще комбинира алуминиев композит, структурна мазилка, дървесен декор и естествен камък.
Дограма: Висок клас алуминиева дограма на белгийската фирма Reynaers
Отопление и климатизация: Мултисплит система климатици
Допълнителни удобства: Зарядна станция за електромобили, зони за паркиране на велосипеди
Апартаменти: Предлагат се още 2 тристайни апартамента на различни етажи на цени от 287,733.60 с ДДС.
При интерес, моля реферирайте към номер на обява: 29128
Se connecter
+ Annonce gratuite

![À vendre 2 chambres Sofia , Banichora , 135 m² | 18272700 - image [2] — Imoti.info À vendre 2 chambres Sofia , Banichora , 135 m² | 18272700 - image [2]](http://imotstatic4.focus.bg/imot/photosimotbg/1/674/big/1c175983741411674_4X.jpg)
![À vendre 2 chambres Sofia , Banichora , 135 m² | 18272700 - image [3] — Imoti.info À vendre 2 chambres Sofia , Banichora , 135 m² | 18272700 - image [3]](http://imotstatic4.focus.bg/imot/photosimotbg/1/674/big/1c175983741411674_YO.jpg)
![À vendre 2 chambres Sofia , Banichora , 135 m² | 18272700 - image [4] — Imoti.info À vendre 2 chambres Sofia , Banichora , 135 m² | 18272700 - image [4]](http://imotstatic4.focus.bg/imot/photosimotbg/1/674/big/1c175983741411674_mi.jpg)
![À vendre 2 chambres Sofia , Banichora , 135 m² | 18272700 - image [5] — Imoti.info À vendre 2 chambres Sofia , Banichora , 135 m² | 18272700 - image [5]](http://imotstatic4.focus.bg/imot/photosimotbg/1/674/big/1c175983741411674_d.jpg)
![À vendre 2 chambres Sofia , Banichora , 135 m² | 18272700 - image [6] — Imoti.info À vendre 2 chambres Sofia , Banichora , 135 m² | 18272700 - image [6]](http://imotstatic4.focus.bg/imot/photosimotbg/1/674/big/1c175983741411674_LI.jpg)
![À vendre 2 chambres Sofia , Banichora , 135 m² | 18272700 - image [7] — Imoti.info À vendre 2 chambres Sofia , Banichora , 135 m² | 18272700 - image [7]](http://imotstatic4.focus.bg/imot/photosimotbg/1/674/big/1c175983741411674_jJ.jpg)
![À vendre 2 chambres Sofia , Banichora , 135 m² | 18272700 - image [8] — Imoti.info À vendre 2 chambres Sofia , Banichora , 135 m² | 18272700 - image [8]](http://imotstatic4.focus.bg/imot/photosimotbg/1/674/big/1c175983741411674_cE.jpg)
![À vendre 2 chambres Sofia , Banichora , 135 m² | 18272700 - image [9] — Imoti.info À vendre 2 chambres Sofia , Banichora , 135 m² | 18272700 - image [9]](http://imotstatic4.focus.bg/imot/photosimotbg/1/674/big/1c175983741411674_oe.jpg)










