À vendre  2 chambres Varna , Trochevo , 106 m² | 55169074
6 des photos

À vendre 2 chambres в Varna, Trochevo, 106 m²

185 000
361 828,55 лв.
La TVA est incluse
Surface: 106 m²Étage 2ème Type de construction Brique
Chauffage central: NONGaz: -
Description de la propriété :
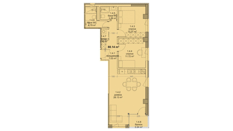
ЕРА Вива продава тристаен апартамент в бутикова сграда в кв. Трошево, гр. Варна. Имотът е със застроена площ от 88.14 кв.м. /106 кв.м. с общите части/ и е разположен на втори етаж. Жилището включва просторна дневна /28 кв.м./, две спални /11.7 кв.м. и 12.4 кв.м./, две бани с тоалетни /4.8 кв.м. и 3.3 кв.м./ и балкон /3.34 кв.м./. Апартаментът е с южно и западно изложение, което гарантира светлина и уют през целия ден. Разпределението е функционално, с правилни форми, осигуряващи лесно и ефективно интериорно проектиране. Предлагат се гъвкави схеми на плащане, а срокът за завършване на строителството е до 30 месеца. Има възможност за избор между двустайни и тристайни апартаменти, както и за обединяване на два съседни имота в по-просторно жилище.

Бутикова, шестетажна сграда, част от съвременен жилищен комплекс с модерна архитектура и функционално разпределение. Всяко жилище е проектирано с внимание към детайла, съобразено със съвременните изисквания за комфорт, светлина и удобство. За удобството на живущите са предвидени подземни и надземни паркоместа, велопаркоместа и контролиран достъп, а строителството ще бъде изпълнено с висококачествени материали.

Кварталът предлага отлична инфраструктура, спокойна жилищна среда и удобен достъп до всички точки на града. В близост се намират търговски центрове, магазини, заведения, училища, детски градини и спирки на градския транспорт. Районът съчетава динамиката на градския живот с уюта на жилищна зона, което го прави подходящ както за живеене, така и за инвестиция с потенциал за висока доходност.

Не изпускайте възможността да станете собственик на този прекрасен имот свържете се с нас за повече информация и оглед.

---
Всеки клиент на ЕРА получава БЕЗПЛАТНО кредитно консултиране от доверения лицензиран кредитен посредник CreditERA, който работи с най-добрите банки на пазара.

Оферта 1009659
Caractéristiques:
  • Avec un garage
  • Avec un parking
À vendre  2 chambres Varna , Trochevo , 106 m² | 55169074 - image [2]
À vendre  2 chambres Varna , Trochevo , 106 m² | 55169074 - image [3]
À vendre  2 chambres Varna , Trochevo , 106 m² | 55169074 - image [4]
À vendre  2 chambres Varna , Trochevo , 106 m² | 55169074 - image [5]Voir ensuite 2 des photos
Prix

Prix de l'immobilier: 185 000 €

361 828,55 лв.

Prix sur m²: 1745,283 €

3 413,48 лв. sur m²

Abonnez-moi pour les notifications de changement de prix
Emplacement

Varna, Trochevo

Statistiques
  • 53vues
  • 0enregistre
L'annonce a été publiée le 15 octobre 2025
Contacter le vendeur
089XXX... (montrer)

ERA VIVA
Varna kv. Levski, oul. 'Dimitar Ikonomov' 17
À vendre 2 chambres в Varna, Trochevo, 106 m²
185 000 €
106 m²2ème Brique
call20899655555