Eladó  Ház régió Veliko Tarnovo , Gorna Lipnica , 80 négyzetméter | 62392591
17 képeket

Eladó Ház в régió Veliko Tarnovo, Gorna Lipnica, 80 négyzetméter

20 000
39 116,6 лв.
ÁFA nem kerül felszámításra
Terület: 80 négyzetméter(900 négyzetméter)Emelet - Építési típus Vágógerendák
Központi fűtés: -Gáz: -
Az ingatlan leírása:
Предлагаме за продажба двуетажна къща с площ от 80 кв. м., разположена в живописното село Горна Липница, община Павликени, само на 40 км от Велико Търново.
Имотът е с голям потенциал, подходящ за реновиране и превръщане в уютен семеен дом или ваканционна къща. Къщата се продава необзаведена и позволява пълна свобода при оформлението и дизайна на интериора.
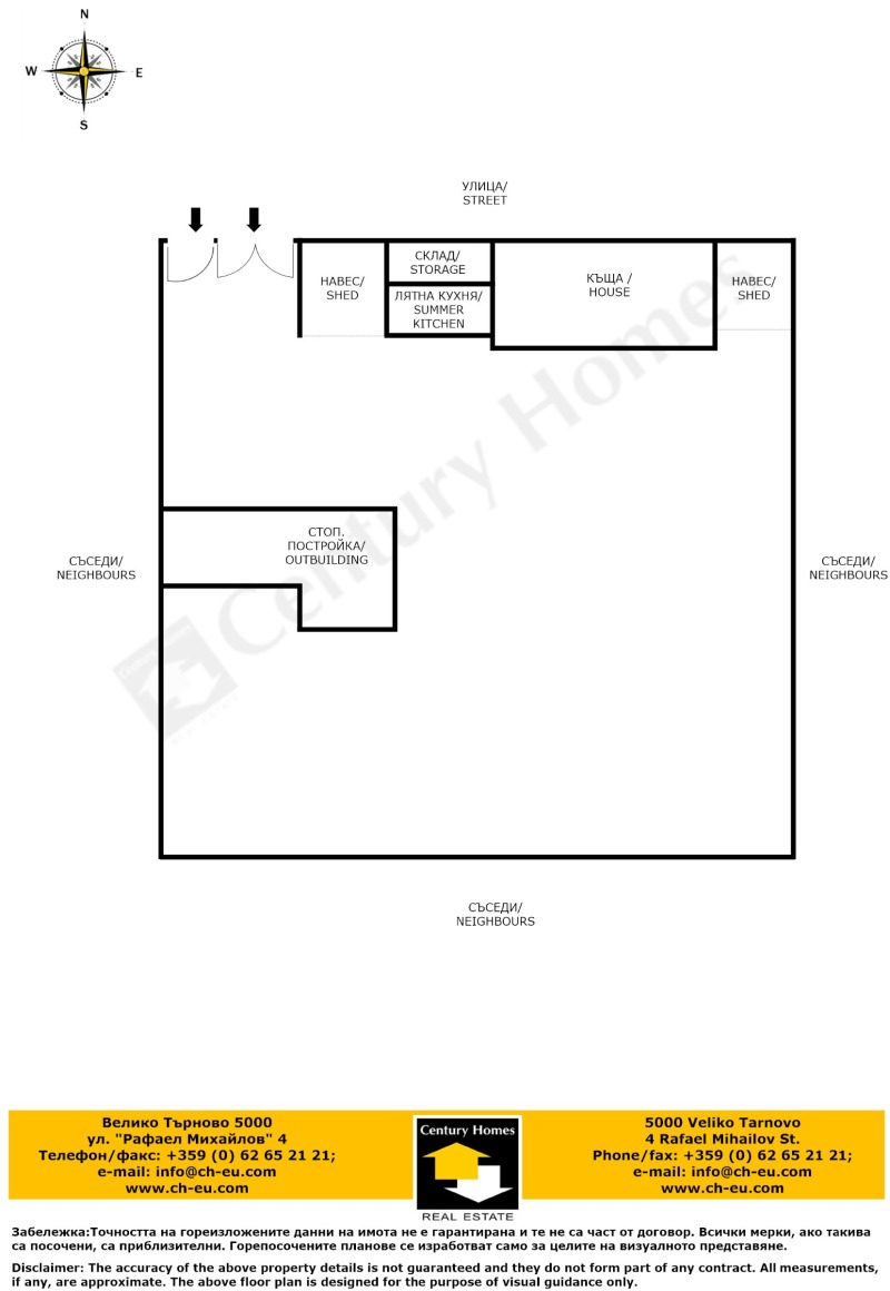
Първият етаж е леко вкопан и включва входно антре, което преминава в трапезария, отделна кухня и дневна. Външно стълбище отвежда до втория етаж, където се намира южна тераса с приятна гледка към целия двор. От терасата се влиза в коридор, свързващ три спални помещения, едно от които е с автентично огнище запазен детайл от стария битов стил.
В пристройка до къщата е обособена просторна лятна кухня с прилежащ килер. Допълнително удобство са навесът от едната страна на сградата и голямата каменна плевня от другата, която предлага възможности за преустройство или използване като складово пространство. В двора се намира и стопанска постройка, подходяща за различни нужди.
Парцелът е с площ от 900 кв. м., равен, с правилна форма, ограден с каменна и телена ограда, което осигурява уединение и сигурност. Имотът е с лесен достъп по поддържан селски път, а самото село е добре устроено, с редовен автобусен транспорт до гр. Павликени и всички основни удобства за постоянно живеене.
Този имот е чудесна възможност за хора, търсещи спокойствие, природа и пространство, с възможност да създадат дом по свой вкус.

За да разгледате виртуален тур, моля копирайте и поставете линка във Вашия браузер
ВИРТУАЛЕН ТУР:https://app.cloudpano.com/tours/gtAaoAAFS
РЕФ. :140325
Jellemzők:
  • Parkolóval
Eladó  Ház régió Veliko Tarnovo , Gorna Lipnica , 80 négyzetméter | 62392591 - kép [2]
Eladó  Ház régió Veliko Tarnovo , Gorna Lipnica , 80 négyzetméter | 62392591 - kép [3]
Eladó  Ház régió Veliko Tarnovo , Gorna Lipnica , 80 négyzetméter | 62392591 - kép [4]
Eladó  Ház régió Veliko Tarnovo , Gorna Lipnica , 80 négyzetméter | 62392591 - kép [5]Lásd a következőt 13 képeket
Ár

Ingatlan ára: 20 000 €

39 116,6 лв.

Ár tovább négyzetméter: 250 €

488,96 лв. tovább négyzetméter

Iratkozz fel az árváltozásról szóló értesítésekre
Elhelyezkedés

régió Veliko Tarnovo, Gorna Lipnica

Statisztika
  • 41nézetek
  • 0menti
A hirdetés megjelent 26 szeptember 2025
Kapcsolatfelvétel az eladóval
089XXX... (előadás)
Ügynök
//photos.imoti.info/assets/images/brokerspicts/13928134247103799.webp
Rumen Vasilev
0896840720 , 062652121

SENTCSARI HOUMS
Veliko Tarnovo ul.Rafael Mihajlov 4
Eladó Ház в régió Veliko Tarnovo, Gorna Lipnica, 80 négyzetméter
20 000 €
80 négyzetméter- Vágógerendák
call20896840720