Eladó  Cselekmény régió Sofia , Slivnica , 671 négyzetméter | 76970056
8 képeket

Eladó Cselekmény в régió Sofia, Slivnica, 671 négyzetméter

55 000
107 570,65 лв.
ÁFA nem kerül felszámításra
Terület: 671 négyzetméterEmelet Építési típus
Szabályozás: IGENElektromosság: IGENVíz: IGEN
Az ingatlan leírása:
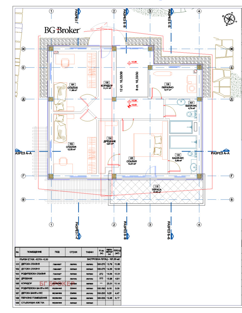
Продаваме урегулиран поземлен имот (УПИ) с площ 671 кв.м., разположен в гр. Сливница със започнато строителство на еднофамилна двуетажна къща. Излети са основи и е изградена подпорна стена. Новият собственик може да избере да довърши започнатия проект или да реализира напълно нова концепция за жилище.

Къщата е с разгъната застроена площ (РЗП) 233 кв.м. и има следното разпределение:
- Етаж 1: дневна с трапезария и кухненски бокс, тераса/веранда, спалня/кабинет, баня с тоалетна, килер и котелно
- Етаж 2: три спални, две бани с тоалетни /една към спалня/, склад/перално и две тераси.

Проекта на къщата е много красив, с разчупена архитектура. Парцелът е на асфалтирана улица, граничещ с къщи в които живеят целогодишно. Подходящ за постоянно живеене или инвестиция.

Локация: гр. Сливница удобно разположение с бърз достъп до София.

Оферта 11511

Възможна покупка с кредит. Съдействие за жилищно кредитиране.

За повече информация:
тел. 0890 311 119
e-mail: [email protected]
www.bgbroker.bg

РАБОТИМ САМО С КОРЕКТНИ КОЛЕГИ И АГЕНЦИИ!
Огледи по всяко време с предварителна уговорка. Възможни са и през почивни дни!
Jellemzők:
  • Vízum
  • Lakásépítéshez
Eladó  Cselekmény régió Sofia , Slivnica , 671 négyzetméter | 76970056 - kép [2]
Eladó  Cselekmény régió Sofia , Slivnica , 671 négyzetméter | 76970056 - kép [3]
Eladó  Cselekmény régió Sofia , Slivnica , 671 négyzetméter | 76970056 - kép [4]
Eladó  Cselekmény régió Sofia , Slivnica , 671 négyzetméter | 76970056 - kép [5]Lásd a következőt 4 képeket
Ár

Ingatlan ára: 55 000 €

107 570,65 лв.

Ár tovább négyzetméter: 81,967 €

160,31 лв. tovább négyzetméter

Iratkozz fel az árváltozásról szóló értesítésekre
Elhelyezkedés

régió Sofia, Slivnica

Statisztika
  • 1Kilátás
  • 0menti
A hirdetés megjelent 8 október 2025
Kapcsolatfelvétel az eladóval
0890 XXX... (előadás)
Ügynök
//photos.imoti.info//assets/user.svg
Vencislav Tocev
0890311119

BG BROKER
Sofia ul. Bogatica 32
Eladó Cselekmény в régió Sofia, Slivnica, 671 négyzetméter
55 000 €
671 négyzetméter
call20890 311 119