Eladó  Hivatal Ruse , Zdravec , 103 négyzetméter | 86517750
8 képeket

Eladó Hivatal в Ruse, Zdravec, 103 négyzetméter

VIP
133 302
260 716,05 лв.
Az áfát tartalmazza
Terület: 103 négyzetméterEmelet Földszint Építési típus Tégla, 2026
Központi fűtés: NEMGáz: NEM
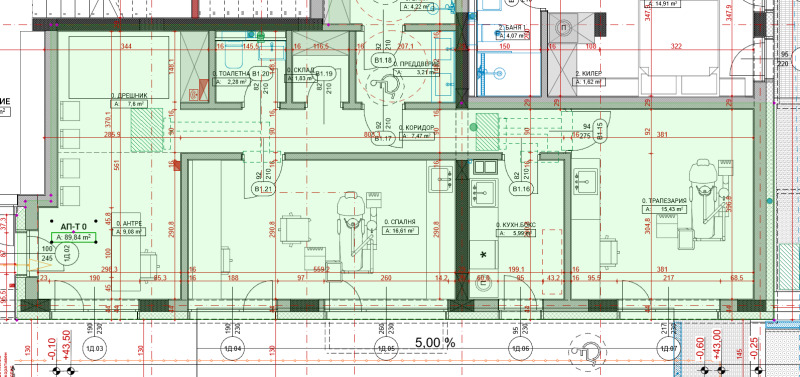
Az ingatlan leírása:
__Помещение подходящо за ЗЪБЛОКЕАРСКИ ИЛИ ЛЕКАРСКИ КАБИНЕТ.
__Състои се от предверие - приемна и чакалня, 2 кабинета, кухненски бокс, 2 тоалетни /едната инвалидно достъпна/, умивално и склад.
_Изложение запад, на партерно ниво.
Партерното ниво е достъпно посреддством инв.рампа. Помещението е изключително подходящо за лекарски или зъболекарски практики.

__Имотът се намира в Сграда 2 на PS Park Residence.
Старт на строителството 01.2025г.
__За повече информация за проекта виж www.psresidence.com
__Или посети офис продажби на ул.Зайчар 9, гр.Русе
Jellemzők:
  • Emel
  • Garázzsal
  • Parkolóval
  • Biztonsági kamerák
  • Hozzáférés-szabályozás
Eladó  Hivatal Ruse , Zdravec , 103 négyzetméter | 86517750 - kép [2]
Eladó  Hivatal Ruse , Zdravec , 103 négyzetméter | 86517750 - kép [3]
Eladó  Hivatal Ruse , Zdravec , 103 négyzetméter | 86517750 - kép [4]
Eladó  Hivatal Ruse , Zdravec , 103 négyzetméter | 86517750 - kép [5]Lásd a következőt 4 képeket
Ár

Ingatlan ára: 133 302 €

260 716,05 лв.

Ár tovább négyzetméter: 1294,194 €

2 531,22 лв. tovább négyzetméter

Iratkozz fel az árváltozásról szóló értesítésekre
Elhelyezkedés

Ruse, Zdravec

Statisztika
  • 38nézetek
  • 0menti
A hirdetés megjelent 17 október 2025
Kapcsolatfelvétel az eladóval
088XXX... (előadás)
KOLELIBA OOD
Ruse Zajcsar 9
Eladó Hivatal в Ruse, Zdravec, 103 négyzetméter
133 302 €
103 négyzetméterFöldszint Tégla, 2026
call20886633842