In vendita  Casa regione Veliko Tarnovo , Paskalevets , 110 mq | 15913087
17 immagini

In vendita Casa в regione Veliko Tarnovo, Paskalevets, 110 mq

27 000
52 807,41 лв.
Non viene addebitata l'IVA
Area: 110 mq(2200 mq)Piano - Tipo di costruzione Mattone
Riscaldamento centralizzato: -Gas: -
Descrizione della proprietà:
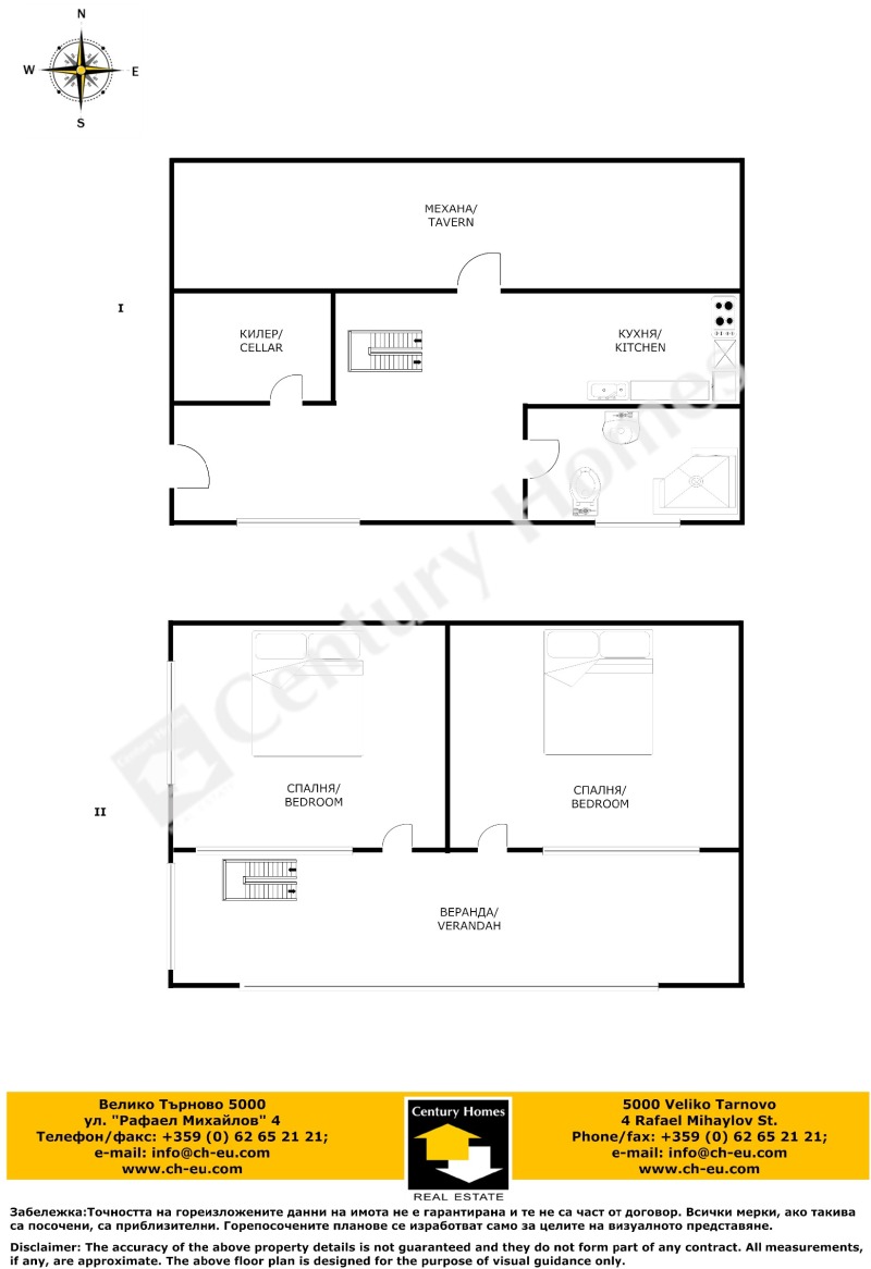
Реновирана двуетажна къща, разположена в добре уредено село близо до Павликени, на около 25 минути от град Велико Търново. Имотът е с жилищна площ от 110 кв.м. и е на два етажа. Първият се разпределя между дневна, кухня, баня с тоалетна, килер, а вторият между две спални и една тераса. Изложението е юг-запад. Подовете са с ламинат и теракот, вратите и дограмите са дървени, стените са латекс. Къщата е с вътрешна изолация. Имотът включва равен, добре поддържан голям двор от 2 200 кв.м., ограден с каменна ограда, разполага с кладенец, отделна лятна постройка. Имотът е снабден с ток, вода, интернет и е достъпен целогодишно по асфалтов път.

За да разгледате виртуален тур, моля копирайте и поставете линка във Вашия браузер
ВИРТУАЛЕН ТУР:https://app.cloudpano.com/tours/K92rJJPSg9
РЕФ. :140119
Caratteristiche:
  • Arredato
In vendita  Casa regione Veliko Tarnovo , Paskalevets , 110 mq | 15913087 - Immagine [2]
In vendita  Casa regione Veliko Tarnovo , Paskalevets , 110 mq | 15913087 - Immagine [3]
In vendita  Casa regione Veliko Tarnovo , Paskalevets , 110 mq | 15913087 - Immagine [4]
In vendita  Casa regione Veliko Tarnovo , Paskalevets , 110 mq | 15913087 - Immagine [5]Vedi dopo 13 immagini
Prezzo

Prezzo della proprietà: 27 000 €

52 807,41 лв.

Prezzo SU mq: 245,455 €

480,07 лв. SU mq

Iscrivimi per ricevere notifiche di variazione dei prezzi
Posizione

regione Veliko Tarnovo, Paskalevets

Statistiche
  • 37visualizzazioni
  • 0salva
L'annuncio è stato pubblicato il 15 ottobre 2025
Contatta il venditore
089XXX... (spettacolo)
Agente
//photos.imoti.info/assets/images/brokerspicts/14448981391889197.webp
Dilian Sukov
+359/0/62652121; 0898568560

SENTCHARI HOUMS
Veliko Tarnovo ul.Rafael Mihajlov 4
In vendita Casa в regione Veliko Tarnovo, Paskalevets, 110 mq
27 000 €
110 mq- Mattone
call20898568560