In vendita  1 camera da letto Sofia , Krasno selo , 78 mq | 58929173
2 immagini

In vendita 1 camera da letto в Sofia, Krasno selo, 78 mq

VIP
203 320
397 659,36 лв.
L'IVA è inclusa
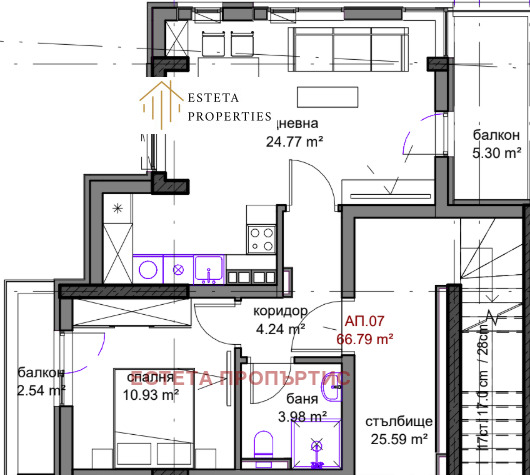
Area: 78 mqPiano 3° Tipo di costruzione Mattone, 2027
Riscaldamento centralizzato: -Gas: -
Descrizione della proprietà:
Двустаен апартамент в новострояща сграда в кв.Красно село

*Разпределение: Дневна с кухненски бокс , спалня ,баня, коридор и тераса.

Предимства:Изключително комуникативен район, в близост до училища, детски градини, пазар Красно село.Само на минута от метростанция Красно село

*Модерен дизайн
*Високо качество на строителство
*Гъвкави схеми на плащане адаптирани към вас

Срок на завършване 2027г

В сградата са налични и други двустайни,тристайни апартаменти, и подземни паркоместа

За повече информация и огледи тел:0896788621
In vendita  1 camera da letto Sofia , Krasno selo , 78 mq | 58929173 - Immagine [2]
Prezzo

Prezzo della proprietà: 203 320 €

397 659,36 лв.

Prezzo SU mq: 2606,667 €

5 098,2 лв. SU mq

Iscrivimi per ricevere notifiche di variazione dei prezzi
Posizione

Sofia, Krasno selo

Statistiche
  • 24visualizzazioni
  • 0salva
L'annuncio è stato pubblicato il 21 ottobre 2025
Contatta il venditore
089XXX... (spettacolo)

ESTETA PROPARTIS
Sofia Kriva reka , ul.Liulin Planina 36
In vendita 1 camera da letto в Sofia, Krasno selo, 78 mq
203 320 €
78 mqMattone, 2027
call20896788621