Едностаен апартамент за продажба в Люлин 9, в новострояща се сграда!
НАЙ-ВАЖНОТО ЗА ИМОТА:
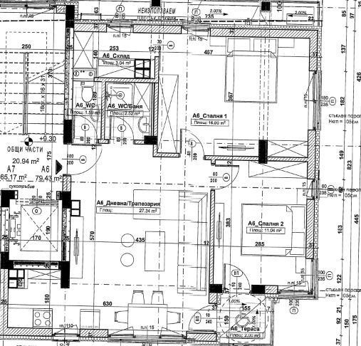
Тип: 3-стаен
Изложение: Север, Изток, Юг
Чиста площ: 79.43 кв.м.
Локация и транспорт: Сградата се намира в близост до основни пътни артерии - бул. Сливница и метростанция 'Сливница', както и бул. Царица Йоанна и метростанция 'Западен парк':
- 37 СУ 'Райна Княгиня' (100м.)
- 139 ОДЗ 'Панорама' (150м.)
- 12-то ДКЦ (300м.)
- Парк 'Западен парк' (750м.)
Близки спирки на градския транспорт са на автобуси 82, 108, 309, тролейбус номер 6, както и метростанции Сливница и Западен парк.
ДОПЪЛНИТЕЛНО ОПИСАНИЕ:
Открита строителна площадка, срокът за завършване е лятото на 2027г. Малка сграда, с 10 апартамента, както и партерни и подземни гаражи. Сградата ще бъде изпълнена с материали от по-висок клас, алуминиева/PVC дограма с троен стъклопакет, хидравличен асансьор. Апартаментите ще бъдат предавани на шпакловка/замазка, с поставена входна блиндирана врата, ключове и контакти, а терасите с положен гранитогрес и алуминиеви парапети.
Възможност за закупуване на гаражи - надземни 30,000E, подземни 45,000E. Отоплението е на ТОК.
ОГЛЕДИ И ПОВЕЧЕ ИНФОРМАЦИЯ:
За огледи и повече информация: Станимир Димитров, тел: 0885 589 147
Ако съм зает и не Ви отговоря, моля позвънете пак или изпратете запитване по e-mail: [email protected]
Log in
+ Gratis advertentie

![Te koop 2 slaapkamers Sofia , Ljulin 9 , 98 m² | 23205004 - afbeelding [2] — Imoti.info Te koop 2 slaapkamers Sofia , Ljulin 9 , 98 m² | 23205004 - afbeelding [2]](http://imotstatic3.focus.bg/imot/photosimotbg/1/303/big/1c175991790368303_HE.jpg)









