Te koop  2 slaapkamers Sofia , Vitosja , 129 m² | 33006583
6 afbeeldingen

Te koop 2 slaapkamers в Sofia, Vitosja, 129 m²

VIP
355 074
694 464,38 лв.
BTW is inbegrepen
Oppervlakte: 129 m²Verdieping 2e Bouwtype Steen, 2027
Centrale verwarming: NEEGas: JA
Eigenschap Beschrijving:
'RockIT Properties' Ви представа тристаен апартамент на първи над партер (втори жилищен) в новострояща се бутикова сграда в кв. Витоша. Сградата е четири надземни етажа и разполага с 20 апартамента. Използват се най-висок клас материали. Намира се на много удобно място, до бул. Симеоновско шосе и ул. Филип Кутев, има спирки на градски транспорт, детски площадки, както и изградена пътна инфраструктура.

Сградата е с впечатляваща фасада, клинкер тухлички и стъклени балкони. Разполага със заграден озеленен двор, подземен паркинг с гаражи и паркоместа.

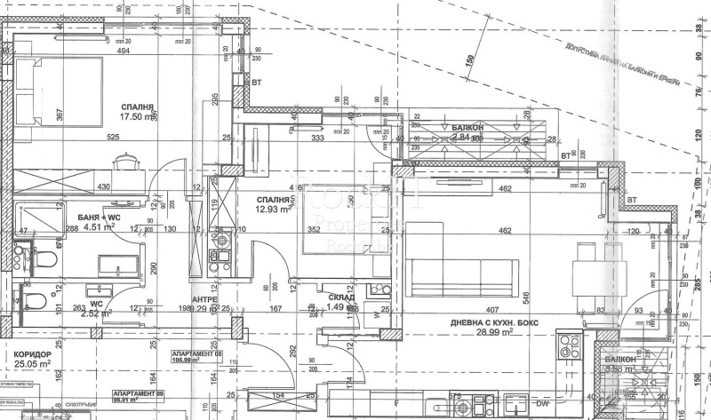
Апартаментът е 128.65кв.м. с общи части, 106.99кв.м. застроена площ, изложението е Север/ Изток, продава се на шпакловка и замазка, с изградени инсталации и висок клас дограма.

Разпределение на апартамент 8:

-Антре

-Тоалетна

-Главна спалня (17.50кв.м.) с баня с тоалетна (4.50кв.м.)

-Втора спалня (13кв.м.) с балкон

-Дневна с кухненски бокс (29кв.м.)

-Складово помещение (1.50кв.м.)

Има опция за покупка на подземно паркомясто на цена от 26 400 с ДДС и подземен гараж на цена от 28 800

В момента е на етап полагане на основи. Очакван акт 16: Лято на 2027 година.

Разполагаме с още двустайни, тристайни и четиристайни апартаменти в сградата.

For description in English, more photos, layouts and information, you can find on our website: www.Rockit.bg

Ако търсите или предлагате подобен имот, свържете се с нас!

Можем да съдействаме на всеки етап от финансирането (работим с всички банки, а услугата е безплатна), юридическо консултиране, покупко-продажба, интериорен дизайн, строително-ремонтни дейности, почистване и поддържане на имота, управление през краткосрочен или дългосрочен наем и много други.
Functies:
  • Tillen
  • Met garage
Te koop  2 slaapkamers Sofia , Vitosja , 129 m² | 33006583 - afbeelding [2]
Te koop  2 slaapkamers Sofia , Vitosja , 129 m² | 33006583 - afbeelding [3]
Te koop  2 slaapkamers Sofia , Vitosja , 129 m² | 33006583 - afbeelding [4]
Te koop  2 slaapkamers Sofia , Vitosja , 129 m² | 33006583 - afbeelding [5]Zie volgende 2 afbeeldingen
Prijs

Vastgoedprijs: 355 074 €

694 464,38 лв.

Prijs op m²: 2752,512 €

5 383,45 лв. op m²

Abonneer mij op meldingen over prijswijzigingen
Plaats

Sofia, Vitosja

Statistieken
  • 2keer bekeken
  • 0bespaart
De advertentie is gepubliceerd op 2 oktober 2025
Neem contact op met de verkoper
089XXX... (show)
Tussenpersoon
//photos.imoti.info//assets/user.svg
Valentin Dinekov
+359899666699

ROKIT PROPARTIS
Sofia zj.k. Iztok, ul. Akademik Metodi Popov 24a
Te koop 2 slaapkamers в Sofia, Vitosja, 129 m²
355 074 €
129 m²2e Steen, 2027
call20899666699