Til salgs  3+ soverom Targovishte , Tsentar , 108 kvm | 70440087
11 bilder

Til salgs 3+ soverom в Targovishte, Tsentar, 108 kvm

100 000
195 583 лв.
MVA er inkludert
Areal: 108 kvmEtasje 5 Byggetype Murstein, 1970
Sentralvarme: NEIGass: NEI
Eiendomsbeskrivelse:
Агенция за недвижими имоти Great Home представя на Вашето внимание многостаен тухлен апартамент в централната част на града, в непосредствена близост до сладкарница Златна рибка .
Апартаментът е за ремонт и се състои от просторен хол с излаз на тераса , 3 стаи , кухня с излаз на тераса , баня, санитарен възел , мокро помещение, просторно входно антре и голямо избено помещение.
🏠 Характеристики:
✅ Застроена площ: 108,27 кв.м
✅️ Етаж 5/5
✅ Строителство: тухла
✅ В близост до: центъра, магазини, спирки, детски градини и други удобства
💰 Цена: 100 000 евро
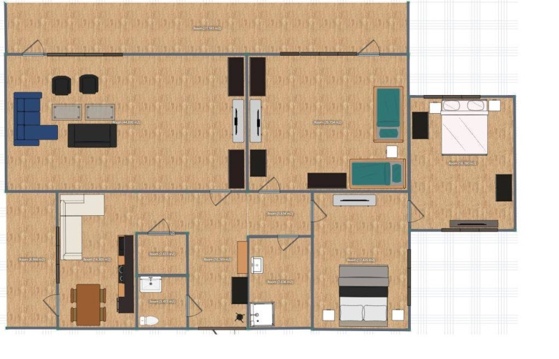
За повече яснота прилагаме схема на разпределение, а за повече информация моля позвънете на 0899 78 78 43 / 089 421 3399 или заповядайте в офиса на агенция за недвижими имоти GreatHome за вашия страхотен дом.
Офис : Георги Бенковски 2
Egenskaper:
  • Adgangskontroll
  • For renovering
Til salgs  3+ soverom Targovishte , Tsentar , 108 kvm | 70440087 - bilde [2]
Til salgs  3+ soverom Targovishte , Tsentar , 108 kvm | 70440087 - bilde [3]
Til salgs  3+ soverom Targovishte , Tsentar , 108 kvm | 70440087 - bilde [4]
Til salgs  3+ soverom Targovishte , Tsentar , 108 kvm | 70440087 - bilde [5]Se neste 7 bilder
Pris

Eiendomspris: 100 000 €

195 583 лв.

Pris på kvm: 925,926 €

1 810,95 лв. på kvm

Abonner meg for varsler om prisendring
plassering

Targovishte, Tsentar

Statistikk
  • 48visninger
  • 0sparer
Annonsen ble publisert den 13 oktober 2025
Kontakt selger
089XXX... (forestilling)

GREAJT HOUM EOOD
Targovishte Ul. Georgi Benkovski 2 /Targovsko Promisjlena Palata /
Til salgs 3+ soverom в Targovishte, Tsentar, 108 kvm
100 000 €
108 kvm5 Murstein, 1970
call20899787843