Na sprzedaż  Działka Sofia , Nowi Iskar , 947 mkw | 33211180
8 kino

Na sprzedaż Działka в Sofia, Nowi Iskar, 947 mkw

182 000 Zobacz na mapie
355 961,06 лв.
VAT nie jest wliczony w cenę
Powierzchnia: 947 mkwPiętro Typ budowy
Rozporządzenie: -Elektryczność: TAKWoda: TAK
Opis nieruchomości:
Агенция SUPRIMMO: www.suprimmo.bg
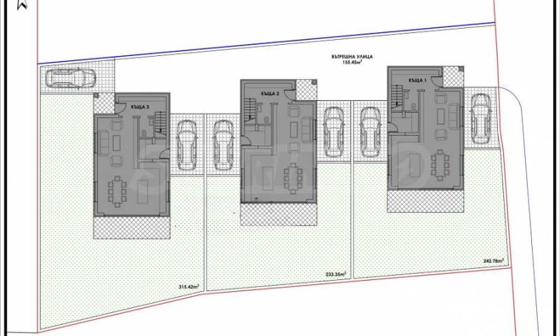
Представяме за продажба урегулиран поземлен имот с инвестиционен проект за три еднофамилни къщи, ситуиран в гр. Нови Искър, местност Корило.

Локация

Имотът се намират на удобна локация, в непосредствена близост до училище, спирки на градски транспорт и удобни пътни връзки, които осигуряват лесен достъп до централните части на София. Районът предлага спокойна и приятна атмосфера, близо до природата, но същевременно с всички необходими удобства за градски начин на живот.

Характеристики:
местоположение: в район с развита инфраструктура и бърз достъп до столицата;
площ на парцела: 947 кв.м. с проек за три самостоятелни еднофамилни къщи, всяка с обособен двор;
РЗП: 541,68 кв.м, създаваща просторни и функционални жилищни пространства;
брой паркоместа: 6, осигуряващи удобство и безопасност за бъдещите собственици;
плътност на застрояване: 50%, гарантираща балансирана среда между застроена и озеленена площ;
коефициент на интензивност (Кинт): 1,5 % позволяващ максимално ефективно използване на терена;
кота корниз: до 10 м. По проект къщите са с кота корниз 5,6 м.
кота било: 7,9 м, разстояние между къщите - 7 м.
Проектът предлага отлична възможност за изграждане на жилищен комплекс в район с добра инфраструктура, в близост до град София. Разрешителното за строеж ще бъде одобрено в рамките на месец, което осигурява бърз старт на строителните дейности.

Инфраструктура

До парцела има положен асфалтов път изградена връзка с канализация. Съгласувани са условията за присъединяване към ВиК и електроснабдяване, което улеснява бъдещото строителство.

Всеки имот е с РЗП 183 кв.м, проектиран с функционално разпределение на пространствата, осигуряващо максимален комфорт и удобство:
етаж 1: антре, дневна с кухня и трапезария, санитарно помещение, склад;
етаж 2: ...

Цената на имота е 182 000 евро / 355 961.06 лв. без ДДС или 218 400 евро / 427 153.27 лв. с ДДС. Данъчен кредит може да се ползва при определени условия.

За повече информация свържете се с нас и цитирайте референтния номер на имота. Моля, кажете, че сте видeли обявата в този сайт.
Референтен номер: SOF-130283
Тел: 0885 187 149, 02 445 68 69
Отговорен брокер:Антон Лозанов
Na sprzedaż  Działka Sofia , Nowi Iskar , 947 mkw | 33211180 - obraz [2]
Na sprzedaż  Działka Sofia , Nowi Iskar , 947 mkw | 33211180 - obraz [3]
Na sprzedaż  Działka Sofia , Nowi Iskar , 947 mkw | 33211180 - obraz [4]
Na sprzedaż  Działka Sofia , Nowi Iskar , 947 mkw | 33211180 - obraz [5]Zobacz dalej 4 kino
Cena

Cena nieruchomości: 182 000 €

355 961,06 лв.

Cena NA mkw: 192,186 €

375,88 лв. NA mkw

Subskrybuj mnie, aby otrzymywać powiadomienia o zmianach cen
Lokalizacja

Sofia, Nowi Iskar

mapPokaż na mapie
Statystyka
  • 19wyświetlenia
  • 0oszczędza
Ogłoszenie ukazało się na 3 październik 2025
Skontaktuj się ze sprzedawcą
088XXX... (pokazywać)
Agent
//photos.imoti.info//assets/user.svg
Anton Lozanow
0885 187 149

SUPRIMMO - GLAWEN OFIS
Sofia bul. 'Czerni wrach' 51-G, etaż 7(ofis sgrada Realtons Pl
Na sprzedaż Działka в Sofia, Nowi Iskar, 947 mkw
182 000 €
947 mkw
call20885187149