Do wynajęcia  Budynek przemysłowy Sofia , Woenna rampa , 1540 mkw | 43710270
13 des photos

Do wynajęcia Budynek przemysłowy в Sofia, Woenna rampa, 1540 mkw

6930
13 553,9 лв.
VAT nie jest wliczony w cenę
Surface: 1540 mkwÉtage Parter
Chauffage central: -Gaz: -
Description de la propriété :
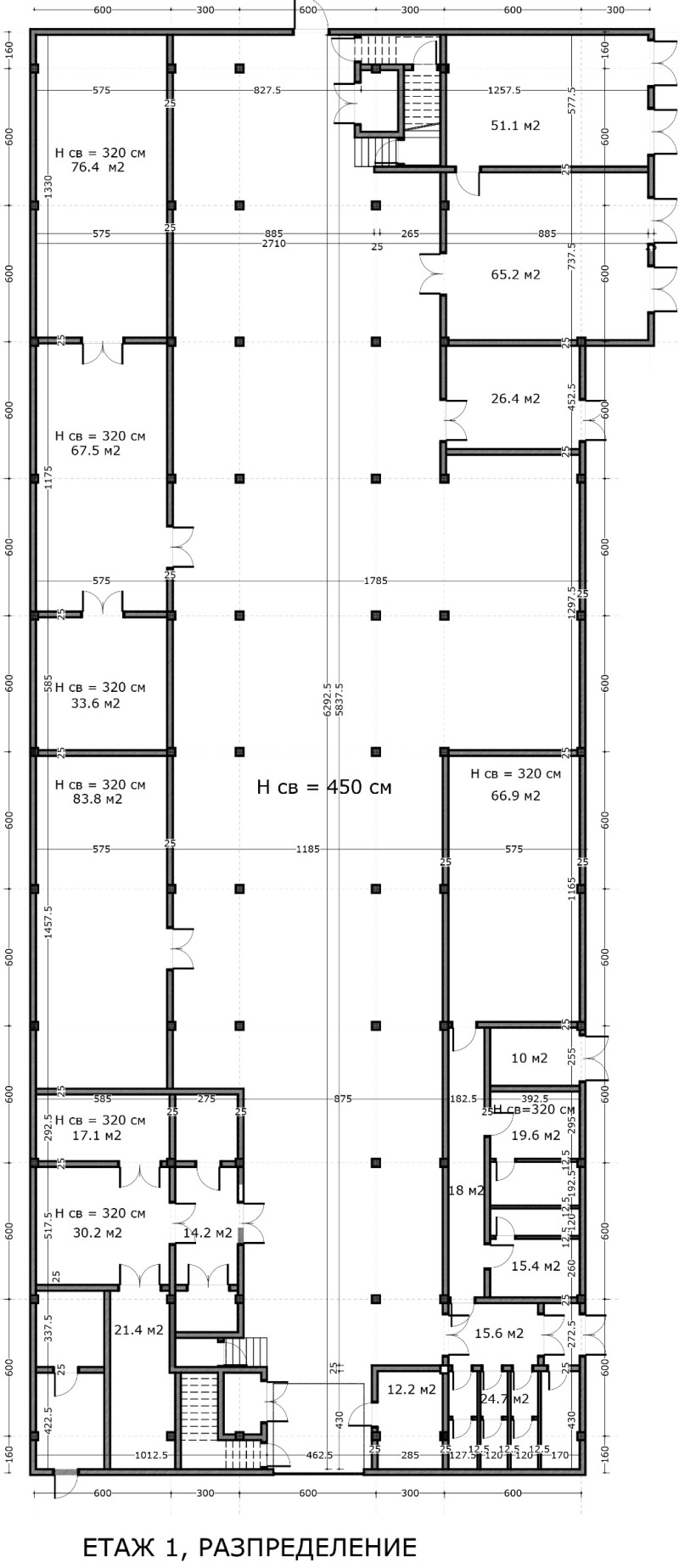
Отдава се под наем ПЪРВИ ЕТАЖ от Производствено-складова сграда с ползване на дворно пространство за паркиране и маневриране. Имотът е разположен в района около бул. Рожен и ул. Илиянско шосе, с комуникативна транспортана локация и удобен градски транспорт.

Сградата е в много добро общо състояние - удобна както за чисто производство, така и за складово-логистична дейност.

Сградата се състои от два етажа:

ПЪРВИ ЕТАЖ - 1540 кв.м. с височина около 4,50 м., разделено на работна зала, гараж s четири врати за товарни автомобили, една портална ролетна врата и два странични пешеходни входа, няколко по-малки работни помещения, отделение за служители /съблекални, санитарни възли, душове, трапезария/, два товарни асансьора за връзка с втория етаж с товароносимост до 1 тон.

Сградата е масивна с тухлени стени. Подовете са шлайфан бетон. Отоплението на първия етаж е чрез локално парно с котел.

Сградата е захранена с трифазен ток. Наличен трафопост с обща мощност 800 kw., от които около 400 kw. за тази сграда. Въздуховоди с цялостна работеща вентилационна система.

ПАРКИНГ с капацитет до около 15-20 автомобила и удобен достъп за товаро-разтоварна дейност.

Може да се наеме и цялата сграда, като ВТОРИЯТ ЕТАЖ е с площ от 760 кв.м., с височина около 3,20 м., състоящ се от много добре осветена работна зала с прозорци, два светли офиса /в двата края на етажа/ до стълбищните клетки и асансьорите. Товароносимостта на втория етаж е до половин тон. Отопление - колонни климатици.

Наемна цена: 4,50 Евро на кв.м. без ДДС.
Caractéristiques:
  • Z garażem
  • Z miejscem parkingowym
  • Winda
  • Bezpieczeństwo
  • Okablowanie
  • połączenie internetowe
  • Kontrola dostępu
Do wynajęcia  Budynek przemysłowy Sofia , Woenna rampa , 1540 mkw | 43710270 - obraz [2]
Do wynajęcia  Budynek przemysłowy Sofia , Woenna rampa , 1540 mkw | 43710270 - obraz [3]
Do wynajęcia  Budynek przemysłowy Sofia , Woenna rampa , 1540 mkw | 43710270 - obraz [4]
Do wynajęcia  Budynek przemysłowy Sofia , Woenna rampa , 1540 mkw | 43710270 - obraz [5]Voir ensuite 9 des photos
Prix

Prix de l'immobilier: 6930 €

13 553,9 лв.

Prix NA mkw: 4,5 €

8,8 лв. NA mkw

Abonnez-moi pour les notifications de changement de prix
Emplacement

Sofia, Woenna rampa

Statistiques
  • 1voir
  • 0enregistre
L'annonce a été publiée le 30 wrzesień 2025
Contacter le vendeur
088XXX... (montrer)
Do wynajęcia Budynek przemysłowy в Sofia, Woenna rampa, 1540 mkw
6930 €
1540 mkwParter
call20886395831