Na sprzedaż  2 sypialnie Warna , WINS-Czerwen ploszczad , 60 mkw | 50574218
14 kino

Na sprzedaż 2 sypialnie в Warna, WINS-Czerwen ploszczad, 60 mkw

VIP
139 900
273 620,62 лв.
Nie jest naliczany podatek VAT
Powierzchnia: 60 mkwPiętro 5 Typ budowy Cegła, 2000
Centralne ogrzewanie: -Gaz: -
Opis nieruchomości:
Само от Хоум Инвестмънт!

НА МЕТРИ ОТ ОБЩИНА ВАРНА И РУСКО КОНСУЛСТВО!

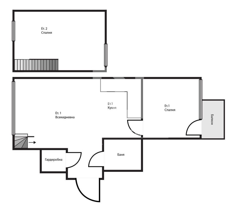
Продава се апартамент на две нива, състоящ се от: всекидневна с кухня, спалня, баня с тоалет, дрешник, тераса и още една спалня на второ ниво.

Жилището е с 55.30 кв.м. чиста площ и 4.48 кв.м. идеални части от общите части на сградата, в тухлена кооперация на 5-ти етаж в сграда без асансьор, както и отделно принадлежащо избено помещение 4.30 кв.м.

Изключително атрактивна локация, в близост до Община Варна, на метри от Червения площад, ВИНС и идеалния център на град Варна.

Имот подходящ за живеене, както и за инвестиция. Перфектен за краткосрочно отдаване, поради добрата му локация и компактна площ.

Огледи с ключ!

За повече информация, моля обадете се на посочения телефонен номер!
Cechy:
  • połączenie internetowe
  • Kontrola dostępu
  • Izolacja cieplna
Na sprzedaż  2 sypialnie Warna , WINS-Czerwen ploszczad , 60 mkw | 50574218 - obraz [2]
Na sprzedaż  2 sypialnie Warna , WINS-Czerwen ploszczad , 60 mkw | 50574218 - obraz [3]
Na sprzedaż  2 sypialnie Warna , WINS-Czerwen ploszczad , 60 mkw | 50574218 - obraz [4]
Na sprzedaż  2 sypialnie Warna , WINS-Czerwen ploszczad , 60 mkw | 50574218 - obraz [5]Zobacz dalej 10 kino
Cena

Cena nieruchomości: 139 900 €

273 620,62 лв.

Cena NA mkw: 2331,667 €

4 560,34 лв. NA mkw

Subskrybuj mnie, aby otrzymywać powiadomienia o zmianach cen
Lokalizacja

Warna, WINS-Czerwen ploszczad

Statystyka
  • 1pogląd
  • 0oszczędza
Ogłoszenie ukazało się na 10 październik 2025
Skontaktuj się ze sprzedawcą
088XXX... (pokazywać)

CHOUM INWESTMANT
Warna ul. Preslaw 2
Na sprzedaż 2 sypialnie в Warna, WINS-Czerwen ploszczad, 60 mkw
139 900 €
60 mkw5 Cegła, 2000
call20885002989