À venda  Casa Sofia , Dragalevci , 420 m² | 24986356
17 fotos

À venda Casa в Sofia, Dragalevci, 420 m²

1 100 000
2 151 413 лв.
O IVA está incluído
Área: 420 m²(610 m²)Andar Térreo Tipo de construção Tijolo, 2020
Aquecimento central: -Gás: SIM
Descrição da Propriedade:
First Estates има удоволствиетo да ви представи еднофамилна къща, разположена в престижния жилищен квартал Драгалевци, в близост до частнo езиково училище Britanica.
Къща с АКТ 16:
Разгъната застроена площ (РЗП): 420 м?, разпределена по етажи:
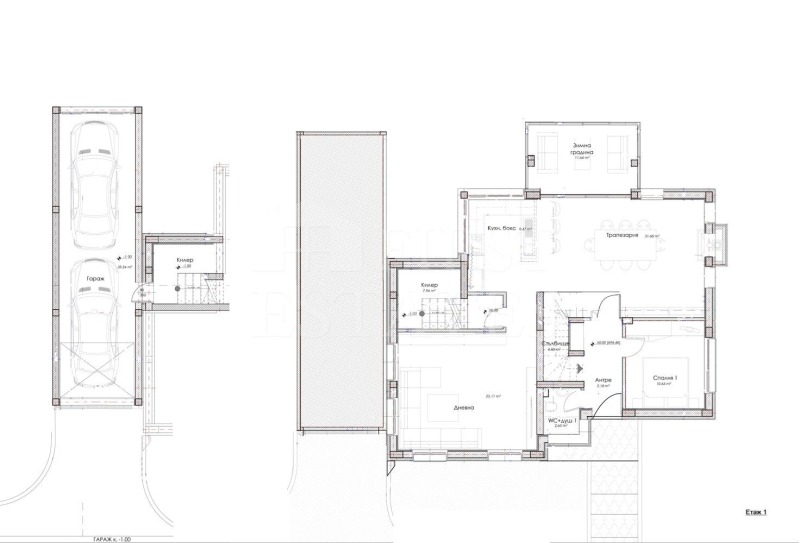
Първи етаж: 135 м?, включващи антре, баня с WC, спалня (гостна/кабинет), дневна, кухня с трапезария, зимна градина, сервизно помещение и гараж с топла връзка (41 м?)
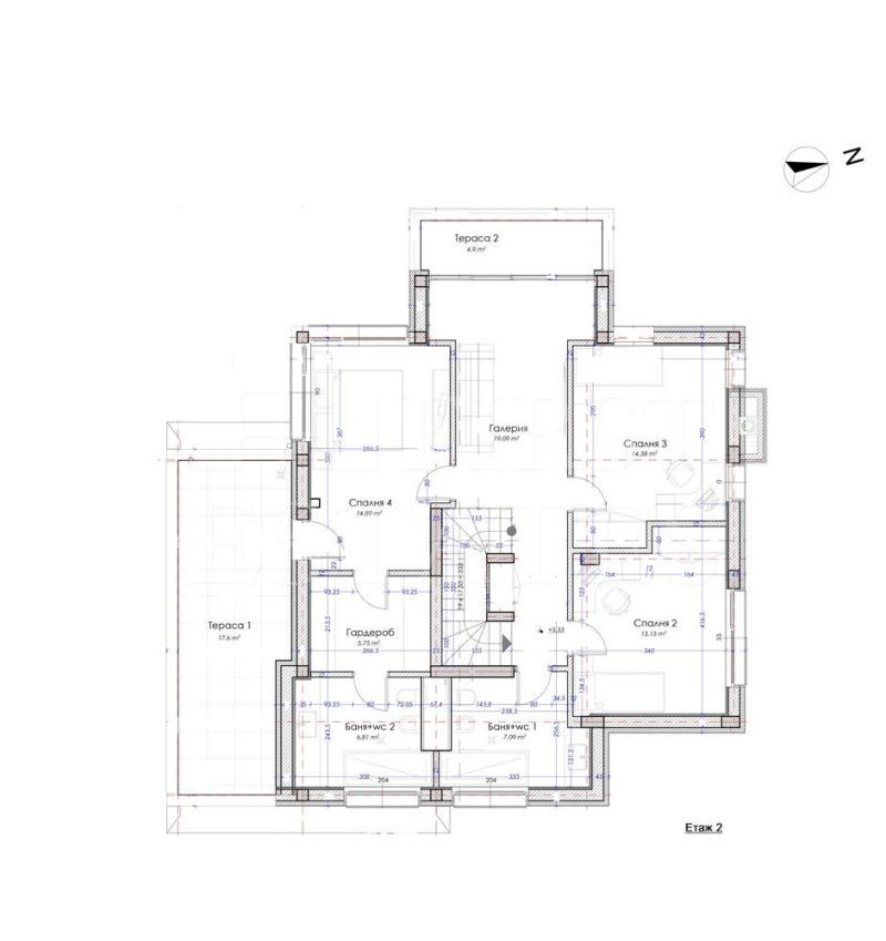
Втори етаж: 135 м?, включващи коридор, баня с WC, обща тераса, две детски спални и родителска спалня с гардеробна, самостоятелна баня с WC и голяма тераса
Трети етаж: 110 м?, представляващи голямо подпокривно пространство с най-висока част 58 м?, подходящо за обособяване като жилищен етаж
Отопление - газово котле и поставени изводи за радиатори
Двойно паркомясто с топла връзка към дневната
Дворно пространство:
Площ от 610 м?
Дворът е отделен чрез зелена растителност и малки бетонни преградни стенички и е предназначен за самостоятелно ползване от собственика на къщата. Къщата разполага и с 1,35% общи идеални части от УПИ-то на комплекса.
Цена: 1 100 000 евро с ДДС (крайна цена).

За повече информация и организиране на оглед, моля свържете се с нас на телефон: 0 700 15 15 1 и цитирайте код на офертата: 2-11661
Características:
  • Com garagem
À venda  Casa Sofia , Dragalevci , 420 m² | 24986356 - imagem [2]
À venda  Casa Sofia , Dragalevci , 420 m² | 24986356 - imagem [3]
À venda  Casa Sofia , Dragalevci , 420 m² | 24986356 - imagem [4]
À venda  Casa Sofia , Dragalevci , 420 m² | 24986356 - imagem [5]Veja a seguir 13 fotos
Preço

Preço de propriedade: 1 100 000 €

2 151 413 лв.

Preço sobre m²: 2619,048 €

5 122,41 лв. sobre m²

Inscreva-me para receber notificações de alteração de preço
Localização

Sofia, Dragalevci

Estatisticas
  • 24Visualizações
  • 0economizar
O anúncio foi publicado em 9 outubro 2025
Entre em contato com o vendedor
07XXX... (mostrar)
Agente
//photos.imoti.info//assets/user.svg
Gergana Kapio
070015151

FARST ESTEITS
Sofia ul. 'Moskovska' 27A, et.1, ap.4
À venda Casa в Sofia, Dragalevci, 420 m²
1 100 000 €
420 m²Térreo Tijolo, 2020
call2070015151