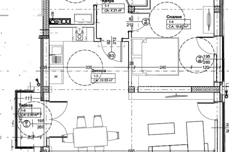
Двустаен непреходен апаратемент/възможно преустройство в тристаен/, находящ се в един от най-атрактивните квартали на София - Оборище. Състои се от: входно антре с възмжност за портманто и с мокро помещение, баня с тоалетна, дневна с кухненски бокс и тераса, спалня.
Има възможност за покупка на паркомясто или гараж. Цената е с включен ДДС.
Отоплението е предвидено чрез Термопомпа с подово.
кв. ОборищеВ на пешеходно разстояние до Малък градски театър Зад канала и метростанция Театрална.
Сграда с модерна визия и архитектура, с перфектна локация и на пешеходно разстояние до Парка Заимов, Метростанция Театрална, в сърцето на София.
Луксозно завършени общи части, алуминиеви парапети, хидравличен асансьор, висок клас ПВЦ дограма, домофонна система за контролиран достъп в сградата.
Инсталация за термопомпа, Южен, метростанция.
Обади се сега и цитирай този код 652837
Conecte-se
+ Anúncio grátis

![À venda 1 quarto Sofia , Oborichtche , 89 m² | 25392856 - imagem [2] — Imoti.info À venda 1 quarto Sofia , Oborichtche , 89 m² | 25392856 - imagem [2]](http://imotstatic4.focus.bg/imot/photosimotbg/1/736/big/1b174547712716736_1e.jpg)










