À venda  1 quarto Sofia , Vitocha , 138 m² | 25576732
6 fotos

À venda 1 quarto в Sofia, Vitocha, 138 m²

VIP
208 259
407 319,2 лв.
O IVA está incluído
Área: 138 m²Andar Térreo Tipo de construção Tijolo, 2027
Aquecimento central: -Gás: SIM
Descrição da Propriedade:
'RockIT Properties' Ви представа ексклузивно двустаен партерен апартамент с двор в новострояща се бутикова сграда в кв. Витоша. Сградата е четири надземни етажа и разполага с 20 апартамента. Използват се най-висок клас материали. Намира се на много удобно място, до бул. Симеоновско шосе и ул. Филип Кутев, има спирки на градски транспорт, детски площадки, както и изградена пътна инфраструктура.

Сградата е с впечатляваща фасада, клинкер тухлички и стъклени балкони. Разполага със заграден озеленен двор, подземен паркинг с гаражи и паркоместа.

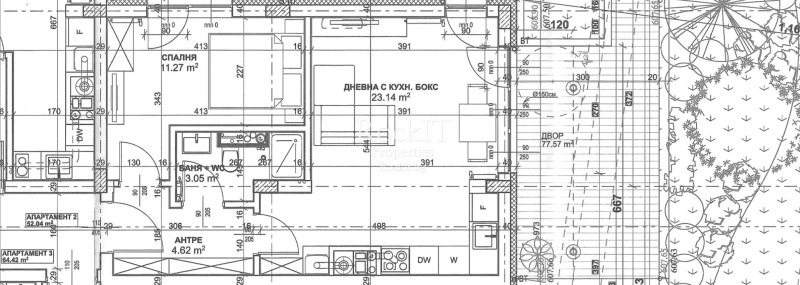
Апартаментът е 61кв.м. с общи части, 52.04кв.м. застроена площ, прекрасен зелен двор от 77.57кв.м., изложението е Изток/ Североизток/ Югоизток, продава се на шпакловка и замазка, с изградени инсталации и висок клас дограма.

Разпределение на апартамент 2:

-Антре (4.62кв.м.)

-Баня с тоалетна (3.05кв.м.)

-Дневна с кухненски бокс (23.14кв.м.)

-Спалня (11.27кв.м.)

-Двор (77.57кв.м.)

В момента е на етап полагане на основи. Очакван акт 16: Лято на 2027 година.

Разполагаме с още двустайни, тристайни и четиристайни апартаменти в сградата.

Без комисионна от купувача!

For description in English, more photos, layouts and information, you can find on our website: www.Rockit.bg

Ако търсите или предлагате подобен имот, свържете се с нас!

Можем да съдействаме на всеки етап от финансирането (работим с всички банки, а услугата е безплатна), юридическо консултиране, покупко-продажба, интериорен дизайн, строително-ремонтни дейности, почистване и поддържане на имота, управление през краткосрочен или дългосрочен наем и много други.
Características:
  • Elevador
À venda  1 quarto Sofia , Vitocha , 138 m² | 25576732 - imagem [2]
À venda  1 quarto Sofia , Vitocha , 138 m² | 25576732 - imagem [3]
À venda  1 quarto Sofia , Vitocha , 138 m² | 25576732 - imagem [4]
À venda  1 quarto Sofia , Vitocha , 138 m² | 25576732 - imagem [5]Veja a seguir 2 fotos
Preço

Preço de propriedade: 208 259 €

407 319,2 лв.

Preço sobre m²: 1509,123 €

2 951,59 лв. sobre m²

Inscreva-me para receber notificações de alteração de preço
Localização

Sofia, Vitocha

Estatisticas
  • 27Visualizações
  • 0economizar
O anúncio foi publicado em 7 outubro 2025
Entre em contato com o vendedor
089XXX... (mostrar)
Agente
//photos.imoti.info//assets/user.svg
Valentin Dinekov
+359899666699

ROKIT PROPARTIS
Sofia j.k. Iztok, ul. Akademik Metodi Popov 24a
À venda 1 quarto в Sofia, Vitocha, 138 m²
208 259 €
138 m²Térreo Tijolo, 2027
call20899666699