БИЛДИНГ БОКС предлага за продажба тристаен апартамент в напреднал етап на строителство в кв. Гагарин.
Предимства на имота:
- ЛОКАЦИЯ: Комплексът е разположен в квартал Гагарин, в близост до основни пътни артерии, детски градини, училища и паркове, както и на 10 минути пешеходно разстояние от центъра на гр. Пловдив.
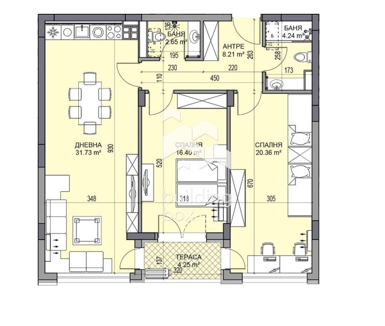
- РАЗПРЕДЕЛЕНИЕ: Просторна всекидневна с кухненски бокс, с площ от 31,73 кв.м, две спални, антре, две бани с тоалетни и две тераси.
- ПЛОЩ: Апартаментът е с обща площ от 121,47 кв.м.
- ОТОПЛЕНИЕ: Електричество.
- ИЗЛОЖЕНИЕ: ЮГ.
- ЕТАЖ: 9-ти етаж от общо 12.
- ПАРКИРАНЕ: Наличен подземен и надземен паркинг с възможност за закупуване на паркоместа и гаражи.
- СГРАДА: Модерна сграда, проектирана от инвеститор с опит и история в гр. Пловдив.
- ЕТАП НА СТРОИТЕЛСТВО: Строителството е стартирало през м. Юни 2024г. Въвеждане в експлоатация се очаква в началото на 2027г.
БИЛДИНГ БОКС предоставя безплатна консултация и съдействие при финансиране на избрания от Вас имот.
Оферта 21711
Conecte-se
+ Anúncio grátis

![À venda 2 quartos Plovdiv , Gagarin , 121 m² | 50774103 - imagem [2] — Imoti.info À venda 2 quartos Plovdiv , Gagarin , 121 m² | 50774103 - imagem [2]](http://cdn3.focus.bg/imot/photosimotbg/1/227/big/1c176217707809227_2Q.jpg)










