À venda  2 quartos Sofia , Suhata reka , 91 m² | 58185513
3 pictures

À venda 2 quartos в Sofia, Suhata reka, 91 m²

157 000
307 065,31 лв.
IVA não está incluído
Area: 91 m²Floor 6º Construction type Tijolo, 2026
Central Heating: SIMGas: NÃO
Property Description:
- Новострояща се кооперация с елегантен вид и комфортни разпределения. Локацията ѝ предлага бърз достъп , посредством ' Ботевградско шосе ' , намира се в среда със зеленина и междублокови пространства , на пешеходно разстояние от парк ' Герена ' , различни учебни заведения , търговски обекти , както множество други удобства.

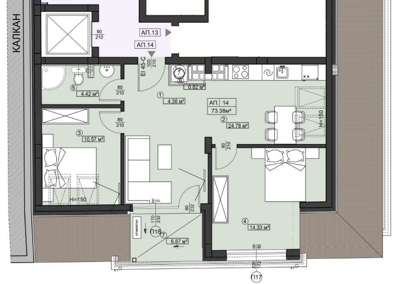
- Разположен на шести / последен / жилищен етаж , АП. 14 е изложен на юг и изток. Състои се от / 73,38 кв.м. / жилищна площ , разпределени във : голям и светъл хол с трапезария и кухненски бокс , тип - open space / 25 кв.м. / , баня с тоалетна , две спални / 14 кв.м. / и / 11 кв.м. /, както голяма южна тераса предлагаща чудесен изглед.

- Жилището се предава с най-висок клас шест камерна PVC дограма / KÖMMERLING / с троен стъклопакет , външна блиндирана врата , поставени алуминиеви радиатори и поставени изводи за климатици , изградени ВиК , ел. инсталации и звънчеви системи. Отопление на ТЕЦ. Луксозни общи части с контрол на достъпа и видео наблюдение.

- Повече информация , уговорки относно огледи , както професионално съдействие за кредитиране от лицензирания ни финансов консултант , на тел . : 0887 776 190
Features:
  • Elevador
  • Com garagem
  • Com estacionamento
  • conexão de internet
  • Com um negócio ativo
  • Câmeras de segurança
  • Controle de acesso
  • Segurança
  • Isolamento térmico
À venda  2 quartos Sofia , Suhata reka , 91 m² | 58185513 - imagem [2]
À venda  2 quartos Sofia , Suhata reka , 91 m² | 58185513 - imagem [3]
Price

Property price: 157 000 €

307 065,31 лв.

Price sobre m²: 1725,275 €

3 374,34 лв. sobre m²

Subscribe me for price change notifications
Location

Sofia, Suhata reka

Statistics
  • 11views
  • 0saves
The ad was published on 12 outubro 2025
Contact seller
0887 XXX... (show)

EKSPERT ESTEIT GRUP
Sofia Oborichtche, ul. Aleko Konstantinov 32
À venda 2 quartos в Sofia, Suhata reka, 91 m²
157 000 €
91 m²Tijolo, 2026