À venda  3 quartos Varna , Levski 2 , 149 m² | 64283441
3 fotos

À venda 3 quartos в Varna, Levski 2, 149 m²

240 100
469 594,78 лв.
O IVA está incluído
Área: 149 m²Piso 8º Tipo de construcción Tijolo, 2027
Calefacción central: -Gas: -
Descripción de propiedad:
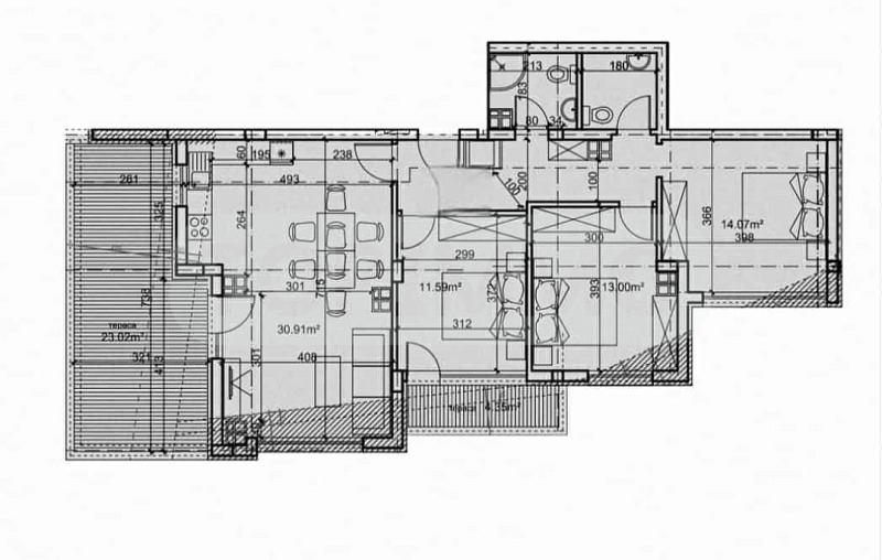
ТОПИММО предлага за продажба четиристаен апартамент в новострояща се сграда на метри от Технически университет и множество търговски обекти от всякакъв тип.

Имотът е разположен на осми етаж със следното разпределение: коридор, всекидневна с кухн. част 31 кв.м. с излаз на просторна тераса, три спални 11.60 /13/14 кв.м., като към едната спалня има втора тераса 4.3 кв.м., два санитарни възела.

Апартаментът се издава в състояние по БДС. Гъвкава схема на плащане.

Имотът е подходящ както за лично ползване, така и с цел инвестиция. Качествено строителство от фирма с много изпълнени проекти и доволни клиенти.

Можем да организираме оглед в удобно за вас време, свържете се с нас! Референтен номер: PL-4379
Características:
  • Elevador
À venda  3 quartos Varna , Levski 2 , 149 m² | 64283441 - imagem [2]
À venda  3 quartos Varna , Levski 2 , 149 m² | 64283441 - imagem [3]
Precio

Precio de la propiedad: 240 100 €

469 594,78 лв.

Precio sobre m²: 1611,409 €

3 151,64 лв. sobre m²

Suscríbeme para recibir notificaciones de cambios de precios
Ubicación

Varna, Levski 2

Estadísticas
  • 39puntos de vista
  • 0ahorra
El anuncio fue publicado el 7 outubro 2025
Contacte al vendedor
088XXX... (espectáculo)

TOPIMMO
Varna ul. Preslav 7
À venda 3 quartos в Varna, Levski 2, 149 m²
240 100 €
149 m²Tijolo, 2027
call20889000885