БИЛДИНГ БОКС предлага за продажба многостаен апартамент в кв. 'Красно село'.
За имота:
Апартаментът се намира на 3-ти етаж от общо 7. Отоплението е предвидено на ТЕЦ. Изложението е изток, югоизток.
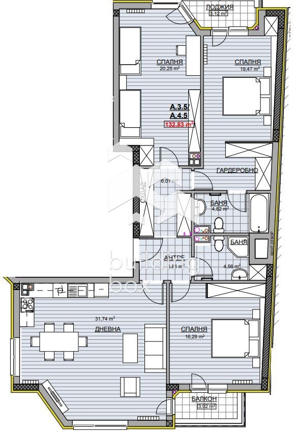
Застроената площ на имота е 132,83 кв.м и се състои от антре, дневна с кухненски бокс, три спални, гардеробна, две бани с тоалетни, склад и два балкона.
В близост до бул. България , бул. Цар Борис III и бул. Гоце Делчев , което осигурява бърз достъп до централната част на столицата и останалите райони на града. Местоположението на сградата е перфектно обезпечено от спирки на градски транспорт - на 200 м от метростанция Красно село , на 300 м от спирки на тролеи, трамваи и автобуси.
В непосредствена близост има детски градини, училища, множество търговски обекти, пазар Красно село , ресторанти, заведения за бързо хранене и разнообразие от магазини за всички нужди на един човек.
За сградата:
Бутикова сграда, разполагаща с апартаменти, търговски обекти, подземни и надземни паркоместа. В проекта са заложени апартаменти с функционални разпределения, благоприятни изложения и минимализиран процент общи части.
Сградата е след АКТ 14 и ще бъде завършена през 2026г.
Инвеститорът е с дългогодишен опит, има повече от 10 завършени сгради с обща застроена площ над 80 000 кв.м, както в столицата, така и по черноморски и планински курорти.
БИЛДИНГ БОКС предоставя безплатна консултация и съдействие при финансиране на избрания от Вас имот.
Оферта 7718
Giriş yapmak
+ Ücretsiz reklam

![À venda Mais de 3 quartos Sofia , Krasno selo , 160 m² | 72864328 - imagem [2] — Imoti.info À venda Mais de 3 quartos Sofia , Krasno selo , 160 m² | 72864328 - imagem [2]](http://imotstatic4.focus.bg/imot/photosimotbg/1/850/big/1e176338804524850_Ax.jpg)
![À venda Mais de 3 quartos Sofia , Krasno selo , 160 m² | 72864328 - imagem [3] — Imoti.info À venda Mais de 3 quartos Sofia , Krasno selo , 160 m² | 72864328 - imagem [3]](http://imotstatic4.focus.bg/imot/photosimotbg/1/850/big/1e176338804524850_nE.jpg)
![À venda Mais de 3 quartos Sofia , Krasno selo , 160 m² | 72864328 - imagem [4] — Imoti.info À venda Mais de 3 quartos Sofia , Krasno selo , 160 m² | 72864328 - imagem [4]](http://imotstatic4.focus.bg/imot/photosimotbg/1/850/big/1e176338804524850_Fd.jpg)
![À venda Mais de 3 quartos Sofia , Krasno selo , 160 m² | 72864328 - imagem [5] — Imoti.info À venda Mais de 3 quartos Sofia , Krasno selo , 160 m² | 72864328 - imagem [5]](http://imotstatic4.focus.bg/imot/photosimotbg/1/850/big/1e176338804524850_LA.jpg)
![À venda Mais de 3 quartos Sofia , Krasno selo , 160 m² | 72864328 - imagem [6] — Imoti.info À venda Mais de 3 quartos Sofia , Krasno selo , 160 m² | 72864328 - imagem [6]](http://imotstatic4.focus.bg/imot/photosimotbg/1/850/big/1e176338804524850_JI.jpg)
![À venda Mais de 3 quartos Sofia , Krasno selo , 160 m² | 72864328 - imagem [7] — Imoti.info À venda Mais de 3 quartos Sofia , Krasno selo , 160 m² | 72864328 - imagem [7]](http://imotstatic4.focus.bg/imot/photosimotbg/1/850/big/1e176338804524850_T4.jpg)
![À venda Mais de 3 quartos Sofia , Krasno selo , 160 m² | 72864328 - imagem [8] — Imoti.info À venda Mais de 3 quartos Sofia , Krasno selo , 160 m² | 72864328 - imagem [8]](http://imotstatic4.focus.bg/imot/photosimotbg/1/850/big/1e176338804524850_zV.jpg)










