Продается  1 спальня София , м-т Гърдова глава , 79 кв.м | 42364442
5 картинки

Продается 1 спальня в София, м-т Гърдова глава, 79 кв.м

По запросу
0 лв.
Площадь: 79 кв.мЭтаж 2-й Тип строительства Кирпич, 2028
Центральное отопление: -Газ: -
Описание недвижимости:
Unique estates има удоволствието да ви представи двустаен апартамент в кв. Гърдова глава, идеален както за инвестиция, така и за ваш собствен дом. Жилището е част от новостроящ се бутиков комплекс с отлично озеленяване и модерни удобства. Намира се в един от най-търсените квартали, съчетаващ спокойствието на планинския пейзаж с бърз достъп до града.

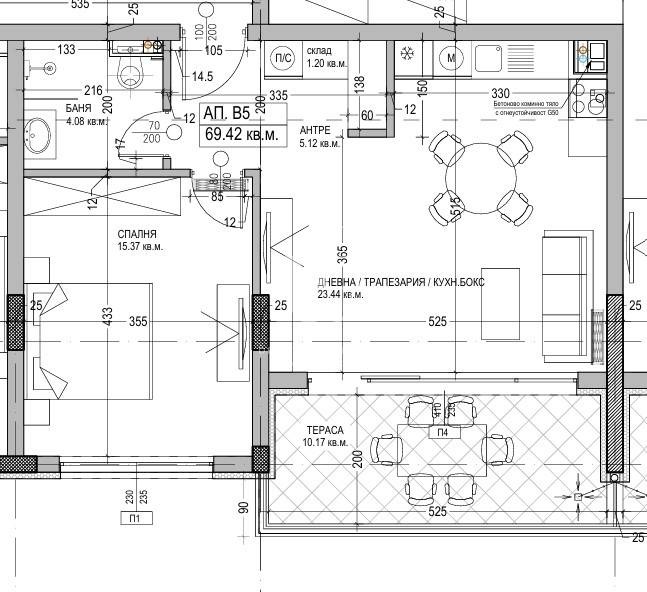
Апартаментът се намира на трети етаж и предлага голяма и светла всекидневна с кухненски бокс, една спалня, баня с тоалетна, складово помещение и просторна южна тераса, която разкрива прекрасни гледки. А по- високите тавани придават усещане за обем и свобода.

Жилището разполага с изградено подово отопление и термопомпа, включени в цената. Тази технология осигурява висока енергийна ефективност и ниски разходи за отопление и охлаждане.

Този имот е чудесен избор за всеки, който търси комфорт, качество и перспективна инвестиция. За повече информация и огледи, моля, свържете се с нас
Състои се от входно антре, спалня, мокро помещение/ склад, дневна с трапезария и кухненска част, тераса, с площ от 10кв.м Цената е без включен ДДС. Ref. ID:27355
Функции:
  • Поднимать
  • С парковкой
  • Комплекс закрытого типа
Продается  1 спальня София , м-т Гърдова глава , 79 кв.м | 42364442 - изображение [2]
Продается  1 спальня София , м-т Гърдова глава , 79 кв.м | 42364442 - изображение [3]
Продается  1 спальня София , м-т Гърдова глава , 79 кв.м | 42364442 - изображение [4]
Продается  1 спальня София , м-т Гърдова глава , 79 кв.м | 42364442 - изображение [5]Смотри дальше 1 картинки
Цена

Цена недвижимости: По запросу

0 лв.

Цена :

Подпишитесь на меня, чтобы получать уведомления об изменении цен
Расположение

София, м-т Гърдова глава

Статистика
  • 46Просмотры
  • 0экономит
Объявление было опубликовано на 12 октябрь 2025
Связаться с продавцом
0882 XXX... (показывать)
Агент
//photos.imoti.info/assets/images/brokerspicts/16678183752776566.webp
Анита Котова
0882 300 400

ЮНИК ЕСТЕЙТС
София бул. Патриарх Евтимий 17
Продается 1 спальня в София, м-т Гърдова глава, 79 кв.м
По запросу
79 кв.м2-й Кирпич, 2028
call20882 300 400