Продается  2 спальни Варна , Владислав Варненчик 1 , 101 кв.м | 56728657
3 картинки

Продается 2 спальни в Варна, Владислав Варненчик 1, 101 кв.м

136 900
267 753,13 лв.
НДС не взимается
Площадь: 101 кв.мЭтаж 2-й Тип строительства Кирпич, 2027
Центральное отопление: -Газ: -
Описание недвижимости:
🏗 НОВО СТРОИТЕЛСТВО! ДОКАЗАН СТРОИТЕЛ! ВЪЗМОЖНОСТ ЗА ПАРКОМЯСТО И ГАРАЖ!

Имоти Премиер предлага за продажба тристаен апартамент в новострояща се сграда в кв. Владиславово, гр. Варна. Сградата е с издадено разрешение за строеж и ще бъде изпълнена от доказан и коректен строител с отлична репутация и високо качество на изпълнение.

📐 Площ: 101 кв.м.
🏢 Етаж: 2 от 5

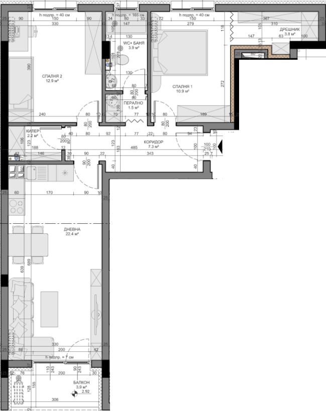
Жилището се състои от:

Входно антре
Просторен дневен тракт с кухненска част
Две самостоятелни спални
Баня с тоалетна
Отделна тоалетна / килер (в зависимост от проекта)
Тераса

🚗 Към сградата са предвидени външни и вътрешни паркоместа, както и гаражи, достъпни за закупуване.

✨ Строителството се изпълнява с висококачествени материали, съвременни технологии и внимание към всеки детайл.

🏘 Предлагат се различни типове апартаменти едностайни, двустайни и тристайни, с различни квадратури и разпределения.

📍 Локацията е отлична в близост до главни пътни артерии, търговски обекти, училища, детски градини и спирки на градски транспорт.

✅ Подходящ както за семейно живеене, така и за инвестиция с цел отдаване под наем.

📞 Код на офертата: 375234
Функции:
  • Поднимать
  • С гаражом
  • С парковкой
  • Контроль доступа
Продается  2 спальни Варна , Владислав Варненчик 1 , 101 кв.м | 56728657 - изображение [2]
Продается  2 спальни Варна , Владислав Варненчик 1 , 101 кв.м | 56728657 - изображение [3]
Цена

Цена недвижимости: 136 900 €

267 753,13 лв.

Цена на кв.м: 1355,446 €

2 651,02 лв. на кв.м

Подпишитесь на меня, чтобы получать уведомления об изменении цен
Расположение

Варна, Владислав Варненчик 1

Статистика
  • 21Просмотры
  • 0экономит
Объявление было опубликовано на 21 октябрь 2025
Связаться с продавцом
087XXX... (показывать)
Агент
//photos.imoti.info/assets/images/brokerspicts/17096358739509823.webp
Венцислав Жеков
0879590087

ИМОТИ ПРЕМИЕР
Варна ул. Георги Бенковски 90 ет.6 оф.20
Продается 2 спальни в Варна, Владислав Варненчик 1, 101 кв.м
136 900 €
101 кв.м2-й Кирпич, 2027
call20879590087