Продается  2 спальни София , Витоша , 105 кв.м | 91002007
12 картинки

Продается 2 спальни в София, Витоша, 105 кв.м

VIP
280 000
547 632,4 лв.
НДС включен
Площадь: 105 кв.мЭтаж 2-й Тип строительства Кирпич, 2027
Центральное отопление: НЕТГаз: ДА
Описание недвижимости:
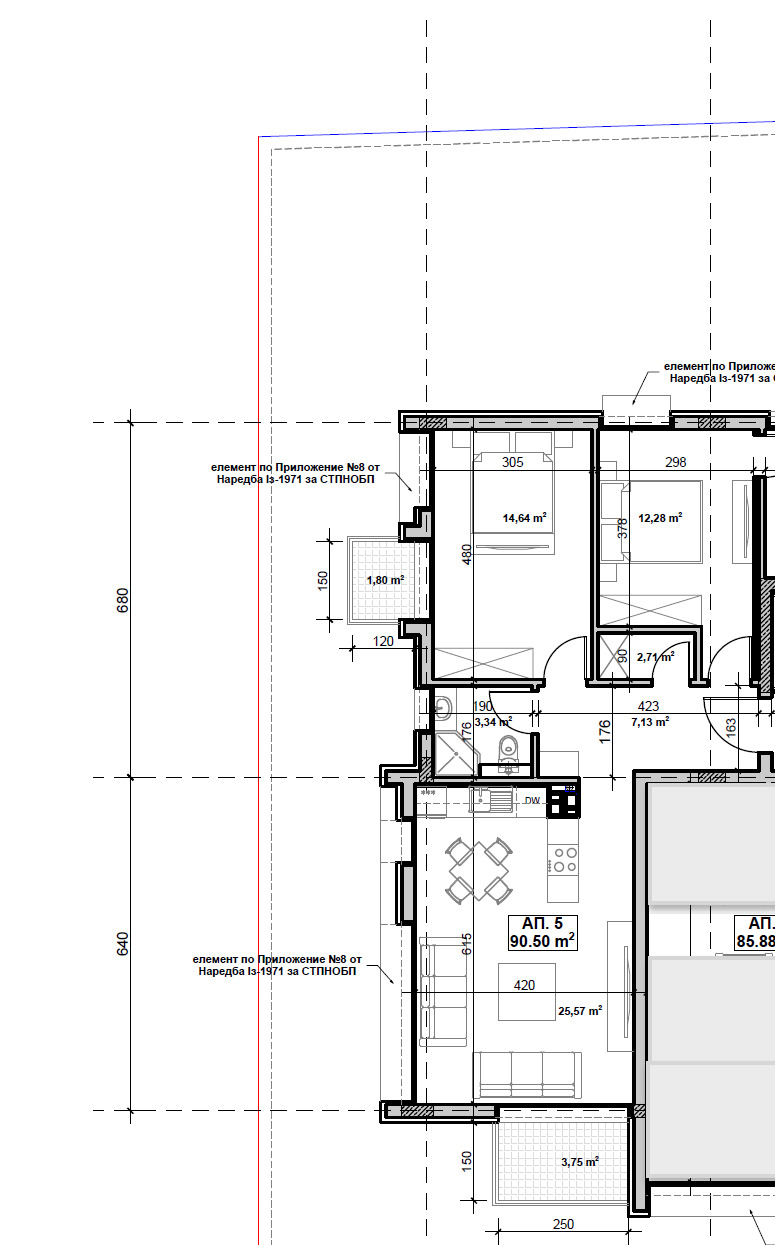
Тристаен апартамент в новостроящ се жилищен комплекс в кв. Витоша, ул. Жечо Атанасов

Предлагаме за продажба тристаен апартамент, разположен на 2-ри етаж в новострояща се модерна жилищна сграда, отличаваща се с висок клас строителство, дограма и окачена фасада - комбинация между камък и laminam. С отличното си и функционално разпределение, този дом предлага топлина, светлина и комфорт за вашето семейство.

Разпределение:

Просторен хол с кухненски бокс с две изложения

Две самостоятелни спални, едната от които с прилежаща баня с тоалетна и дрешник.

Втора баня с тоалетна.

Два балкона - на хола и на едната спалня.

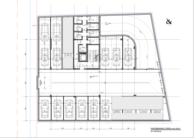
Опция за закупуване на подземен гараж

Предимства на сградата:

Зелен двор и озеленени площи създават чувство за пространство и спокойствие

Оградена територия и контрол на достъпа гарантирана сигурност и уединение

Висококачествено строителство окачена фасада, съвременна визия и дълготрайност

Петкамерна дограма висок клас отлична шумо и топлоизолация

Отличителни общи части с камък Patagonia и гранит.

Откриване на строителна площадка - есен 2025г.
Акт 14 - Есента на 2026г.
Акт 15 - Есента на 2027г.
Акт 16 - Началото на 2028г.

Разсрочена схема на плашане спрямо етапите на строителство.
Възможност за банково кредитиране след Акт 14

Този апартамент е съчетание от модерен стил, практичност и уют, което го прави отличен избор както за семейно жилище, така и за успешна инвестиция.
Продается  2 спальни София , Витоша , 105 кв.м | 91002007 - изображение [2]
Продается  2 спальни София , Витоша , 105 кв.м | 91002007 - изображение [3]
Продается  2 спальни София , Витоша , 105 кв.м | 91002007 - изображение [4]
Продается  2 спальни София , Витоша , 105 кв.м | 91002007 - изображение [5]Смотри дальше 8 картинки
Цена

Цена недвижимости: 280 000 €

547 632,4 лв.

Цена на кв.м: 2666,667 €

5 215,55 лв. на кв.м

Подпишитесь на меня, чтобы получать уведомления об изменении цен
Расположение

София, Витоша

Статистика
  • 6Просмотры
  • 0экономит
Объявление было опубликовано на 1 октябрь 2025
Связаться с продавцом
088XXX... (показывать)

ЕНТРАДА
София ул. Могилата 13, Партер, Офис 2
Продается 2 спальни в София, Витоша, 105 кв.м
280 000 €
105 кв.м2-й Кирпич, 2027
call20886505431