Продаја  2 спаваће собе Софија , Малинова долина , 126 м2 | 86458556
5 слике

Продаја 2 спаваће собе в Софија, Малинова долина, 126 м2

265 009
518 312,55 лв.
ПДВ је укључен
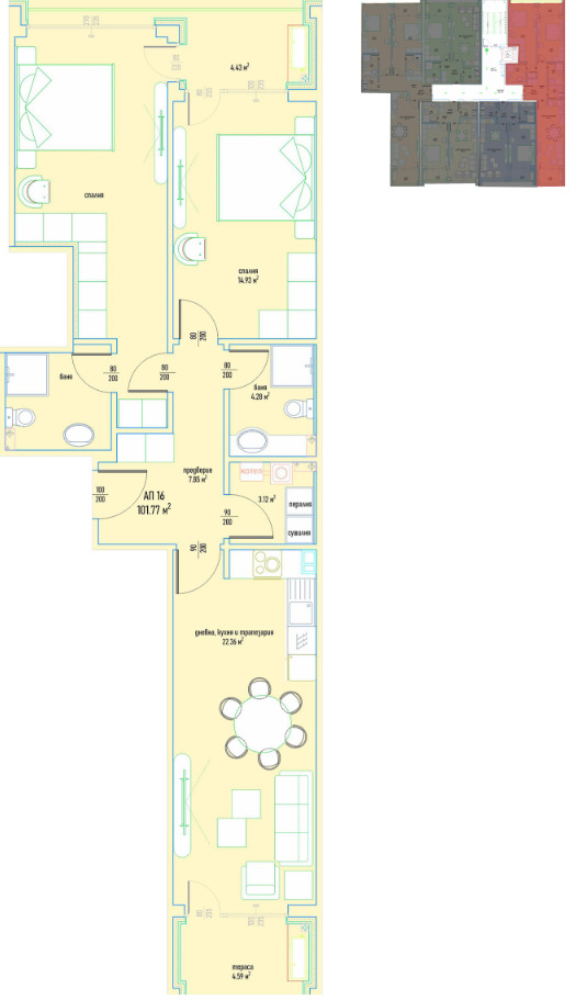
Површина: 126 м2Спрат 4 Врста изградње Цигла, 2025
Централно грејање: НЕГасни: ДА
Опис некретнине:
🏡Тристаен апартамент в луксозен жилищен комплекс в Малинова долина !
📍Локация: разположен северно от Ring Mall и Ikea, в непосредствена близост до бул. Климент Охридски в красива зелена местност и уникална гледка към Витоша.
📐 Основни характеристики:
Обща площ: 126.32 кв.м.,
Застроена площ: 101.77 кв.м. жилище
Общи части: 24.55 кв.м.
Етаж: 4 от 7
Изложение: СИ, Ю
🏢 Разпределение:
Две Спални
Две бани с тоалетни
Дневна с кухненски бокс
Две тераси
Склад
🔥 Отопление:
Газ или Климатици
📍 Локация: на 15 мин с автомобил до центъра на София и на 3 мин от Ring Mall.
🌳 Удобства и среда:
✔ Просторни апартаменти с оптимални разпределения
✔ Вътрешен озеленен двор с детска площадка
✔ Комплекс от затворен тип с 24 часа физическа охрана, видеонаблюдение и контролиран достъп.
✔ Професионално управление без скрити такси
✔ Жилище сред природата, далеч от шумните булеварди и интензивната градска среда
✔ Бърз достъп до градски транспорт, училища, детски градини и магазини
🚗 Допълнително:
✔ Възможност за покупка на гараж и/или паркомясто (на отделна цена)
💰 Идеален избор за нов дом или инвестиция
💰 Имот, който не просто предлага квадратни метри, а създава усещане за дом място, където ще се чувствате наистина добре
С отлична локация и разнообразие от апартаменти, комплексът е изпълнен по висок стандарт, с:
Окачена вентилируема фасада с каменна вата;
PVC дограма Deceuninck, петкамерна с троен стъклопакет;
Асансьори ORONA;
Газификация и енергиен сертификат клас В;
Подземни гаражи, озеленени пространства и професионална поддръжка.
🏗 Сградата е с Акт 15, а завършването се очаква през ноември 2025 г.
📲 Свържете се с нас за индивидуална оферта, наличности и подробности по проекта!
📌 Оферта ЕА 20183

Агенция Андромеда е създадена преди повече от 30 години, като за този период сме преминали през различни етапи и ситуации, но всяка трудност е била безценен опит, за да продължим да се развиваме.
Към днешна дата разполагаме с няколко офиса в гр.Плевен и София и силен екип професионалисти, подкрепен от собствениците.
Карактеристике:
  • Лифт
  • Са гаражом
  • Са паркингом
  • Сигурносне камере
  • Контрола приступа
  • Безбедност
  • Топлотна изолација
  • Гатед цомплек
Продаја  2 спаваће собе Софија , Малинова долина , 126 м2 | 86458556 - слика [2]
Продаја  2 спаваће собе Софија , Малинова долина , 126 м2 | 86458556 - слика [3]
Продаја  2 спаваће собе Софија , Малинова долина , 126 м2 | 86458556 - слика [4]
Продаја  2 спаваће собе Софија , Малинова долина , 126 м2 | 86458556 - слика [5]Види следеће 1 слике
Цена

Цена некретнине: 265 009 €

518 312,55 лв.

Цена на м2: 2103,246 €

4 113,59 лв. на м2

Претплатите се на обавештења о промени цена
Локација

Софија, Малинова долина

Статистика
  • 26погледа
  • 0штеди
Оглас је објављен на 8 октобар 2025
Контакт продавац
088XXX... (Прикажи)

АНДРОМЕДА ИМОТИ ЕООД
Софија гр. Софија, жк. Младост 1А, бл.563
Продаја 2 спаваће собе в Софија, Малинова долина, 126 м2
265 009 €
126 м24 Цигла, 2025
call20883587000