Продаја  3 спаваће собе Пловдив , Јyжен , 136 м2 | 99798457
3 слике

Продаја 3 спаваће собе в Пловдив, Јyжен, 136 м2

128 590
251 500,18 лв.
ПДВ је укључен
Површина: 136 м2Спрат 4 Врста изградње Цигла, 2026
Централно грејање: -Гасни: -
Опис некретнине:
🔈БЕЗ КОМИСИОН ДИРЕКТНО ОТ ИНВЕСТИТОР!🔈 ОФЕРТА:4571
◼ Представяме Ви новопостроен жилищен комплекс включващ 2 структури от по 6 сгради на сключено застрояване и 2 свободно стоящи сгради, като ще са с общо подземно ниво в район Южен.
◼ Помислено е разположението на сградите да е такова, че да не позволява видимост от един апартамент в друг през огромните прозорци.
◼ Фасадите са изчистени, като по терасите са използвани два вида материал стъкло и метал, перфорирани решетки ще скриват външните климатични тела.
◼ Наличие на двустайни, тристайни и четиристайни апартаменти.

💎Цена БЕЗ аналог : 950 евро/ кв.м!

✔️ Разпределение:
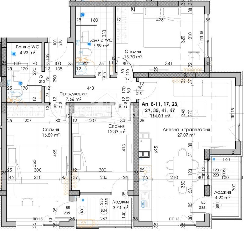
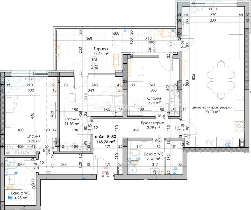
Четиристайните апартаменти се състоят от входно антре, дневна с трапезария и кухненски бокс, три спални, две бани с тоалетна, една или две тераси и изба.

Налични модули :
- 135,36 кв.м - 128 590 евро
- 145,77 кв.м - 138 481 евро

✔️Степен на завършеност :
Стени турбозолна мазилка , Под запазка , Ел.инсталация с ключове и контакти , ВиК до тапа , ПВЦ докрама и входна блиндирана врата .

🚗Паркиране :
Проблемът с паркирането е решен на 100% - за желаещите да си закупят ще се предлагат подземни и надземни паркоместа и надземни гаражи.

✔️Срокове на изпълнение :
Към момента обектът е на етап АКТ 14 . На първата структура се полага външна изолация . ПУСКОВ СРОК края на 2026 година !

📍Локация:
В непосредствена близост до комплекса се намира Хипермаркет Billa , ресторант 'Ноте Ди Вино', МЦ 'Спектър' , Козметично студио , EasyPay и редица други търговски обекти .

➡️'ГОЛД ИМОТИ' Ви предлага да се възползвате от професионално кредитно посредничество чрез Credit Center при ипотека, потребителски кредит и рефинансиране!
-УСЛУГАТА Е ИЗЦЯЛО БЕЗПЛАТНА!
-ИЗГОТВЯНЕ НА НЯКОЛКО ОФЕРТИ ОТ ВОДЕЩИ БАНКИ!
-НАЙ-ИЗГОДНИ УСЛОВИЯ СПРЯМО ВАШИЯТ ПРОФИЛ!
-НЕ Е НЕОБХОДИМО ДА СЕ РАЗКАРВАТЕ ВЪВ ВСЕКИ КЛОН НА РАЗЛИЧНИ БАНКИ!
➡️ Още атрактивни оферти може да намерите на нашия сайт: goldhome.bg
📞 За повече информация и при интерес за оглед, моля свържете се с нас на 0894 274 966, 0899 143 262, 0896 706 299 или 0899 125 189.
Карактеристике:
  • Лифт
  • Са гаражом
  • Са паркингом
  • интернет конекција
  • Контрола приступа
Продаја  3 спаваће собе Пловдив , Јyжен , 136 м2 | 99798457 - слика [2]
Продаја  3 спаваће собе Пловдив , Јyжен , 136 м2 | 99798457 - слика [3]
Цена

Цена некретнине: 128 590 €

251 500,18 лв.

Цена на м2: 945,515 €

1 849,27 лв. на м2

Претплатите се на обавештења о промени цена
Локација

Пловдив, Јyжен

Статистика
  • 10погледа
  • 0штеди
Оглас је објављен на 3 октобар 2025
Контакт продавац
0894 XXX... (Прикажи)
Агент
//photos.imoti.info//assets/user.svg
Танја Сатанска
0894274966

ГОЛД ИМОТИ
Пловдив улица '' Брезовска '' 31а
Продаја 3 спаваће собе в Пловдив, Јyжен, 136 м2
128 590 €
136 м24 Цигла, 2026
call20894 274 966