Till salu  2 sovrum Blagoevgrad , Elenovo 1 , 91 kvm | 31147053
2 bilder

Till salu 2 sovrum в Blagoevgrad, Elenovo 1, 91 kvm

98 100
191 866,92 лв.
Moms ingår
Yta: 91 kvmVåning 1:a Byggtyp Tegel, 2026
Centralvärme: -Gas: -
Egendomsbeskrivning:
Агенция за недвижими имоти ХОУМ ФОР Ю има голямото удоволствие да ви представи за продажба тристаен апартамент 5 в новострояща се, луксозна сграда в жк. Еленово, гр. Благоевград.

Сградата се състои от: модерен безшумен асансьор, сутерен с паркоместа, гаражи и мазета, партерен етаж с гаражи и мазета пет жилищни етажа с общо 21 апартамента;

Вашият нов ДОМ се намира на КОТА + 2,60 на първи жилищен етаж с изцяло западно изложение, което го прави много слънчев, светъл, топъл и уютен!

Застроената му площ е 81,86 кв.м. + 8,97 кв.м. общи части, което се равнява на 90,83 кв.м. обща площ, ведно с 26,28 кв.м. от поземления имот.

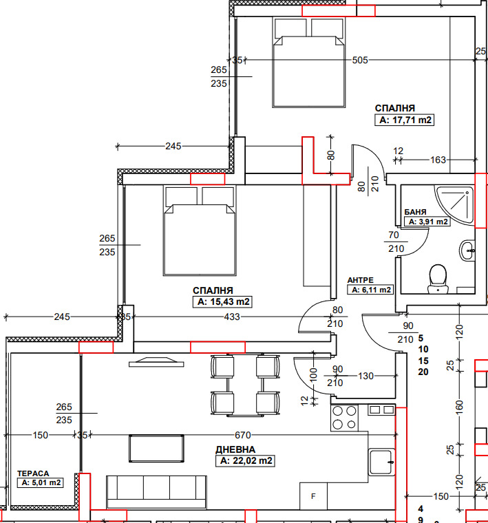
Със следното вътрешно разпределение на стаите и тяхната полезна (светла) площ:

- входно антре с площ 6,11 кв.м.
- дневна с трапезария с площ 22,02 кв.м.
- тераса с площ 5,01 кв.м.
- спалня с площ 15,43 кв.м.
- баня с тоалетна с площ 3,91 кв.м.
- спалня с площ 17,71 кв.м.

Жилището ще бъде завършено по БДС и ще се предаде в следния завършен вид:

- Зидария с Wienerberger-Porotherm 25 light ;
- PVC дограма Rehau Synego 6 камерна 80мм. с висок клас обков на Maco с 4 точки на притискане с високоенергиен троен стъклопакет: К-а стъкло + Б + четири сезона 42мм.
- Топлоизолационна система Weber EPS (експандиpан полистирен) 10 см. и силикатна мазилка;
- Луксозен асансьор ORONA ;
- Луксозни общи части с гранит;
- Стени: машинна фина гипсова мазилка;
- Тавани: гипсокартон с вата и фина шпакловка;
- Опушени стъклени парапети на терасите;
- Луксозни входни врати: блиндирани с многоточково заключване;
- Изводи за климатици във всяка стая;
- Под: циментова замазка;
- Ел. до точка;
- ВиК до тапа;
- Покрив по архитектурен детайл - XPS 10 см и замазка за наклон; два пласта хидроизолация 4 мм;

За ваша сигурност, спокойствие и удобство за новия Ви ДОМ, предлагаме да закупите гараж на цена от 22 000 евро, за да не се налага всеки ден да обикаляте и да търсите място на което да паркирате автомобила си.

ГЪВКАВА СХЕМА НА ПЛАЩАНЕ:

40 % - първоначална вноска
40 % - на АКТ 14
20 % - на АКТ 16

ЕТАП НА СТРОИТЕЛСТВОТО: В СТРОЕЖ!!!

АКТ 14 - до края на 2025г. (това е документът за приемане на конструкцията на сградата, който се издава, когато сградата достигне етап груб строеж)

АКТ 15 - до края на август 2026г. (това е документът, с който се констатира, че сградата е напълно завършена)

АКТ 16 - до края на 2026г. (това е документа, с който сградата се въвежда в експлоатация или по просто казано годна за живеене )

Жилището очаква своите нови собственици, които ще го стопанисват и превърнат в техен дом!

За да получите повече информация за предлаганата от нас оферта може да ни се обадете на посочените телефони за връзка!

Екипът от професионалисти на ХОУМ ФОР Ю ще Ви помогне да сбъднете мечтите си и да ги превърне в реалност, като ви съдейства НАПЪЛНО БЕЗПЛАТНО при кандидатстването за жилищен кредит с ПРЕФЕРЕНЦИАЛНИ УСЛОВИЯ от най-големия кредитен консултант в България КРЕДИТ ЦЕНТЪР!

Ако предлаганият апартамент ви е харесал и представлява интерес за вас, не се колебайте да се свържете с наш брокер, за да резервирате час за оглед в удобно за вас време!

Заповядайте в нашият офис на бул. Кирил и Методий 2 за безплатна консултация с нашите професионалисти, които ще ви обърнат специално внимание, като ви запознаят с пазара на недвижими имоти и ви помогнат с избора на ново жилище според вашите изисквания!

Новият Ви ДОМ е точно тук!

Защото с нас мечтите стават реалност!

РЕФЕРЕНТЕН 7533
Funktioner:
  • Hiss
  • Åtkomstkontroll
  • Värmeisolering
Till salu  2 sovrum Blagoevgrad , Elenovo 1 , 91 kvm | 31147053 - bild [2]
Pris

Fastighetspris: 98 100 €

191 866,92 лв.

Pris på kvm: 1078,022 €

2 108,43 лв. på kvm

Prenumerera på mig för aviseringar om prisändringar
Plats

Blagoevgrad, Elenovo 1

Statistik
  • 4vyer
  • 0sparar
Annonsen publicerades den 3 oktober 2025
Kontakta säljaren
088XXX... (show)
Ombud
//photos.imoti.info/assets/images/brokerspicts/16990213067398512.webp
Vasil Trendafilov
0884817171

HOUM FOR JU-BG EOOD
Blagoevgrad bul. Sv. Sv. Kiril i Metodii 2
Till salu 2 sovrum в Blagoevgrad, Elenovo 1, 91 kvm
98 100 €
91 kvm1:a Tegel, 2026
call20884817171