Till salu  2 sovrum Sofia , Krastova vada , 116 kvm | 36858393
17 bilder

Till salu 2 sovrum в Sofia, Krastova vada, 116 kvm

346 495
677 685,32 лв.
Moms ingår
Yta: 116 kvmVåning 5:a Byggtyp Tegel, 2026
Centralvärme: NEJGas: JA
Egendomsbeskrivning:
ЖИЛИЩЕТО СЕ ПРЕДЛАГА БЕЗ КОМИСИОННА ОТ КУПУВАЧА! ЦЕНИ ОТ ИНВЕСТИТОР!
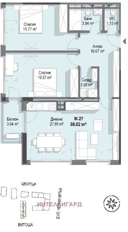
Апартаментът е част от сграда, която е построена в комплекс, разположен върху терен с площ от 12 200 кв.м. Добрата локация му дава възможност за бързо придвижване до всички части на българската столица. Сградата, в която се изгражда предлагания имот е далеч от булевард Черни връх , което е препоставка за една изключително тиха и спокойна среда за за живеене. Същевременно сградата ще бъде освободена от ежемесечни такси за поддържане на общите части, тъй като е предвидено да не влиза като част от затворения комплекс, разположен в непосредствена близост и който се изгражда от същия инвеститор. Изключително добрата му локация ще бъде съчетана умело с много добре обособена и поддържана паркова среда, с разнообразие от растителни видове, алеи за разходка и кътове за отмора, детска площадка, зона за домашни любимци, стрийт фитнес и др., като всичко това цели да превърне жилищния комплекс в благоприятна и здравословна среда за живущите в него. Има следното разпределение:
1. Антре 10,07 кв.м.
2. Дневна с кухненски бокс 27,66 кв.м.
3. Спалня 16,67 кв.м.
4. Втора спалня 15,77 кв.м.
5. Баня с тоалетна 4,19 кв.м.
6. Втора тоалетна 1,78 кв.м.
7. Склад 2,58 кв.м.
6. От дневната и по-голямата спалня се излиза на тераса с площ 3,63 кв.м.,
Чистата застроена площ на жилището е 98,02 кв.м., а с общите части 115,73 кв.м.
Сградата е построена с висококачествени строителни материали, с които се постига във висока степен много добра топло, хидро и шумоизолация, поставена е алуминиева дограма Reynaers, входни врати Solid В комплекса предлагаме и други апартаменти. Агенция Интеллигард си партнира със строителни фирми, които са се доказали на пазара с високо качество на строителство. Агенцията предлага своите експертни услуги юридически, инженерни и всичко необходимо в цялостния процес по избор,покупка, продажба, отдаване под наем, така че клиентите да бъдат сигурни и спокойни, че правят правилния избор в условията на техния защитен интерес. Разполагаме с възможности и да окажем необходимото съдействие на клиента, в случай, че има нужда от банково финансиране. Гъвкави схеми на плащане според възможностите и желание на клиента! За повече информация, Моля обадете се на предоставения телефон или направете запитване през контактната форма на intelliguard-bg.com! Изберете интелигентното решение!
Funktioner:
  • Hiss
  • Med garage
  • Med en parkeringsplats
  • Internet anslutning
  • Säkerhetskameror
  • Åtkomstkontroll
  • säkerhet
  • Värmeisolering
  • Gated komplex
Till salu  2 sovrum Sofia , Krastova vada , 116 kvm | 36858393 - bild [2]
Till salu  2 sovrum Sofia , Krastova vada , 116 kvm | 36858393 - bild [3]
Till salu  2 sovrum Sofia , Krastova vada , 116 kvm | 36858393 - bild [4]
Till salu  2 sovrum Sofia , Krastova vada , 116 kvm | 36858393 - bild [5]Se nästa 13 bilder
Pris

Fastighetspris: 346 495 €

677 685,32 лв.

Pris på kvm: 2987,026 €

5 842,12 лв. på kvm

Prenumerera på mig för aviseringar om prisändringar
Plats

Sofia, Krastova vada

Statistik
  • 16vyer
  • 0sparar
Annonsen publicerades den 5 oktober 2025
Kontakta säljaren
088XXX... (show)
INTELLIGARD
Sofia Bulevard 'Car Boris III', 128
Till salu 2 sovrum в Sofia, Krastova vada, 116 kvm
346 495 €
116 kvm5:a Tegel, 2026
call20885816803