Till salu  2 sovrum Plovdiv , Ostromila , 126 kvm | 68911162
4 bilder

Till salu 2 sovrum в Plovdiv, Ostromila, 126 kvm

97 300
190 302,26 лв.
Moms ingår
Yta: 126 kvmVåning 1:a Byggtyp Tegel, 2026
Centralvärme: -Gas: -
Egendomsbeskrivning:
📢 БЕЗ КОМИСИОН ДИРЕКТНО ОТ ИНВЕСТИТОР! 📢 ОФЕРТА: 10071;
◼ Агенция за недвижими имоти ГОЛД ИМОТИ има удоволствието да Ви представи новопостроен комплекс, в кв. Остромила.
◼ Комплекс от три сгради - на четири етажа, всяка от които разполага с по 24 апартамента (двустайни и тристайни).
✅ Разпределение:
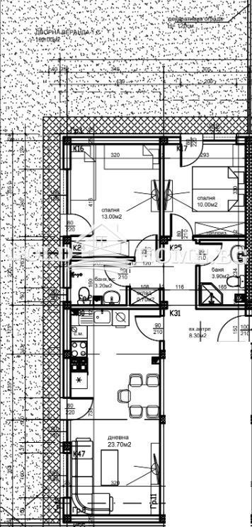
-Тристайни апартаментите апартаменти се състоят от: входно антре, всекидневна с кухненски бокс, две спални, баня с тоалетна, отделна тоалетна, склад и тераса.

◼ Налични модули :
-73,05кв.м. + 52,20кв.м. веранда - 97 300 евро;
-118,63кв.м. - 109 900 евро;
-86,54кв.м. + 102кв.м. веранда - 119 600 евро;

📍 Степен на завършеност:
Жилищата се издават по БДС: шпакловка и замазка, ел. инсталация до ключ, ВиК до тапа, външна блиндирана врата, висок клас ПВЦ дограма.

🚗 Паркиране:
Възможност за покупка на външни паркоместа и гаражи.

🏗 Срок на изпълнение:
Към момента сградите са на етап АКТ 14 полага се външна изолация . АКТ 16 се очаква през лятото на 2026 година.

🏗️За инвеститора :
Инвеститорът е с богат опит в строителството и изпълнението на жилищни сгради на територията на град Пловдив.

📍Локация:
Осигурява уединение и спокойствие в сигурна градска среда.Квартал Остромила предлага комфорт на обитание сред нови , модерни,нискоетажни сгради. По главната улица на Остромила ще откриете : няколко хранителни магазина , офис на Speedy , фризьорски салон ,аптека и спирки на масов градски транспорт.

➡️'ГОЛД ИМОТИ' Ви предлага да се възползвате от професионално кредитно посредничество чрез Credit Center при ипотека, потребителски кредит и рефинансиране!
-УСЛУГАТА Е ИЗЦЯЛО БЕЗПЛАТНА!
-ИЗГОТВЯНЕ НА НЯКОЛКО ОФЕРТИ ОТ ВОДЕЩИ БАНКИ!
-НАЙ-ИЗГОДНИ УСЛОВИЯ СПРЯМО ВАШИЯТ ПРОФИЛ!
-НЕ Е НЕОБХОДИМО ДА СЕ РАЗКАРВАТЕ ВЪВ ВСЕКИ КЛОН НА РАЗЛИЧНИ БАНКИ!
➡️ Още атрактивни и актуални оферти може да разгледате на нашият сайт : goldhome.bg
➡️За повече информация и при интерес за оглед, моля свържете се с нас.
Funktioner:
  • Hiss
  • Med en parkeringsplats
  • Internet anslutning
  • Åtkomstkontroll
Till salu  2 sovrum Plovdiv , Ostromila , 126 kvm | 68911162 - bild [2]
Till salu  2 sovrum Plovdiv , Ostromila , 126 kvm | 68911162 - bild [3]
Till salu  2 sovrum Plovdiv , Ostromila , 126 kvm | 68911162 - bild [4]
Pris

Fastighetspris: 97 300 €

190 302,26 лв.

Pris på kvm: 772,222 €

1 510,33 лв. på kvm

Prenumerera på mig för aviseringar om prisändringar
Plats

Plovdiv, Ostromila

Statistik
  • 0vyer
  • 0sparar
Annonsen publicerades den 2 oktober 2025
Kontakta säljaren
0894 XXX... (show)
Ombud
//photos.imoti.info//assets/user.svg
Tanja Satanska
0894274966

GOLD IMOTI
Plovdiv ulica '' Brezovska '' 31a
Till salu 2 sovrum в Plovdiv, Ostromila, 126 kvm
97 300 €
126 kvm1:a Tegel, 2026