Satılık  2 yatak odası bölge Pernik , Kladnica , 94 metrekare | 37282955
8 pictures

Satılık 2 yatak odası в bölge Pernik, Kladnica, 94 metrekare

200 800
392 730,66 лв.
KDV dahildir
Area: 94 metrekareFloor 1 inci Construction type Tuğla, 2026
Central Heating: -Gas: -
Property Description:
🏡 Тристаен апартамент в престижния комплекс Делта Хил само на 20 минути от София!

АКТ 14 скоро акт 15 / може да се закупи гараж от 35 хил. евро до 70 хил. евро

Налични 10 апартамента 2-стайни , 3-стайни , 4 стайни мезонети !!!!

Предлагаме за продажба просторен и светъл тристаен апартамент, разположен в единствената жилищна кооперация в затворения комплекс Делта Хил , село Кладница.
Жилището е част от един от най-добрите и спокойни комплекси около София, известен със своята природа, чист въздух и висок стандарт на живот.

✨ Характеристики на имота:
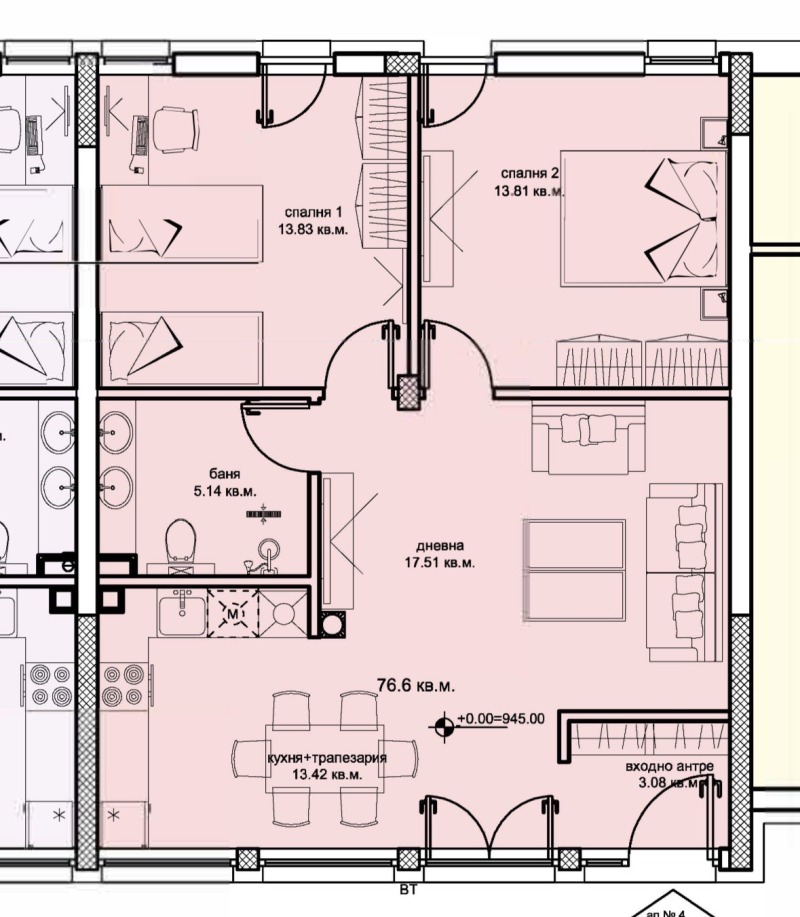
Площ: 93 кв.м
Две самостоятелни просторни спални по 14 квадрата
Просторна дневна с кухненски бокс 31 квадрата
Баня с тоалетна 5 квадрата
С гледка към планината
Етаж: 1

🌿 Предимства:
Разположен само на 20 минути от София, с бърз достъп по новия път през Перник или Владая
Единствената кооперация в комплекса спокойствие, тишина и усещане за уединение
Контролиран достъп, 24/7 охрана и видеонаблюдение
Изключително поддържани общи части и инфраструктура
Спортни площадки и детски кътове в рамките на комплекса

Имотът е идеален както за семейно жилище, така и за ваканционен дом или инвестиция.
Делта Хил предлага спокойствие, чист въздух и зеленина, без да се жертва удобството на близостта до града.

📍 Местоположение: Комплекс Делта Хил, с. Кладница, само 20 мин от София

📱 Контакт: 0899362436 Христо
Features:
  • Giriş kontrolu
  • Güvenlik
  • Kapılı kompleks
Satılık  2 yatak odası bölge Pernik , Kladnica , 94 metrekare | 37282955 - görüntü [2]
Satılık  2 yatak odası bölge Pernik , Kladnica , 94 metrekare | 37282955 - görüntü [3]
Satılık  2 yatak odası bölge Pernik , Kladnica , 94 metrekare | 37282955 - görüntü [4]
Satılık  2 yatak odası bölge Pernik , Kladnica , 94 metrekare | 37282955 - görüntü [5]See next 4 pictures
Price

Property price: 200 800 €

392 730,66 лв.

Price Açık metrekare: 2136,17 €

4 177,99 лв. Açık metrekare

Subscribe me for price change notifications
Location

bölge Pernik, Kladnica

Statistics
  • 5views
  • 0saves
The ad was published on 9 Ekim 2025
Contact seller
089XXX... (show)

BANANA BILDINGS
Sofia ul 'Şarl Şampo' 7
Satılık 2 yatak odası в bölge Pernik, Kladnica, 94 metrekare
200 800 €
94 metrekare1 inci Tuğla, 2026
call20899362436