HOLDING GROUP REAL ESTATE Предлага:
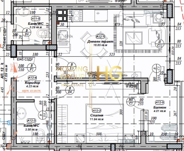
Светъл и добре разпределен 2-стаен апартамент в гр. Варна, кв. Бриз. Имотът е част от модерна жилищна сграда с асансьор и е отличен избор, както за собствен дом, така и за инвестиция. Общата площ е 65 кв.м, осигуряваща комфортно пространство за ежедневие. Разпределението е функционално: дневна с кухненска част, една самостоятелна спалня, баня с тоалетна и един балкон за отдих. Към апартамента има и мазе, удобно за съхранение. Сградата е ново строителство, което гарантира съвременни стандарти и комфорт. Локацията в Бриз осигурява тиха среда и бърз достъп до ключови точки в града, като същевременно предлага приятна жилищна атмосфера.
Параметри:
- Тип имот: 2-стаен
- Площ: 62 кв.м
- АКТ 16: от Юли, 2025 г.
- Дневна с кухненски тракт
- Спални: 1
- Балкони: 1
- Бани с тоалетни: 1
- Асансьор: да
- Мазе: да
- Цена: 170 000
Квартал Бриз е предпочитан район на Варна с отлична свързаност и спокойна жилищна среда, подходяща за семейства и активни млади хора.
В близост се намират образователни институции, търговски обекти и удобен градски транспорт, осигуряващи комфорт в ежедневието.
За повече информация и огледи, моля обадете се на посочения номер и цитирайте код на обявата: 8420
Ако желаете да закупите вашето ново жилище чрез банков кредит, можем да ви съдействаме. Партнираме успешно с всички банкови институции в страната.
Обадете се сега и заявете своята безплатна консултация!
Giriş yapmak
+ Ücretsiz reklam

![Satılık 1 yatak odası Varna , Briz , 62 metrekare | 49960650 - görüntü [2] — Imoti.info Satılık 1 yatak odası Varna , Briz , 62 metrekare | 49960650 - görüntü [2]](http://imotstatic4.focus.bg/imot/photosimotbg/1/221/big/1b176113955394221_nn.jpg)
![Satılık 1 yatak odası Varna , Briz , 62 metrekare | 49960650 - görüntü [3] — Imoti.info Satılık 1 yatak odası Varna , Briz , 62 metrekare | 49960650 - görüntü [3]](http://imotstatic4.focus.bg/imot/photosimotbg/1/221/big/1b176113955394221_Tm.jpg)
![Satılık 1 yatak odası Varna , Briz , 62 metrekare | 49960650 - görüntü [4] — Imoti.info Satılık 1 yatak odası Varna , Briz , 62 metrekare | 49960650 - görüntü [4]](http://imotstatic4.focus.bg/imot/photosimotbg/1/221/big/1b176113955394221_vA.jpg)
![Satılık 1 yatak odası Varna , Briz , 62 metrekare | 49960650 - görüntü [5] — Imoti.info Satılık 1 yatak odası Varna , Briz , 62 metrekare | 49960650 - görüntü [5]](http://imotstatic4.focus.bg/imot/photosimotbg/1/221/big/1b176113955394221_zc.jpg)
![Satılık 1 yatak odası Varna , Briz , 62 metrekare | 49960650 - görüntü [6] — Imoti.info Satılık 1 yatak odası Varna , Briz , 62 metrekare | 49960650 - görüntü [6]](http://imotstatic4.focus.bg/imot/photosimotbg/1/221/big/1b176113955394221_eQ.jpg)
![Satılık 1 yatak odası Varna , Briz , 62 metrekare | 49960650 - görüntü [7] — Imoti.info Satılık 1 yatak odası Varna , Briz , 62 metrekare | 49960650 - görüntü [7]](http://imotstatic4.focus.bg/imot/photosimotbg/1/221/big/1b176113955394221_Ji.jpg)
![Satılık 1 yatak odası Varna , Briz , 62 metrekare | 49960650 - görüntü [8] — Imoti.info Satılık 1 yatak odası Varna , Briz , 62 metrekare | 49960650 - görüntü [8]](http://imotstatic4.focus.bg/imot/photosimotbg/1/221/big/1b176113955394221_FU.jpg)
![Satılık 1 yatak odası Varna , Briz , 62 metrekare | 49960650 - görüntü [9] — Imoti.info Satılık 1 yatak odası Varna , Briz , 62 metrekare | 49960650 - görüntü [9]](http://imotstatic4.focus.bg/imot/photosimotbg/1/221/big/1b176113955394221_y9.jpg)
![Satılık 1 yatak odası Varna , Briz , 62 metrekare | 49960650 - görüntü [10] — Imoti.info Satılık 1 yatak odası Varna , Briz , 62 metrekare | 49960650 - görüntü [10]](http://imotstatic4.focus.bg/imot/photosimotbg/1/221/big/1b176113955394221_wa.jpg)
![Satılık 1 yatak odası Varna , Briz , 62 metrekare | 49960650 - görüntü [11] — Imoti.info Satılık 1 yatak odası Varna , Briz , 62 metrekare | 49960650 - görüntü [11]](http://imotstatic4.focus.bg/imot/photosimotbg/1/221/big/1b176113955394221_VO.jpg)









